| Číslo zakázky: | 2023020 | ![]() Karta nemovitosti |
|---|---|---|
| Typ zakázky: | prodej |
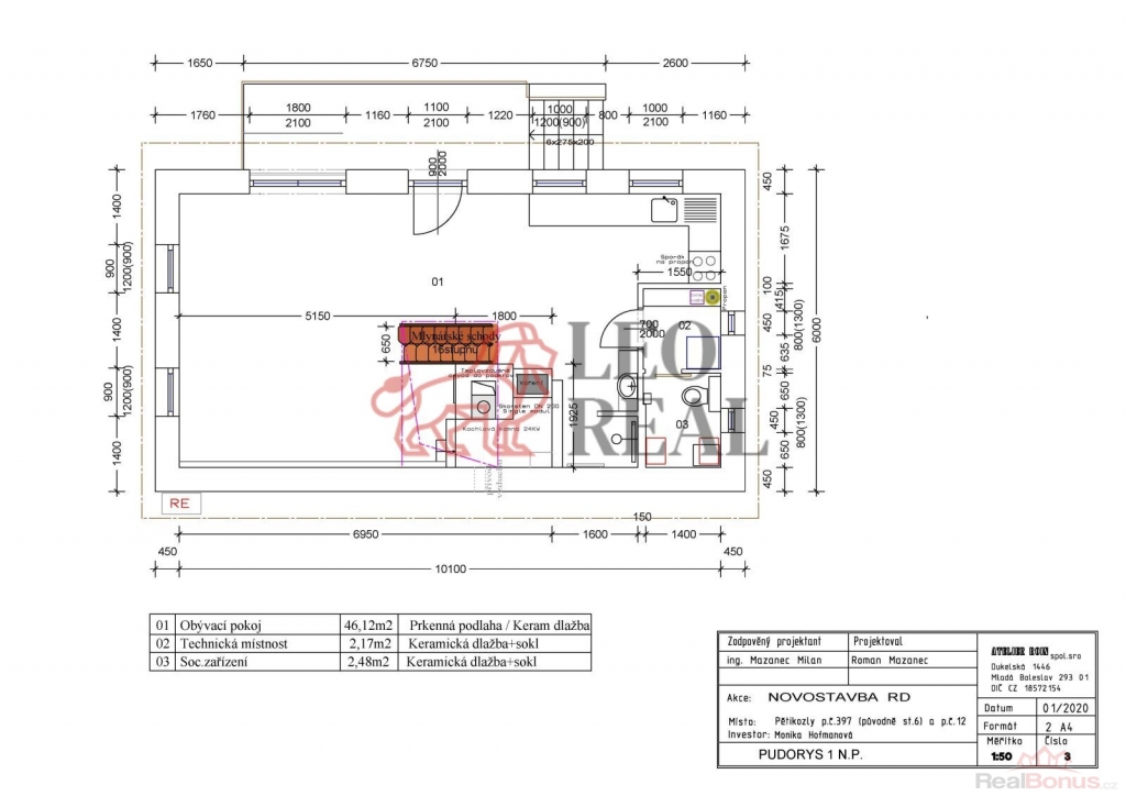
Nabízíme k prodeji rodinný dům před dokončením o velikosti 90m2 užitné plochy, skládající se z přízemí 50m2 s technickou místností a 40m2 podkroví. Jeho zastavěná plocha je 60m2. Stavba byla započata na jaře 2022, nachází se v malé klidné obci Pětikozly, cca 8km od Mladé Boleslavi s dostupností autobusovou dopravou a cca 15min od rychlostní silnice R10.
Stavba je postavena z porothermu, má dřevěné pohledové stropní trámy, dřevěnou pohledovou konstrukci stropu v podkroví z drásaných fošen, izolaci střechy 30cm minerální vlny a střešní krytinu bramac (bobrovka) s okapy, příčku oddělující technickou místnost, komín, dřevěná okna a vstupní dveře. V domě jsou rozvody vody, elektřiny a odpadu, vodovodní a elektropřípojka jsou součástí pozemku. V obci není vybudována kanalizace, v PD je plánován septik. Plánováno je topení dřevem (tuhá paliva) s akumulační pecí, případně lze upravit pro krbová kamna, nebo změnou PD na jiný druh vytápění. Teplá voda je plánována instalací el.bojleru, a společně s WC, pračkou, umyvadlem se sprchovou hadicí budou součástí technické místnosti. Sprchový kout je zděný a je řešen samostatným koutem spolu s umyvadlem jako součást hlavní místnosti. V plánu je velký kuchyňský kout ve tvaru L. Podkroví je v PD plánováno pro využití jako velké úložné prostory.
Obytná část domu a plánovaná terasa je situována na J a Z, vstup do domu je ze západní části, kde je orientována terasová zahrada s ovocnými a okrasnými keři, bylinkovou a zeleninovou částí, s výhledem do zalesněného údolí bez dalších staveb. Na spodní části zahrady je separační toaleta a jednoduché vybavení stavby slouží jako provizorní zázemí pro práce na zahradě a v domě. Součástí zahrady je nová terasa s dřevěnou finskou saunou na dřevo.
Stavba spadá do kategorie nízkoenergetická. PD bude při prodeji dodána.
| Cena: |
(za nemovitost) 6 500 000,- Kč
(cena k jednání)
|
|---|
| Počet podlaží objektu | 2 |
|---|---|
| Druh objektu | cihlová |
| Stav objektu | ve výstavbě (hrubá stavba) |
| Energetická třída | B - Velmi úsporná |
| Počet podlaží pod zemí | 2 |
| Vlastní pozemek | 593 m² |
| Umístění objektu | klidná část obce |
| Stáří objektu | 2 022 |
| Užitná plocha | 90 m² |
| Poloha objektu | samostatný |




