| Číslo zakázky: | D1367BL030 | ![]() Karta nemovitosti |
|---|---|---|
| Typ zakázky: | prodej |
Ve výhradním zastoupení nabízíme k prodeji velmi pěkný, samostatně stojící dvoupodlažní rodinný dům situovaný na klidném a idylickém místě na okraji obce Otinoves. Nemovitost se nachází na rovinatém pozemku o celkové výměře 938 m2 ( dle výpisu z katastru nemovitostí). Dům i zahrada jsou pečlivě udržovány, což je znát na celkovém dojmu i stavu objektu. V letech 2012?2013 prošel dům rekonstrukcí ? instalována byla plastová okna, nová garážová vrata, střecha byla pokryta pálenou pologlazovanou taškou Bramac, dále byly zhotoveny měděné okapy, svody a elektroinstalace byla provedena v mědi.
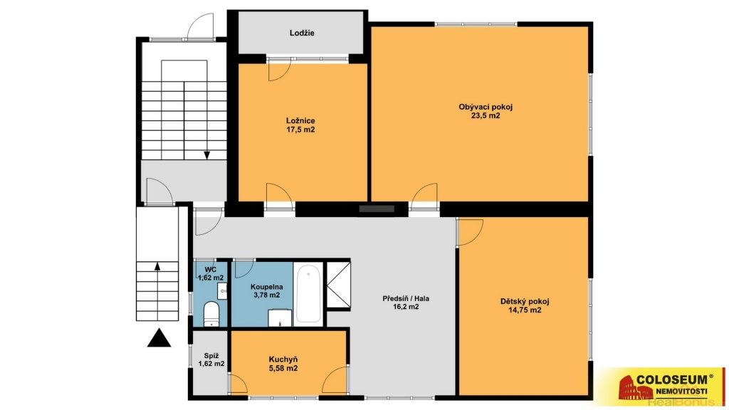
Dispozičně je dům velmi prostorný a vhodný jak pro vícečlennou rodinu, tak pro uživatele s vysokými nároky na prostor. Nabízí dva samostatné byty o dispozici 4+kk a celkové užitné ploše 91,7 m2 každý. V přízemí se nachází obývací pokoj, ložnice, dětský pokoj, jídelna, kuchyně, koupelna a samostatné WC. První patro, do kterého vede samostatné dřevěné schodiště, je dispozičně shodné s přízemím. Dům je celý podsklepen ? v suterénu se nachází garáž, kotelna, prádelna a čtyři technické místnosti. Pod sedlovou střechou je k dispozici rozsáhlý půdní prostor, který nabízí další možnosti využití.
Vytápění zajišťuje plynový kotel i kotel na tuhá paliva. Dům má vlastní studnu a zároveň možnost napojení na obecní vodovod. Odpad je řešen septikem.
V obci ordinuje lékař, je zde školka, obchod s potravinami a podniková prodejna mlékárny Otinoves. Spojení autobusem.
Průkaz energetické náročnosti budovy nebyl dodán, a z toho důvodu je uvedena třída G. Veškeré uvedené plochy jsou přibližné a mají orientační charakter. Koupi nemovitosti lze financovat hypotéčním úvěrem, jehož vyřízení Vám rádi zajistíme.
Pro více informací nebo domluvení termínu prohlídky neváhejte kontaktovat realitní makléřku.
| Cena: |
(za nemovitost) 5 967 536,- Kč
(Celková cena je konečná, včetně právního servisu, provize, DPH a všech poplatků. Je však také možné o ni jednat - pro více informací nás kontaktujte.)
|
|---|
| Počet podlaží objektu | 2 |
|---|---|
| Druh objektu | cihlová |
| Stav objektu | po rekonstrukci |
| Energetická třída | G - Mimořádně nehospodárná |
| Počet podlaží pod zemí | 1 |
| Vybavení | balkon lodžie sklep |
| Doprava | silnice autobus |
| Odpad | Septik |
| Plyn | Zaveden |
| Rok rekonstrukce | 2 013 |
| Stáří objektu | 40 |
| Parkování | garáž |
| Zastavěná plocha | 137 m² |
| Plocha parcely | 938 m² |
| Ostatní | Garáž Parkoviště |
| Užitná plocha | 182 m² |
| Komunikace | asfaltová |
| Inženýrské sítě | Plyn |
| Poloha objektu | samostatný |




