| Číslo zakázky: | 922767 | ![]() Karta nemovitosti |
|---|---|---|
| Typ zakázky: | prodej |
Ve výhradním zastoupení nabízíme k prodeji celý rozlehlý areál v obci Libčeves, situovaný v krásné krajině CHKO České středohoří, nedaleko měst Most, Louny, Litoměřice a Teplice. Tento unikátní areál poskytuje nádherný výhled a je ideální pro široké spektrum využití.
Parametry nemovitosti:
Pozemek 17 700 ms objekty:
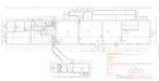
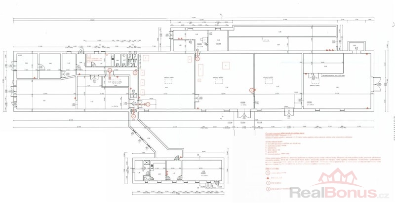
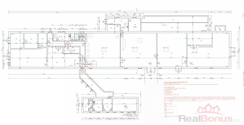
Výrobní hala se zastavěnou plochou 1 333 m dříve využívaný jako bažantnice (líhně), nyní jako výrobní a skladovací prostor pro produkci mycích houbiček a drátěnek. V objektu se dále nachází obytný prostor např. pro správce objektu, zaměstnance
Rodinný dům (95 m zastavěné plochy) s možností vlastního bydlení.
Pozemek s možností výstavby domu, pozemek č. 932/20
Garáže se třemi vjezdy
Ovocný (třešňový) sad o ploše 66 513 m
Objekty jsou napojeny na vodovodní řad, odpad je řešen žumpou, výrobní hala je vybavena kotelnou na uhlí, která sloužit i k vytápění rodinného domu. Alternativně je dům možné vytápět elektrokotlem.
Tento areál je vhodný pro skladovací i výrobní účely, zároveň svou polohou a výhledem nabízí velký potenciál pro developerské záměry, například rekreační výstavbu. Obec Libčeves momentálně pracuje na územním plánu, což přináší možnost přizpůsobit využití nemovitosti vašim plánům.
Areál je skvělou volbou pro lehkou výrobu, zemědělské či rostlinné podnikání, a zároveň poskytuje příležitost pro klidné bydlení v malebném prostředí.
Aktuální výpis z územního plánu ve fotogalerii
Pro další informace, či prohlídku kontaktujte makléře nemovitosti.
Po domluvě jsou prohlídky možné i o víkendech.
| Cena: |
(za nemovitost) 17 450 000,- Kč
(včetně provize)
|
|---|
| Počet podlaží objektu | 2 |
|---|---|
| Druh objektu | smíšená |
| Stav objektu | před rekonstrukcí |
| Energetická třída | G - Mimořádně nehospodárná |
| Vlastnictví | osobní |
| Vlastní pozemek | 84 220 m² |
| Vybaveno | Nezařízeno |
| Výrobní plocha | 1 300 m² |
| Zastavěná plocha | 1 620 m² |
| Užitná plocha | 1 700 m² |
| Nebytové prostory | 1 300 m² |
| Druh prostor | Výrobní |
