| Číslo zakázky: | 57430 | ![]() Karta nemovitosti |
|---|---|---|
| Typ zakázky: | prodej |
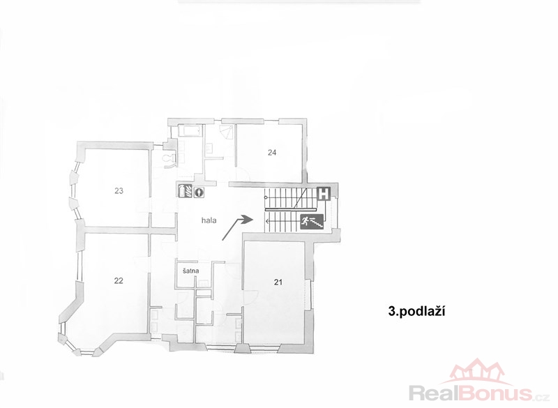
Exkluzivně nabízíme prodej čtyřpodlažního domu v Karlových Varech. Dům byl využívaný jako hotel . Stojí v klidné části Karlových Varů, cca 10 min od centra nedaleko hotelu Imperiál. Terasa, balkony. Pozemek okolo domu 671m2. Vytápění plynovým kotlem. Cena k jednání, objednejte si prohlídku a nabídněte vaši cenu.
| Cena: |
(za nemovitost) 22 000 000,- Kč
(cena k jednání) (včetně provize, včetně právního servisu) (včetně provize)
|
|---|
| Počet podlaží objektu | 4 |
|---|---|
| Celková podlahová plocha | 650 m² |
| Druh objektu | cihlová |
| Stav objektu | velmi dobrý |
| Energetická třída | G - Mimořádně nehospodárná |
| Vlastnictví | osobní |
| Vlastní pozemek | 858 m² |
| Plocha teras | 60 m² |
| Vybaveno | Nezařízeno |
| Odpad | Městská kanalizace |
| Počet míst k parkování | 5 |
| Zastavěná plocha | 221 m² |
| Užitná plocha | 650 m² |
