| Číslo zakázky: | 00748 | ![]() Karta nemovitosti |
|---|---|---|
| Typ zakázky: | prodej |
Nabízíme Vám k prodeji světlý a prakticky řešený byt o dispozici 3+1, o výměře 60 m2, v osobním vlastnictví, po rekonstrukci. Nachází se ve zvýšeném přízemí udržovaného cihlového domu v oblíbené lokalitě Praha 7 ? Holešovice.
Byt prošel kompletní rekonstrukcí v roce 2024. Původní dispozice 2+1 byla citlivě upravena na 3+1, čímž vznikl moderní a funkční prostor vhodný jak pro rodinu, tak jako investiční nemovitost.
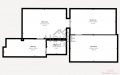
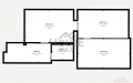
Dispozice bytu:
Obývací pokoj ? 16,2 m2
Kuchyně ? 8,4 m2 (připravená k instalaci kuchyňské linky)
2 ložnice ? každá 15,9 m2
Koupelna s toaletou ? 3,7 m2 (sprchový kout, přípojka na pračku, žebříkové topení)
Vybavení a technický stav:
Kompletně nové elektroinstalace včetně pojistkové skříně a zásuvek
Vinylové plovoucí podlahy a keramická dlažba
Plastová okna
Vytápění: nový elektrokotel Protherm (12 kW).
Ohřev vody: elektrický bojler.
Přívod plynu odpojen ? bez dalších poplatků za plyn.
Byt je nevybavený ? ideální pro realizaci vlastního interiéru.
Další informace:
K bytu náleží sklep o velikosti 4 m2 v suterénu.
Klidný a udržovaný vnitroblok se zelení.
Cihlový dům z roku 1945: nová střecha a vyměněné stoupačky (2024).
Nízké měsíční náklady.
Lokalita ? Praha 7 ? Holešovice:
Holešovice jsou moderní městskou čtvrtí s výbornou dopravní dostupností ? metro C, tramvaje, vlaková stanice. V docházkové vzdálenosti najdete kompletní občanskou vybavenost ? školy, školky, lékaře, obchody i sportoviště.
Lokalita je zároveň kulturním a společenským centrem ? v blízkosti jsou galerie DOX, La Fabrika, trhy, oblíbené kavárny a restaurace. Pro milovníky přírody jsou kousek Stromovka a Letenské sady.
Byt je ihned k dispozici.
Pro více informací nebo domluvení prohlídky nás neváhejte kontaktovat.
| Cena: |
(za nemovitost) 9 399 000,- Kč
(včetně provize, včetně právního servisu)
|
|---|
| Dispozice bytu | 3+1 |
|---|---|
| Číslo podlaží v domě | 1 |
| Počet podlaží objektu | 6 |
| Celková podlahová plocha | 60 m² |
| Druh objektu | cihlová |
| Stav objektu | velmi dobrý |
| Energetická třída | D - Méně úsporná |
| Vlastnictví | osobní |
| Počet podlaží pod zemí | 1 |
| Plocha sklepu | 4 m² |
| Vybavení | sklep |
| Umístění objektu | centrum |
| Topení | Ústřední - elektrické |
| Rok rekonstrukce | 2 024 |
| Stáří objektu | 80 |
| Užitná plocha | 60 m² |
| Charakter okolní zástavby | obytná |
| Poloha objektu | v bloku |




