| Číslo zakázky: | 00748 | ![]() Karta nemovitosti |
|---|---|---|
| Typ zakázky: | prodej |
Nabízíme Vám ke koupi světlý a moderně řešený byt o dispozici 3+1 a výměře 60 m2, situovaný ve zvýšeném přízemí udržovaného cihlového domu, v oblíbené lokalitě Prahy 7 ? Holešovice.
Byt je v osobním vlastnictví a prošel kompletní rekonstrukcí v roce 2024.
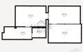
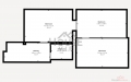
Dispozice:
Obývací pokoj: 16,2 m2
Kuchyně: 8,4 m2 ? připravena k instalaci kuchyňské linky
Ložnice: 15,9 m2 a 15,9 m2
Koupelna s toaletou: 3,7 m2 ? sprchový kout, přípojka na pračku, žebříkové topení
Původní dispozice 2+1 byla citlivě přestavěna na 3+1, čímž vznikl funkční prostor vhodný jak pro rodinu, tak i na investici.
Vybavení a technický stav:
Nové elektroinstalace včetně pojistkové skříně a zásuvek.
Vinylové podlahy a keramická dlažba.
Plastová okna.
Vytápění: nový elektrokotel Protherm (12 kW).
Ohřev vody: elektrický bojler.
Plyn: odpojen.
Byt je nevybavený, připravený k individuálnímu doladění podle vlastních představ.
Dům a okolí:
Cihlový dům z roku 1945, nová střecha a stoupačky (2024)
Klidný a udržovaný vnitroblok se zelení
Součástí prodeje je sklepní kóje 4 m2.
Nízké měsíční náklady.
Lokalita ? Praha 7, Holešovice:
Holešovice patří mezi nejžádanější části Prahy díky výborné dopravní dostupnosti (metro C, tramvaje, vlak), kompletní občanské vybavenosti a živé atmosféře.
V okolí se nachází školy, školky, obchody, lékaři, restaurace i sportoviště.
Milovníci kultury ocení blízkost DOX, La Fabrika, trhů i kaváren. Pro odpočinek je nedaleko Stromovka a Letenské sady.
Dostupnost:
Byt je ihned k dispozici.
Pro více informací nebo sjednání prohlídky nás neváhejte kontaktovat.
| Cena: |
(za nemovitost) 8 495 000,- Kč
(včetně provize, včetně právního servisu)
|
|---|
| Dispozice bytu | 3+1 |
|---|---|
| Číslo podlaží v domě | 1 |
| Počet podlaží objektu | 6 |
| Celková podlahová plocha | 64 m² |
| Druh objektu | cihlová |
| Stav objektu | velmi dobrý |
| Energetická třída | D - Méně úsporná |
| Vlastnictví | osobní |
| Plocha sklepu | 4 m² |
| Vybavení | sklep |
| Umístění objektu | centrum |
| Topení | Ústřední - elektrické |
| Rok rekonstrukce | 2 024 |
| Stáří objektu | 81 |
| Celková plocha | 64 m² |
| Užitná plocha | 60 m² |
| Charakter okolní zástavby | obytná |
| Poloha objektu | v bloku |




