Prodej bytu 2+kk, 52 m2, OV, Vrchlabí (okres Trutnov), ul. Letná

Prodej bytu 2+kk, 52 m2, OV, Vrchlabí (okres Trutnov), ul. Letná

kuchyň
koupelnaobývací pokoj s kuchyníobývací pokoj s kuchyníobývací pokoj s kuchyníobývací pokoj s kuchynívýhledložnice / pokojložnice / pokojkoupelnawczahradadůmparkováníšatnavstupvarná deskadřezvstupní protipožární dveředispozice

Nemovitost nabízí:

evropa services czech
U Zvonařky 358/10
Praha 2rkevropa.cz
Lubor Karásek
Lubor Karásek
Mobil: +420 733 610 910
lubor.karasek@rkevropa.cz

Kontaktovat makléře

Odeslat
Číslo zakázky: 961011  
Karta
nemovitosti
Typ zakázky: prodej
Prodej stylového bytu 2+kk po rekonstrukci ve Vrchlabí s výhledem na Černou horu

Prodej stylového bytu 2+kk po rekonstrukci ve Vrchlabí s výhledem na Černou horu
Hledáte komfortní, útulné a zároveň praktické bydlení v žádané lokalitě Vrchlabí? Nabízíme Vám exkluzivně byt 2+kk v ulici Letná 47, který Vás nadchne svou promyšlenou dispozicí, kvalitním provedením a skvělým umístěním.

Základní informace:
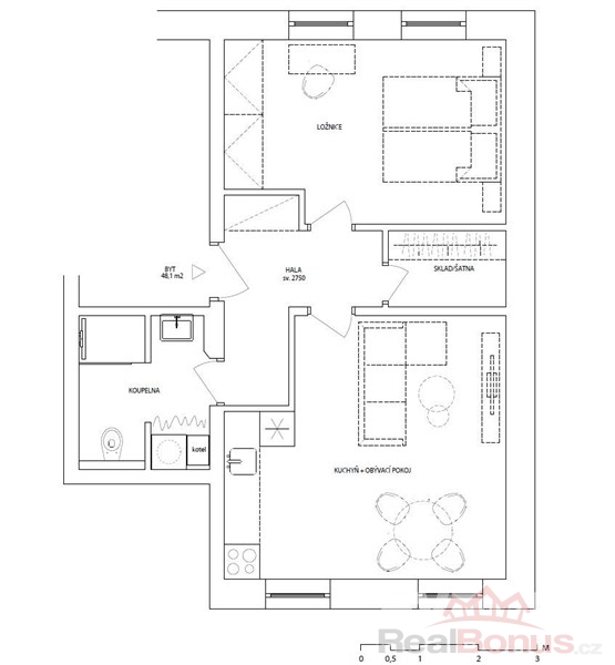
Dispozice: 2+kk + šatna + komora + půda
Podlahová plocha: cca 52 m
Umístění: 1. patro zděného domu
Stav: po kompletní a vkusné rekonstrukci
Vytápění: vlastní plynový kotel

Detailní popis:
Byt se nachází v 1. patře zděného bytového domu a prošel velkou rekonstrukcí. Dispozičně je velmi dobře vyřešen obývací pokoj je spojen s kuchyňským koutem, ložnice nabízí útulnou atmosféru díky intimnímu stropnímu osvětlení. Chodba a samostatná šatna poskytuje dostatek úložného prostoru, k dispozici je rovněž komora na společné chodbě a navíc velká půda přímo nad bytem, která skýtá možnost dalšího využití.

Moderní koupelna je vybavena sprchovým koutem, byt má kvalitní vinylové podlahy, sádrokartonové podhledy a bezpečnostní protipožární vstupní dveře. Vytápění a ohřev vody zajišťuje vlastní úsporný plynový kotel, což přináší plnou kontrolu nad náklady.

Výhody:
Skvěle řešený interiér s důrazem na úložné prostory
Velká půda přímo nad bytem možnost dalšího využití
Zahrada u domu možnost užívání zahrady
Atraktivní lokalita Letná klidné prostředí, přesto výborná dostupnost
Nízký fond oprav

Lokalita:
Letná patří mezi nejvyhledávanější části Vrchlabí klidná ulice v blízkosti přírody i centra města. V docházkové vzdálenosti se nachází škola, školka, obchody, zdravotní středisko, zastávka MHD i volnočasové aktivity. Ideální místo jak pro bydlení, tak i jako investice k pronájmu.

Neváhejte nás kontaktovat pro více informací nebo domluvení prohlídky.

Cena: (za nemovitost)   4 198 000,- Kč
(včetně provize)

Informace o nemovitosti

Dispozice bytu2+kk
Číslo podlaží v domě2
Počet podlaží objektu2
Celková podlahová plocha52 m²
Druh objektucihlová
Stav objektudobrý
Energetická třídaG - Mimořádně nehospodárná
Vlastnictvíosobní
VybavenoMožno zařídit
Dopravavlak
OdpadMěstská kanalizace
PlynZaveden
Rok rekonstrukce2 025
Užitná plocha52 m²
G - Mimořádně nehospodárná

Energetická náročnost:


RealBonus.cz

Používáme cookies!

Tyto stránky používají a ukládají soubory cookies. Některé jsou nezbytné pro jejich správné fungování (tzv. technické cookies). Dále tyto stránky využívají marketingové a analytické cookies pro zkvalitnění našich služeb a přizpůsobení zobrazovaného obsahu. Pro jejich využití je nutný Váš souhlas. Více informací o cookies.