| Číslo zakázky: | 31891 | ![]() Karta nemovitosti |
|---|---|---|
| Typ zakázky: | prodej |
Cena včetně výstavby bytu, kolaudace, pozemku, terasy, parkování a zahrady., Zprostředkujeme Vám exkluzivní nabídku výstavby prostorného bytu 3+kk na klíč v Luhačovicích s lodžií, zahradou a parkovacím stáním.
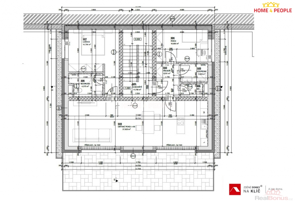
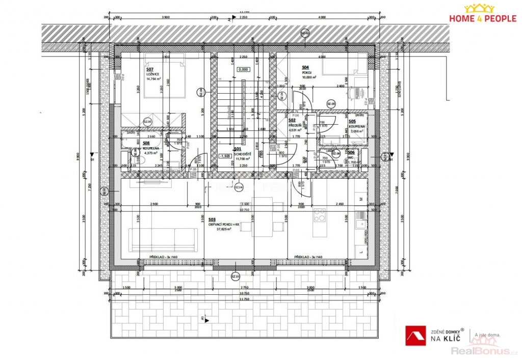
Máme pro vás jedinečnou příležitost vlastnit luxusní byt 3+kk o podlahové výměře 87,75 m v centru Luhačovic s lodžií a vlastní zahradou o velikosti 170 m.
Tento moderní byt bude situován v nově vznikající tří podlažní budově ve spodní části se vstupem na terasu. Výhodou je vlastní parkovací stání o rozloze 15 m.
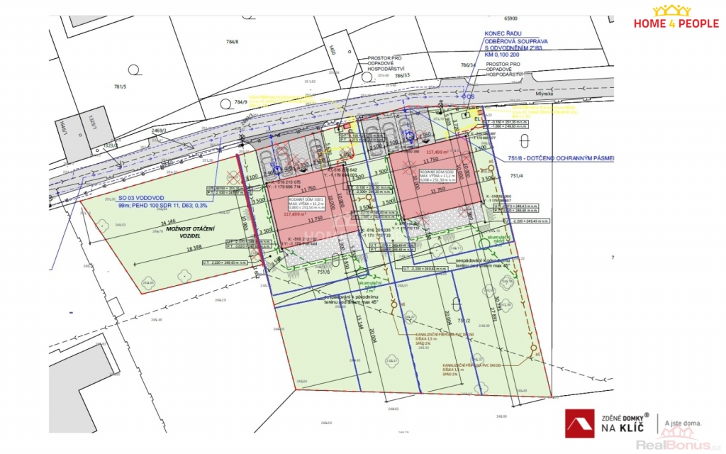
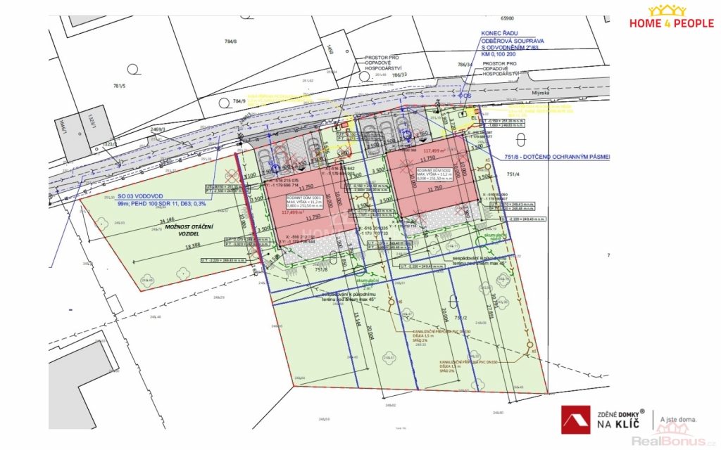
Součástí ceny je také třetinový podíl na okolních a zastavěných pozemcích.
Byt je navržen pro klienty, kteří ocení kvalitní provedení a prostorné interiéry. Dispozice bytu je ideální pro rodinu či páry, kteří hledají moderní a komfortní bydlení v centru Luhačovic.
Obývací pokoj s kuchyňským koutem o velikosti 32m byl navržen tak, aby navazoval na lodžii s orientací na jižní stranu.
Dispozice dále nabízí ložnici 15 m a dětský pokoj 10 m, samozřejmostí jsou také dvě samostatné koupelny s WC + další samostatné WC.
Nabízíme vám možnost bydlení spojené s pohodlím v samém centru Luhačovic a zároveň se skvělou dostupností všech služeb.
Nechte se okouzlit krásou Luhačovic a zainvestujte do svého vlastního bydlení.
Buďte první, kdo využije této jedinečné nabídky! Fotografie interiéru jsou pouze ilustrativní. Pro více informací nás neváhejte kontaktovat. Ev. číslo: 31891. Energetický štítek: A (49 kWh/m2/rok).
| Cena: |
(za nemovitost) 7 790 000,- Kč
(Cena včetně výstavby bytu, kolaudace, pozemku, terasy, parkování a zahrady.)
|
|---|
| Dispozice bytu | 3+kk |
|---|---|
| Číslo podlaží v domě | 2 |
| Počet podlaží objektu | 3 |
| Celková podlahová plocha | 87 m² |
| Druh objektu | cihlová |
| Stav objektu | ve výstavbě (hrubá stavba) |
| Energetická třída | A - Mimořádně úsporná |
| Vlastnictví | osobní |
| Vybaveno | Nezařízeno |
| Počet míst k parkování | 1 |
| Užitná plocha | 87 m² |




