| Číslo zakázky: | AE1423BL009 | ![]() Karta nemovitosti |
|---|---|---|
| Typ zakázky: | prodej |
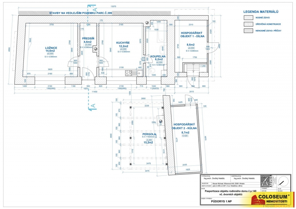
Ve výhradním zastoupení majitele nabízíme ke koupi rodinný dům, o dispozici 1+1 s možností rozšíření (jak půdorysu, tak půdní vestavby), který se nachází v klidné a dobře dostupné obci Kobeřice u Brna.
Nemovitost po celkové rekonstrukci (komplet střecha, vnější i vnitřní omítky, elektro rozvody, topení) poskytuje útulné zázemí pro pohodlné bydlení a svým uspořádáním je vhodná jak pro trvalé, tak rekreační využití.
Součástí obytného prostoru je příjemně zařízená kuchyně se sálavým bio krbem, který dotváří útulnou atmosféru a zároveň efektivně vyhřívá místnost. Obytná kuchyň je vybavena lednicí, mobilní elektrickou troubou a dvouplotýnkovým vařičem. Je zde plovoucí podlaha, zatímco v koupelně a chodbě je praktická dlažba. V ložnici je koberec, pod kterým se nachází dřevěné podlahové desky.
Velkým benefitem je podsklepená dílna, která nabízí i další možnosti využití ? v případě potřeby lze například zbudovat další obytný pokoj. Rovněž půdní vestavba (otevřením střechy do zahrady) je zcela reálná. Na pozemku se nachází zahrada pro pěstování zeleniny, zastřešená pergola s krbem, ke které je z druhé strany prostor pro ukládání nářadí. Před pergolou je dostatečný prostor pro menší bazén, venkovní sprcha a gril.
Nespornou výhodou je příjezd k pozemku jak z ulice, tak ze strany zahrady s potenciálem vybudovat parkovací stání na vlastním pozemku. V současné době lze parkovat na veřejném pozemku, hned u vstupu do zahrady.
Vytápění i ohřev vody jsou řešeny elektrokotlem, který je napojen na dálkové ovládání (chytrou aplikaci Honeywell home ? majitel si tak může zatopit na dálku odkudkoliv).
Plynová přípojka je dostupná na ulici, takže v budoucnu je možné dům bez problémů připojit i na plyn.
Průkaz energetické náročnosti nebyl dodán, a proto je uvedena třída G. Veškeré uvedené plochy jsou přibližné a mají orientační charakter.
Nemovitost lze financovat hypotečním úvěrem, se kterým vám rádi pomůžeme. Pro více informací nebo domluvení termínu prohlídky neváhejte kontaktovat našeho realitního makléře.
| Cena: |
(za nemovitost) 3 980 500,- Kč
(Celková cena je konečná, včetně právního servisu, provize, DPH a všech poplatků. Je však také možné o ni jednat - pro více informací nás kontaktujte.)
|
|---|
| Druh objektu | cihlová |
|---|---|
| Stav objektu | dobrý |
| Energetická třída | G - Mimořádně nehospodárná |
| Vybavení | sklep zahrada |
| Umístění objektu | centrum |
| Telekomunikace | Internet |
| Topení | Lokální - tuhá paliva Ústřední - elektrické |
| Voda | dálkový vodovod |
| Odpad | Městská kanalizace |
| Počet míst k parkování | 3 |
| Zastavěná plocha | 69 m² |
| Plocha parcely | 265 m² |
| Ostatní | Parkoviště |
| Užitná plocha | 46 m² |
| Plocha zahrady | 113 m² |
| Inženýrské sítě | Vodovod Kanalizace |
| Charakter okolní zástavby | obytná |
| Poloha objektu | řadový |




