| Číslo zakázky: | AV4423BL001-1 | ![]() Karta nemovitosti |
|---|---|---|
| Typ zakázky: | prodej |
V zastoupení majitele nabízíme prodej komerční budovy v včetně dvou bytových jednotek v části obce Vavřinec - Veselice. Jedná se o třípodlažní cihlovou budovu s mnoha možnostmi využití.
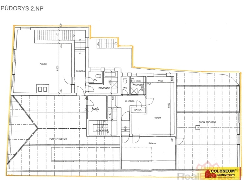
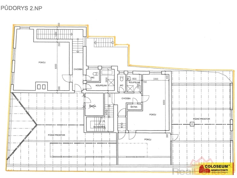
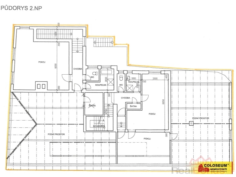
První nadzemní podlaží je tvořeno bývalými komerčními provozovnami, v současné době vedenými jako ateliéry. V levé části budovy nalezneme bývalou prodejnu smíšeného zboží včetně zázemí a skladu, v pravé části hospodu se salonkem, skladem a sociálním zařízením. Druhé nadzemní podlaží tvoří dvě bytové jednotky o dispozici 1+kk a rozsáhlé půdní prostory, které vybízí k vybudování dalších dvou bytových jednotek. První podzemní podlaží je tvořeno zázemím pro bývalé provozovny, nalezneme zde další sklady a kotelnu s novým plynovým kotlem.
Dům rovněž disponuje nákladním výtahem a nákladní rampou. Parkování je možné na vlastním pozemku za budovou.
Budova nabízí širokou paletu využití - od rozsáhlé rekonstrukce na bytové jednotky k následnému pronájmu či prodeji po kombinaci podnikání a vlastního bydlení až po přestavbu na ubytovací zařízení sloužící ke krátkodobým či dlouhodobým pronájmům.
Průkaz energetické náročnosti budovy nebyl dodán a z toho důvodu je uvedena třída G. Veškeré uvedené plochy jsou přibližné a mají orientační charakter. Nemovitost lze financovat úvěrem s jehož vyřízením rádi pomůžeme.
Pro více informací nebo domluvení termínu prohlídky neváhejte kontaktovat realitní makléřku.
| Cena: |
na vyžádání v RK (info v RK)
|
|---|
| Počet podlaží objektu | 2 |
|---|---|
| Druh objektu | cihlová |
| Stav objektu | dobrý |
| Energetická třída | G - Mimořádně nehospodárná |
| Počet míst k parkování | 2 |
| Zastavěná plocha | 357 m² |
| Plocha parcely | 536 m² |
| Ostatní | Parkoviště |
| Užitná plocha | 523 m² |
| Poloha objektu | samostatný |
| Typ zařízení | Hotel |
