| Číslo zakázky: | 652227 |  Karta nemovitosti | 
|---|---|---|
| Typ zakázky: | prodej | 
Včetně parkovacího stání, zařízení a vybavení.
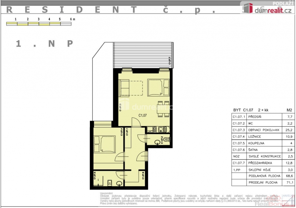
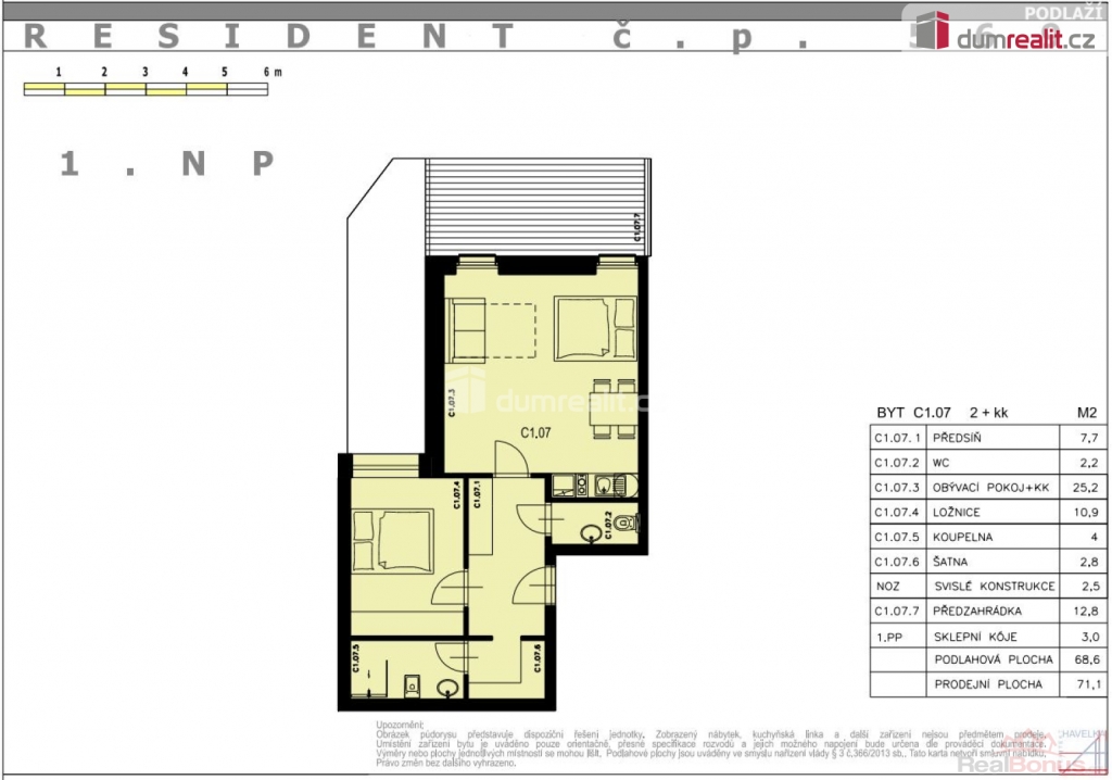
Včetně kompletního právního a realitního servisu., prodej nadstandardního horského apartmánu o dispozici 2+kk s vlastní předzahrádkou (6 m) v prestižním a vyhledávaném areálu Resident Harrachov. Apartmán se nachází v klidné části resortu s krásným výhledem na okolní hory.
Dispozice a vybavení:
Obývací pokoj s moderním kuchyňským koutem včetně vestavěných spotřebičů
Koupelna po kompletní modernizaci
Podlahové vytápění
Sklepní kóje (3 m)
Vlastní parkovací stání v uzavřeném areálu
Předzahrádka nabízí ideální prostor k relaxaci po dni stráveném v přírodě.
Wellness & služby:
Majitelé apartmánu mají přímý vstup do dvoupodlažního Grotta Spa  luxusního wellness centra s bazénem, saunou a relax zónou.
Lokalita:
Harrachov patří mezi nejatraktivnější horské destinace v ČR  ideální pro letní turistiku, cyklistiku, běžky i zimní sporty. V docházkové vzdálenosti najdete:
Ski areál
Bobovou dráhu
Hilby trail
Monkey Park pro děti
Přímý přístup na Jizerskou magistrálu
Investiční potenciál:
Atraktivní možnost krátkodobého pronájmu s vysokou obsazeností. V resortu je k dispozici snídaňový servis v samostatném prostoru v přízemí budovy.
Prohlídky možné i o víkendech. Rád vám zajistím nejvýhodnější financování hypotečním úvěrem dle aktuální nabídky na trhu.
Pro více informací mě neváhejte kontaktovat kdykoli.
Luxusní horské bydlení nebo výhodná investice  to vše v srdci Krkonoš! Ev. číslo: 651613. Energetický štítek: B (12 kWh/m2/rok).
| Cena: | (za nemovitost)   7 995 000,- Kč (Včetně parkovacího stání, zařízení a vybavení.
Včetně kompletního právního a realitního servisu.) | 
|---|
| Dispozice bytu | 2+kk | 
|---|---|
| Číslo podlaží v domě | 1 | 
| Počet podlaží objektu | 4 | 
| Celková podlahová plocha | 60 m² | 
| Druh objektu | skeletová | 
| Stav objektu | velmi dobrý | 
| Energetická třída | B - Velmi úsporná | 
| Vlastnictví | osobní | 
| Počet míst k parkování | 1 | 
| Užitná plocha | 60 m² | 





