| Číslo zakázky: | 965920 | ![]() Karta nemovitosti |
|---|---|---|
| Typ zakázky: | prodej |
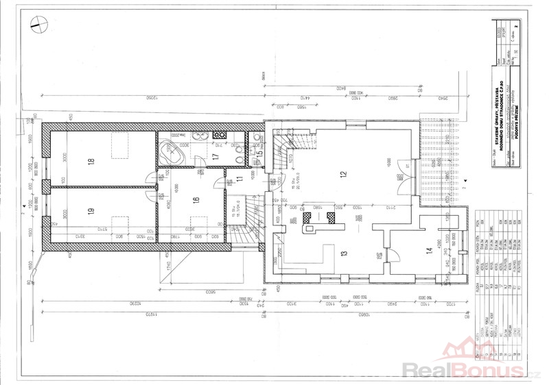
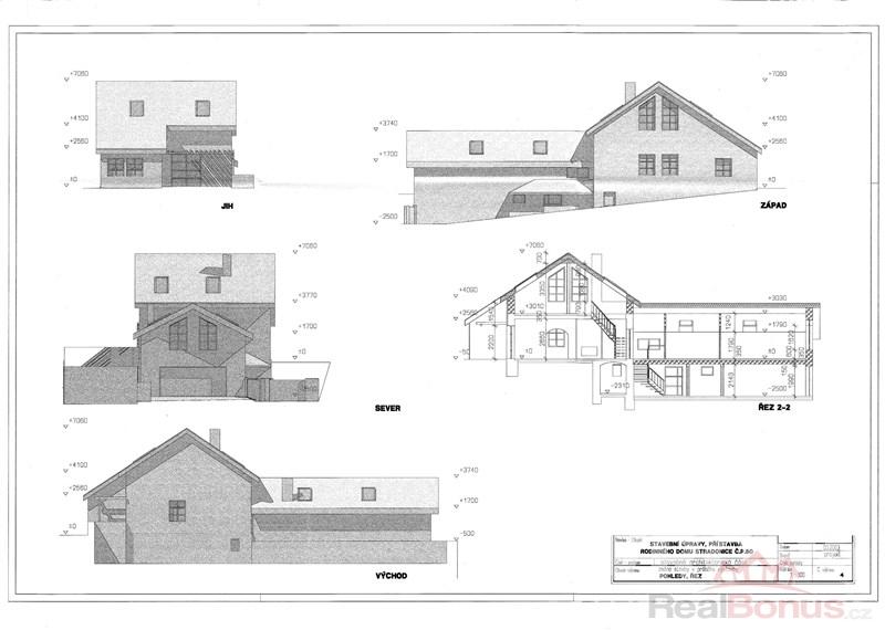
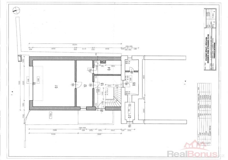
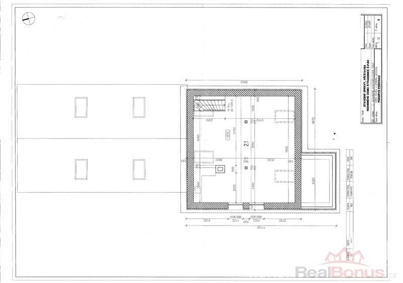
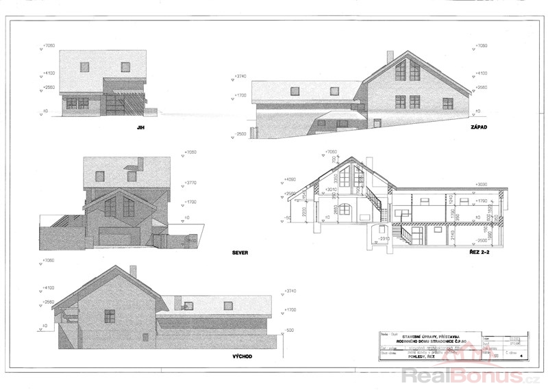
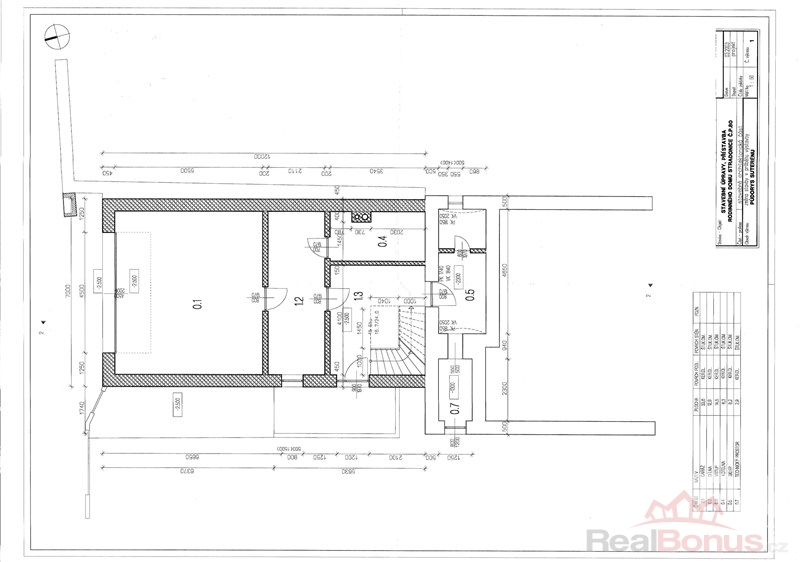
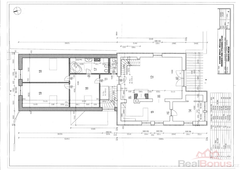
Nabízíme k prodeji krásný rodinný dům s dispozicí 5+kk ve Stradonicích u Nižboru v CHKO Křivoklátsko. Součástí prodeje je patrový zrekonstruovaný dům o ploše 260 m2, slunná zahrada o rozloze 426 m2 s bazénem, skleníkem a zahradním domkem. Velikou výhodou tohoto domu je, že hlavní obytná část s obývacím pokojem, kuchyní, šatnou, koupelnou, toaletou a třemi pokoji se nachází v jednom podlaží. Součástí domu je rozlehlé obytné podkroví, kde je dovedena voda i odpad a naskýtá se zde možnost pro další samostatnou jednotku nebo případně lze využít jako velkou ložnici. Detailní dispozice domu je součástí půdorysného plánku. Dům disponuje prostorným technickým zázemím (dílna, kotelna, sklep ...)
K dispozici jsou také čtyři parkovací místa (2x garáž, 2x venkovní).
Dům je připojen na inženýrské sítě včetně plynu, je zateplen a částečně vybaven.
Ideální pro rodinné bydlení v klidné lokalitě s plnou občanskou vybaveností, cca 8 km od Berouna a v dojezdové vzdálenosti cca 30ti minut do Prahy.
| Cena: |
(za nemovitost) 13 890 000,- Kč
(včetně provize)
|
|---|
| Počet podlaží objektu | 3 |
|---|---|
| Celková podlahová plocha | 260 m² |
| Druh objektu | cihlová |
| Stav objektu | velmi dobrý |
| Energetická třída | C - Úsporná |
| Vlastnictví | osobní |
| Počet podlaží pod zemí | 1 |
| Vlastní pozemek | 694 m² |
| Vybaveno | Možno zařídit |
| Doprava | vlak |
| Plyn | Zaveden |
| Stáří objektu | 2 003 |
| Počet míst k parkování | 4 |
| Zastavěná plocha | 234 m² |
| Užitná plocha | 260 m² |
| Počet bytů - celkem | 1 |
| Poloha objektu | samostatný |




