| Číslo zakázky: | 53006 |  Karta nemovitosti | 
|---|---|---|
| Typ zakázky: | prodej | 
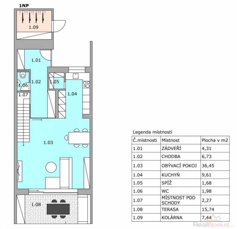
Řadový rodinný dům č. 2, právě ve výstavbě v Pasohlávkách. Dům je energeticky velmi úsporný (třída A) a disponuje třemi terasami o celkové rozloze 34 m2 + dvě parkovací místa. Cihlová konstrukce budovy zaručuje dlouhou životnost a kvalitu. Ideální pro rodinu hledající pohodlné a moderní bydlení v klidné lokalitě s možností relaxace.  
a) domy jsou prodávány ve stavu tz. Super hrubé stavby, kdy exteriér a oplocení bude dokončeno.
Na každém kupujícím bude, aby si dokončil dle svého uvážení, jaké technologie budou dům ovládat a jaké designové vybavení zde bude instalováno.
b) nebo Vám dům můžeme dokončit dle našich standardů. 
Jedná se o řadový rodinný dům 4+kk na pobřeží Mušovských jezer ve druhé etapě výstavby projektu Rezidence Pasohlávky. Výstavba byla zahájena a stylově bude navazovat na designovou eleganci a kvalitu první úspěšné etapy.  Dům nabídne moderní a funkční dispozice, maximálně využitý prostor, dvě parkovací místa a pohodlné bydlení pro celou rodinu. Navržená dispozice může mít několik modifikací, jejich návrhy rádi zašleme, například až na 5+kk.  
Zajištěn bude také dostatek užitkové vody pro závlahu a to z retenční nádrže.
| Cena: | (za nemovitost)   7 980 000,- Kč (včetně DPH, včetně provize) | 
|---|
| Druh objektu | cihlová | 
|---|---|
| Stav objektu | novostavba | 
| Energetická třída | A - Mimořádně úsporná | 
| Plocha teras | 34 m² | 
| Vybavení | terasa | 
| Umístění objektu | centrum | 
| Zastavěná plocha | 134 m² | 
| Plocha parcely | 202 m² | 
| Užitná plocha | 134 m² | 
| Charakter okolní zástavby | rekreační | 
| Poloha objektu | řadový | 





