| Číslo zakázky: | 00776 |  Karta nemovitosti | 
|---|---|---|
| Typ zakázky: | prodej | 
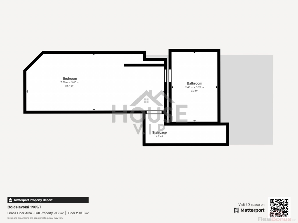
Nabízíme k prodeji prostorný a světlý mezonetový byt o dispozici 2+kk a výměře 72 m2, situovaný v podkroví (7. NP a 8. NP) zrekonstruovaného cihlového domu s výtahem. Byt je v osobním vlastnictví a nachází se v klidné lokalitě s výbornou dostupností do centra města.
Dispozičně je byt rozdělen na dvě úrovně ? ve spodním patře se nachází obývací pokoj s kuchyňským koutem, vstupní předsíň a samostatné WC. Po dřevěných vnitřních schodech se dostaneme do dalšího patra, kde se nachází další pokoj, prostorná koupelna s vanou a druhým WC s výhledem do vnitrobloku.
Prostor schodiště dodává interiéru vzdušný a prostorný nádech. Celý prostor se orientován od východu na západ což zaručuje dostatek světla po většinu dne i díky prosklenému vikýři v obývacím pokoji směrem na východ. Byt má  instalovanou klimatizaci, která zpříjemní letní měsíce.
Příspěvky do fondu na činí 2.500 Kč měsíčně, spotřeba elektrické energie cca 1.500 Kč měsíčně. Společenství vlastníků jednotek funguje bez problémů a dobře se stará o celý dům. Byt se nachází v 7. patře s moderním výtahem Schindler.
Byt je umístěn v tradiční vinohradské zástavbě jen 5 minut chůze od OC Flóra a nabízí tak rychlé dopravní spojení i občanskou vybavenost.
Byt je ideální pro jednotlivce, páry nebo jako investice k pronájmu.
| Cena: | (za nemovitost) 11 520 000,- Kč | 
|---|
| Dispozice bytu | 2+kk | 
|---|---|
| Číslo podlaží v domě | 7 | 
| Počet podlaží objektu | 7 | 
| Celková podlahová plocha | 72 m² | 
| Druh objektu | cihlová | 
| Stav objektu | velmi dobrý | 
| Energetická třída | D - Méně úsporná | 
| Vlastnictví | osobní | 
| Počet podlaží pod zemí | 7 | 
| Umístění objektu | centrum | 
| Telekomunikace | Telefon Internet | 
| Ostatní rozvody | Satelit Kabelová televize Kabelové rozvody Ostatní rozvody | 
| Topení | Ústřední - plynové Jiné | 
| Doprava | vlak dálnice silnice MHD autobus | 
| Voda | dálkový vodovod | 
| Odpad | Městská kanalizace | 
| Užitná plocha | 72 m² | 
| Inženýrské sítě | Vodovod Kanalizace | 
| Charakter okolní zástavby | obytná | 
| Poloha objektu | rohový | 




