| Číslo zakázky: | 966253 | ![]() Karta nemovitosti |
|---|---|---|
| Typ zakázky: | prodej |
Nabízíme k prodeji rodinný dům o dispozici 5+kk v klidné části obce Řevnice, ulice Kejnská. Dům byl kolaudován v roce 2012, stavba vznikla na původním RD, kdy došlo k rozšíření o obytné podkroví, nová zdivo (cihla, ytong), okna, zateplení, střecha, garáž jako novostavba.
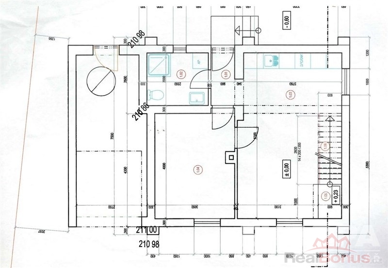
Celková výměra pozemku činí 173 m, z toho zastavěná plocha je 79 m. Dům je dvoupodlažní, přízemí a obytné podkroví, podsklepený praktickým sklepním prostorem.
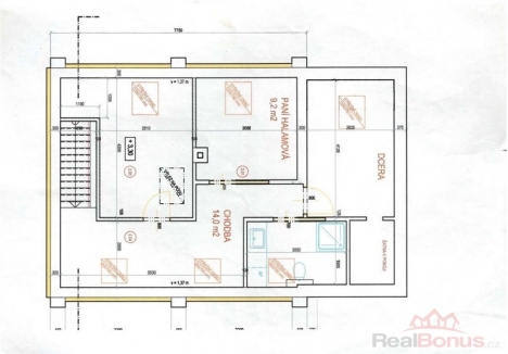
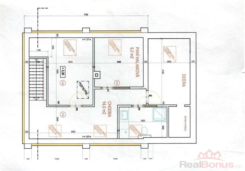
V přízemí se nachází vstupní předsíň, obývací pokoj s kuchyňským koutem a krbem, jedna ložnice a koupelna se sprchovým koutem a toaletou. V podkroví jsou tři samostatné ložnice a druhá koupelna s wc.
Dům je napojen na inženýrské sítě (voda, elektřina, kanalizace), má vlastní studnu s užíváním vody užitkové. Vytápění je řešeno v přízemí podlahovým vytápěním, v patře elektrickými přímotopy a doplněno krbovými kamny v přízemí domu. ohřev vody zajišťuje elektrický bojler.
Řevnice jsou vyhledávanou lokalitou s výbornou dostupností do Prahy vlakem cca 30 minut na Hlavní nádraží, autem cca 25 minut po D4 nebo Strakonické. V obci je kompletní občanská vybavenost základní a mateřská škola, lékař, obchody, restaurace, kulturní i sportovní vyžití. Okolí nabízí krásnou přírodu Brd, řeku Berounku a možnosti pro turistiku a cyklistiku. V případě zájmu kontaktujte makléře.
| Cena: |
(za nemovitost) 10 390 000,- Kč
(+ provize RK)
|
|---|
| Počet podlaží objektu | 2 |
|---|---|
| Celková podlahová plocha | 123 m² |
| Druh objektu | cihlová |
| Stav objektu | velmi dobrý |
| Energetická třída | G - Mimořádně nehospodárná |
| Vlastnictví | osobní |
| Vlastní pozemek | 173 m² |
| Plocha sklepu | 16 m² |
| Vybaveno | Nezařízeno |
| Odpad | Městská kanalizace |
| Stáří objektu | 2 012 |
| Počet míst k parkování | 1 |
| Zastavěná plocha | 79 m² |
| Užitná plocha | 103 m² |
| Počet bytů - celkem | 1 |
| Poloha objektu | samostatný |




