| Číslo zakázky: | E1419Z004 | ![]() Karta nemovitosti |
|---|---|---|
| Typ zakázky: | prodej |
Exkluzivně představujeme prodej rodinného domu v širším centru města Znojma. Nachází se v klidné části rodinných domů, zároveň je nedaleko centra. Dům o celkové zastavěné ploše 163 m2 se skládá ze suterénu, dvou nadzemních podlaží a dvougaráže. Dům obklopuje udržovaná zahrada o rozloze 465 m2 (dle výpisu z katastru nemovitostí).
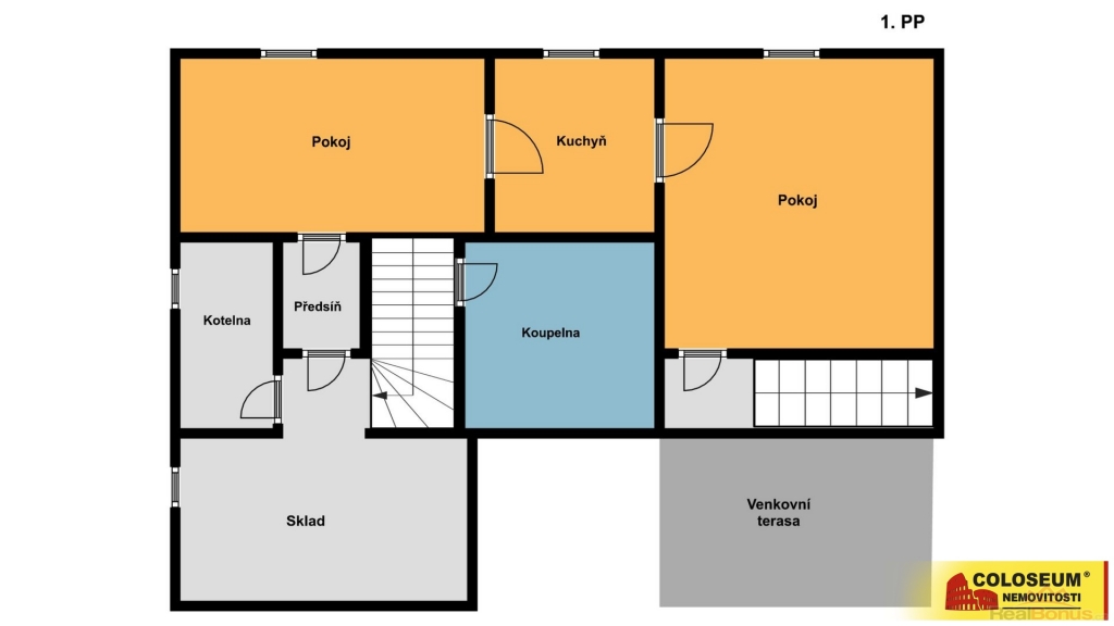
Suterén domu se skládá z apartmánu o dispozici 2+1 + koupelna s infrasaunou. který je již třetím rokem využíván na krátkodobé pronájmy(má samostatný vchod) dále je zde kotelna a sklad .První nadzemní podlaží se skládá z předsíně, kuchyně, jídelny spojené s obývacím pokojem, ložnice se šatnou, samostatné koupelny a toalety, komory a šatny. Z kuchyně se dále dostaneme do zastřešené terasy o rozloze 24 m2. V druhém nadzemním podlaží nalezneme dva pokoje a druhou terasu o rozloze 20 m2.
Dům prošel celkovou rekonstrukcí včetně výměny oken, střechy, rozvodů elektřiny, vody a kanalizace. Proběhlo i zateplení fasády . K vytápění a ohřevu teplé vody slouží plynový kotel a krbová kamna v obývacím pokoji. Průkaz energetické náročnosti budovy nebyl dodán a z toho důvodu je uvedena třída G.
V dvougaráži se nachází další koupelna s toaletou, ohřev vody je zde zajištěn elektrickým bojlerem. Součástí garáže je i dílna. Celková plocha garáže s dílnou a sociálním zařízením je 67 m2 + ještě jedna garáž samostatná . Celý dům je podsklepený.
Kolem domu je zahrada, která je tvořena okrasnými stromy a dřevinami, v zadní části nalezneme vybudované vyvýšení záhony k pěstování zeleniny.
Dům nabízí širokou paletu možností využití, od pohodlného vícegeneračního bydlení přes pokračování fungování apartmánu s vlastním bydlením až po kombinaci bydlení s podnikáním, kdy lze apartmán přebudovat na kancelář, kontaktní místo či ordinaci.
Veškeré uvedené plochy jsou přibližné a mají orientační charakter.
Pro více informací nebo sjednání termínu prohlídky neváhejte kontaktovat realitního makléře.
| Cena: |
(za nemovitost) 9 392 567,- Kč
(Celková cena je konečná, včetně právního servisu, provize, DPH a všech poplatků. Je však také možné o ni jednat ? pro více informací nás kontaktujte.)
|
|---|
| Počet podlaží objektu | 2 |
|---|---|
| Druh objektu | dřevěná |
| Stav objektu | po rekonstrukci |
| Energetická třída | G - Mimořádně nehospodárná |
| Počet podlaží pod zemí | 1 |
| Výška stropu | 2 mm |
| Plocha teras | 24 m² |
| Plocha sklepu | 105 m² |
| Vybavení | terasa sklep zahrada |
| Umístění objektu | centrum |
| Telekomunikace | Internet |
| Doprava | vlak dálnice silnice MHD autobus |
| Voda | zdroj pro celý objekt |
| Odpad | Městská kanalizace |
| Plyn | Zaveden |
| Rok rekonstrukce | 2 007 |
| Stáří objektu | 51 |
| Rok kolaudace | 1 974 |
| Parkování | garáž |
| Zastavěná plocha | 163 m² |
| Plocha parcely | 628 m² |
| Ostatní | Garáž |
| Užitná plocha | 130 m² |
| Počet bytů - celkem | 1 |
| Plocha zahrady | 465 m² |
| Komunikace | asfaltová |
| Inženýrské sítě | Kanalizace Plyn |
| Charakter okolní zástavby | obytná |
| Poloha objektu | samostatný |
