| Číslo zakázky: | 21634 | ![]() Karta nemovitosti |
|---|---|---|
| Typ zakázky: | prodej |
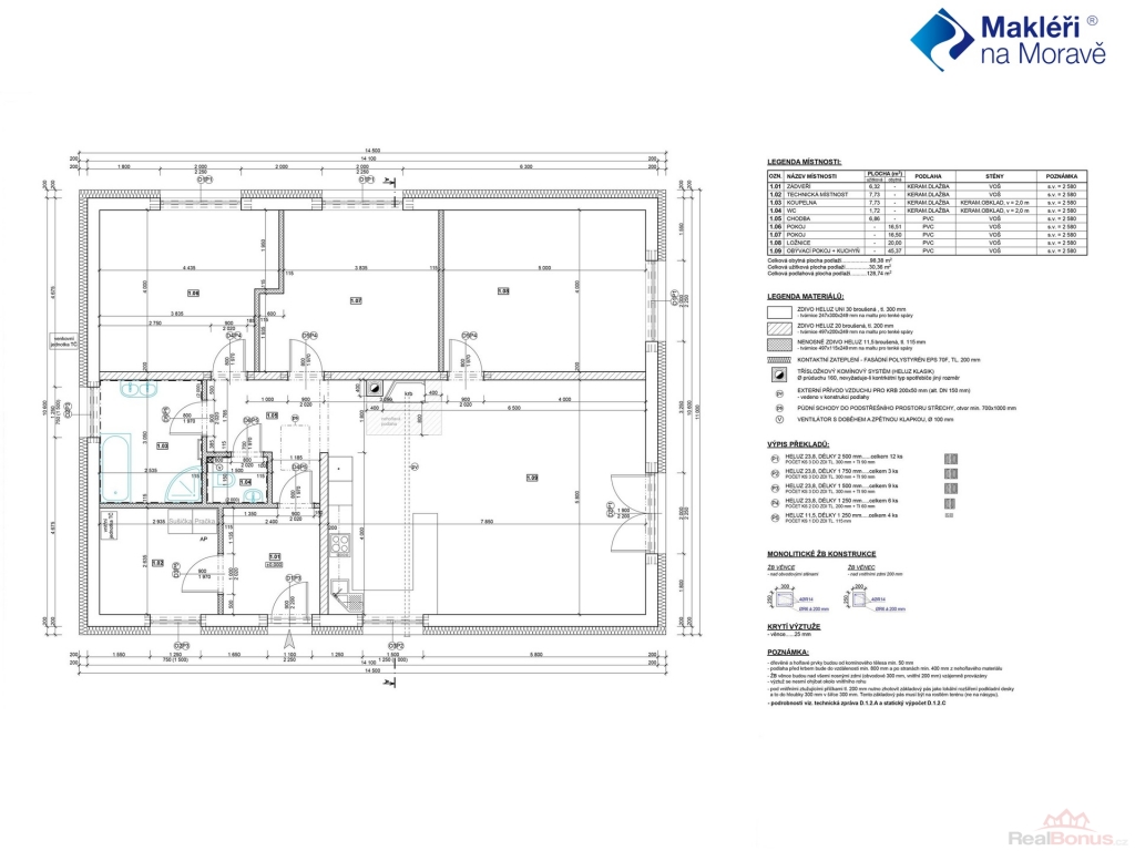
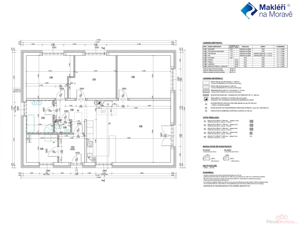
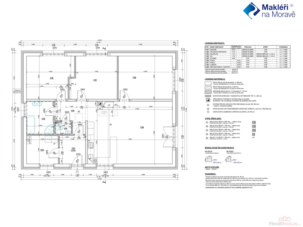
Jestli toužíte po bydlení ve svém, přijeďte se podívat na novostavbu sympatického bungalovu o dispozici 4+kk v podhorské obci Návsí u Jablunkova. Dům je řešen velmi účelně s pohodlným jednoduchým prostorovým interiérem s užitnou plochou 128 m2. Všechny místnosti jsou dostatečně velké, aby sloužily jak společnému trávení času v dominantním obývacím pokoji, tak také k soukromí každého člena rodiny. Každý pokoj má svůj východ francouzským oknem do zahrady. V prostorné koupelně je místo pro vanu, sprchový kout i 2 umyvadla. WC je řešeno samostatně. S místem pro pračku a sušičku se počítá v technické místnosti.
Vytápění domu zajišťuje systém elektrického podlahové topení, který umožňuje zapínání jednotlivých pokojů samostatně. Dům je kompletně zateplen, což spolu s kvalitními okny přinese značnou úsporu tepla.
Alternativní vytápění zastane interiérový krb na dřevo s bočním otevíráním horkovzdušné vložky.
Vybavení kuchyně je v nadstandardním provedení s komfortní prostornou rohovou kuch. linkou a s ostrůvkem se spoustou úložného prostoru. Spotřebiče zn. Gorenje jsou rovněž zárukou kvality.
Dům je napojen na přívod obecní vody, elektřinu s tarifem C01D a splašková kanalizace je řešena jímkou.
Kolem domu je položena zámková dlažba s parkovacími místy pro min. 3 auta a před obývacím pokojem je již připravena podesta pro terasu.
Tento dům je již kompletně dokončen a zkolaudován. V průběhu 14ti dnů budou ještě dokončeny terénní úpravy.
Součástí ceny je rovněž podíl ? na příjezdové cestě ? samostatné parcele o ploše 306 m2.
Použité materiály:
- zdivo - cihly Brittherm 300 mm; vnitřní omítka sádrová
- kvalitní zateplení fasádním polystyrenem 200 mm, sokl Styrotrade 100 mm
- zateplení stropu stříkanou izolací tl.250 mm,
- sedmikomorový profil s izolačními trojskly v barvě Coriander + venkovní žaluzie,
- střešní krytina ? falcovaný plech v nadčasové antracitové barvě,
- v domě je nainstalován kamerový systém.
Velká rovinatá zahrada Vám umožní široké využití ? buď relaxační s bazénem, pergolou a okrasnými keři nebo užitkové...
Dostupnost do centra obce je od domu 5 min. autem, kde na Vás čeká velmi dobrá občanská vybavenost - 2 základní školy a 2 školky, několik prodejen s potravinami a dalším spotřebním zbožím, větší supermarkety naleznete v nedalekém Jablunkově, cca 2 km vzdálené. Rovněž budete potěšeni pohodlným a rychlým spojením s většími městy jako je Třinec, Frýdek Místek, Č. Těšín a Ostrava díky rychlostní silnici, která vede i na Slovensko a do Polska.
Bydlení v obci Návsí na Vás dýchne přírodou všude kolem. Tuto lokalitu si určitě oblíbí nadšenci venkovského života, ale i ti, kdo touží po aktivním životním stylu. Naleznou zde určitě spoustu možností atraktivních sportovních aktivit, např. turistických a cyklistických tras do okolních malebných beskydských kopečků a rekreačních oblastí jak v létě, tak v zimě (několik lyžařských areálů v okolí, velká víceúčelová tělocvična, fotbalový areál?). Místní vše dobře znají a ostatní budou mile překvapeni.
Fotografie ukazují současný stav stavby, vizualizace jen naznačují možnosti vybavení místností.
Informací o stavbě a okolí je ještě mnoho, proto se na Vás těším na prohlídce, kde spolu probereme ostatní podrobnosti. Pokud budete mít zájem, pomohu Vám zajistit i financování.
| Cena: |
(za nemovitost) 8 990 000,- Kč
(včetně DPH, včetně provize, včetně právního servisu, cena k jednání)
|
|---|
| Počet podlaží objektu | 1 |
|---|---|
| Celková podlahová plocha | 2 886 m² |
| Druh objektu | cihlová |
| Stav objektu | novostavba |
| Energetická třída | C - Úsporná |
| Vybavení | zahrada |
| Umístění objektu | centrum |
| Telekomunikace | Internet |
| Topení | Lokální - tuhá paliva Ústřední - elektrické Jiné |
| Doprava | vlak dálnice silnice autobus |
| Voda | dálkový vodovod |
| Počet míst k parkování | 4 |
| Celková plocha | 2 886 m² |
| Zastavěná plocha | 158 m² |
| Plocha parcely | 2 728 m² |
| Ostatní | Parkoviště |
| Užitná plocha | 128 m² |
| Plocha zahrady | 777 m² |
| Inženýrské sítě | Vodovod |
| Charakter okolní zástavby | venkovská |
| Poloha objektu | samostatný |




