| Číslo zakázky: | 2570 | ![]() Karta nemovitosti |
|---|---|---|
| Typ zakázky: | pronájem |
Nabízíme do nájmu ( rezervace ) moderní logistické a výrobní haly poblíž letiště Praha Ruzyně. Haly dělitelné od 1000 m2 až po celky cca 3 000, 5000 a 10 000 m2. Zázemí v halách, K předání přelom roku 2024/2025 až 05 2025
----------------------------------------------------------------------------
Hala A4 - celkem 3247 m2 skladů - dělitelné na 2x 1600 m2 + zázemí.
Výška 7,5 m, 4x nákladní vstupy, vytápěno
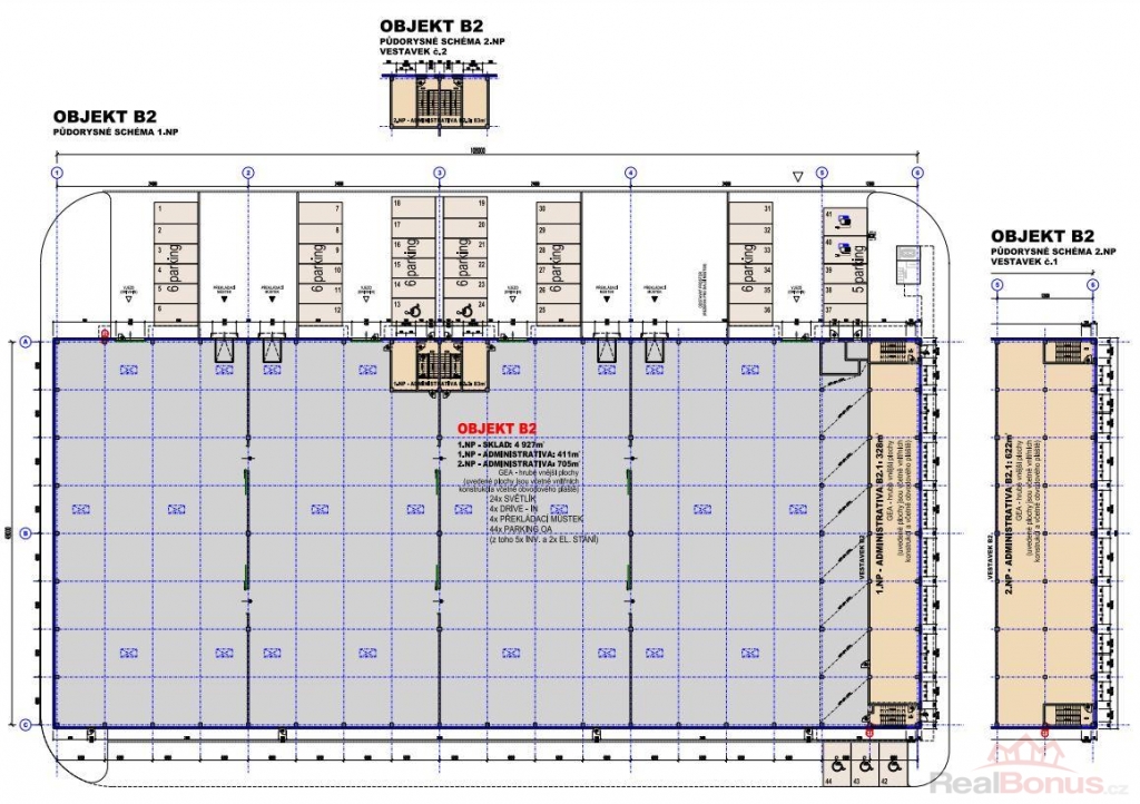
Hala B2 - celkem 4930 m2 skladů - dělitelné na 3x 1650 m2 + zázemí.
Výška 8 m, 6x nákladní vstupy, vytápěno
Hala B1 - celkem 4930 m2 skladů - dělitelné na 3x 1650 m2 + zázemí.
Výška 10 m, 6x nákladní vstupy, vytápěno
--------------------------------------------------------------------------------
Vydáno pravomocné územní rozhodnutí o povolení stavby a Stavební povolení. Rezervace IHNED. Započetí stavby 05/2024 a očekávaná kolaudace již v 01/2025. Individuální úpravy možné, zázemí pro dopravu. V případě nájmu většího celku bude možno jednat o ceně. Min. doba nájmu je 5 let. Veškeré dokumentace a půdorysy k dispozici a po domluvě bezplatně zašleme. Velice strategické místo pro nákladní dopravu !
ARCHA - průmyslová kancelář ( Praha, Beroun )
Mob: 608 827 778
archa.sklady@seznam.cz
www.archacs.cz
| Cena: | (za m2 / měsíc) 185,- Kč |
|---|
| Číslo podlaží v domě | 1 |
|---|---|
| Počet podlaží objektu | 1 |
| Druh objektu | skeletová |
| Stav objektu | novostavba |
| Umístění objektu | okrajová zástavba |
| Vybaveno | Částečně zařízeno |
| Topení | Ústřední - dálkové |
| Účel budovy | Sklad |
| Výrobní plocha | 500 m² |
| Dílna | 500 m² |
| Druh stavby | budova/y, hala/y |
| Poloha objektu | samostatný |
| Druh prostor | Skladovací |




