 
		
					
		
 
			
			
		| Číslo zakázky: | 00144 |  Karta nemovitosti | 
|---|---|---|
| Typ zakázky: | prodej | 
Hledáte ke koupi bytovou jednotku v osobním vlastnictví, k nastěhování bez nutnosti rekonstrukce? Na klidném místě a zároveň se vším potřebným v blízkém okolí?
Ve výhradním zastoupení majitelů, Vám zprostředkujeme koupi bytové jednotky o velikosti 3+1 v ulici U Jánského dvora č.p. 3009/15, městská část Stará Břeclav, Břeclav.
Byt se nachází v 1. zvýšeném nadzemním podlaží z celkového počtu 4 podlaží.
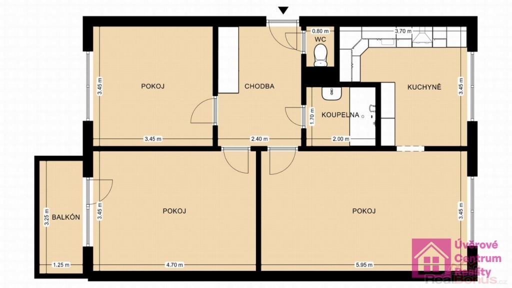
Celková plocha bytu je 75 m2, s obytnou plochou 72 m2.
Dispozice: předsíň, toaleta, koupelna s vanou, kuchyň, obývací pokoj, dva neprůchozí pokoje a balkon. V suterénu bytového domu je umístěna sklepní kóje. Půdorys bytu naleznete ve fotogalerii.
Aktuální měsíční náklady na provoz bytu 7.700 Kč (elektřina, teplo, voda, fond oprav a správa bytového domu).
V blízkém okolí domu skvělá občanská vybavenost (mateřská a základní škola, pošta, restaurace, supermarket)
Možnost parkování před domem.
K předání dohodou.
Zaujala Vás tato nabídka? Máte zájem o prohlídku bytu? Vám vyhovující termín prohlídky (datum a čas) s kontakty na Vás (e-mail + tel. číslo) zasílejte formou odpovědi na inzerci.
Realitní makléř Vás následně bude telefonicky kontaktovat a domluví se s Vámi na přesném termínu prohlídky bytu.
| Cena: | (za nemovitost)   4 755 000,- Kč (včetně poplatků, včetně provize) | 
|---|
| Dispozice bytu | 3+1 | 
|---|---|
| Číslo podlaží v domě | 1 | 
| Počet podlaží objektu | 4 | 
| Celková podlahová plocha | 75 m² | 
| Druh objektu | panelová | 
| Stav objektu | velmi dobrý | 
| Energetická třída | G - Mimořádně nehospodárná | 
| Vlastnictví | osobní | 
| Počet podlaží pod zemí | 1 | 
| Lodžie | 3 m² | 
| Plocha sklepu | 2 m² | 
| Vybavení | lodžie sklep | 
| Umístění objektu | centrum | 
| Telekomunikace | Internet | 
| Topení | Ústřední - dálkové | 
| Doprava | vlak dálnice silnice MHD autobus | 
| Voda | dálkový vodovod | 
| Odpad | Městská kanalizace | 
| Plyn | Zaveden | 
| Stáří objektu | 35 | 
| Užitná plocha | 75 m² | 
| Komunikace | asfaltová | 
| Inženýrské sítě | Vodovod Kanalizace Plyn | 
| Poloha objektu | řadový | 





