| Číslo zakázky: | 653126 |  Karta nemovitosti | 
|---|---|---|
| Typ zakázky: | prodej | 
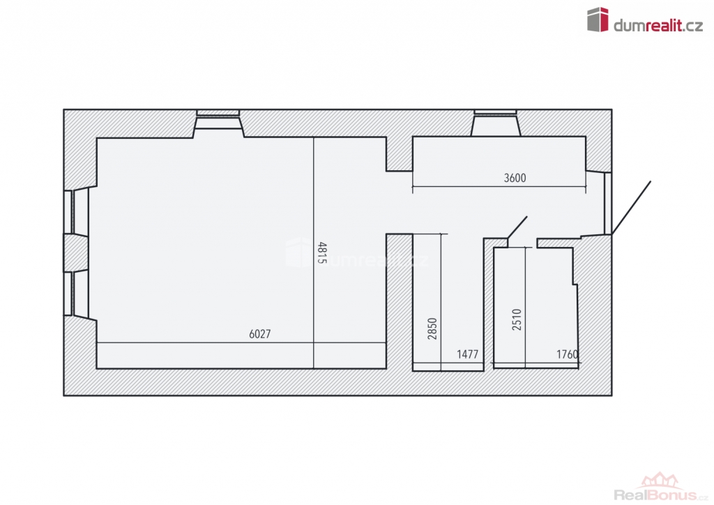
, prodej krásného bytu 1+1, 46 m v obci Kounov. Byt se skládá ze vstupní chodby s vestavěnou skříní, kuchyně s jídelním koutem a obytného pokoje o výměře 30 m, který lze rozdělit na dva menší pokojíky. Byt se prodává vybavený: vestavěná skříň, sanita koupelny, pračka, sušička, kuchyňská linka včetně spotřebičů, vyvýšená postel s úložným systémem a komody. K bytu dále náleží dva úložné prostory hned vedle bytu, první o velikosti 16 m kde je přivedená kanalizace, voda a elektřina, druhý prostor o výměře 2,5 m. 
Vytápění elektoro kotlem nebo klimatizací, ohřev vody bojlerem, který se dá v letních měsících nahřívat teplým vzduchem z venku. V bytě zateplená podlaha, plastová okna. 
Byt je velmi prostorný a vzdušný.
V obci Kounov dobré občanské vybavení, mateřská školka, základní škola, obchod se smíšeným zbožím, pošta, dětské hřiště, fotbalové hřiště. Okolí je vhodné jak pro cykloturistiku, tak i pěší turistiku.
Zajímavosti: Kamenné řady Kounov, Kostel svatého Víta, Kaple svatého Vojtěcha.
Velmi dobré dopravní spojení: Obec Kounov leží na železniční trati 126 Rakovník  Louny  Most. Autobusové spojení Louny, Mutějovice, Rakovník, Žatec.
Doporučuji prohlídku. Ev. číslo: 652512. Energetický štítek: G
| Cena: | (za nemovitost) 2 490 000,- Kč | 
|---|
| Dispozice bytu | 1+1 | 
|---|---|
| Číslo podlaží v domě | 1 | 
| Počet podlaží objektu | 2 | 
| Celková podlahová plocha | 46 m² | 
| Druh objektu | smíšená | 
| Stav objektu | velmi dobrý | 
| Energetická třída | G - Mimořádně nehospodárná | 
| Vlastnictví | osobní | 
| Počet míst k parkování | 1 | 
| Užitná plocha | 46 m² | 

