Prodej samostatného RD, 222 m2, Valtice (okres Břeclav)

Prodej samostatného RD, 222 m2, Valtice (okres Břeclav)

Nemovitost nabízí:

Úvěrové Centrum Reality s.r.o.
Úvěrové Centrum Reality s.r.o.
sídl. Dukelských hrdinu 2772/21,
690 02 Břeclavwww.uverove-centrum.cz/reality
Igor Kahánek
Igor Kahánek
Mobil: +420 608 776 618
kahanek@uverovecentrum.cz

Kontaktovat makléře

Odeslat
Číslo zakázky: 00143  
Karta
nemovitosti
Typ zakázky: prodej
Prodej rodinného domu 5+1, 222 m2, zahrada, garáž, Valtice

Hledáte ke koupi prostorný rodinný dům se zahradou, bazénem a garáží ve Valticích?

Ve výhradním zastoupení Vám zprostředkuji koupi novostavby rodinného domu o velikosti 5+1, v ulici 21.dubna č.p. 1113, v městečku Valtice, okres Břeclav. Dům byl kolaudován v 09/2016.

Zastavěná plocha domu 150 m2 s pozemkem o celkové ploše 880 m2 a celkovou plochou 222 m2.

Dispozice domu:
1.nadzemní podlaží: garáž, zádveří, chodba, schodiště, toaleta, koupelna (se sprchovým koutem), technická místnost, obývací pokoj, zimní zahrada, jídelna s kuchyní a špajz.
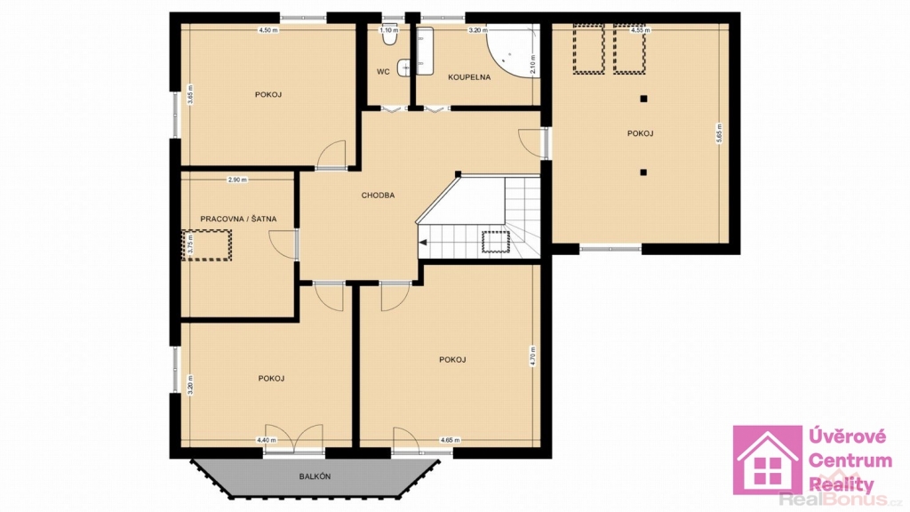
2.nadzemní podlaží: schodiště, pokoj, chodba, koupelna (vana), toaleta, pracovna a tři pokoje.
Půdorysy obou podlaží domu naleznete ve fotogalerii.

Vytápění a ohřev vody v domě je zajištěn plynovým kondenzačním kotlem. Rozvody topení v mědi s deskovými radiátory Korado, druhým zdrojem tepla nebo chlazení jsou klimatizační jednotky s tepelnými čerpadly. Dům je napojen na veškeré inženýrské sítě.

Celý pozemek domu je oplocen. Zahrada s vzrostlými stromy a krytým bazénem zajištuje dostatek soukromí. Pro Vaše děti je před domem, avšak na oploceném pozemku menší dětské hřiště.

Město Valtice disponuje kompletní občanskou vybaveností (mateřská škola, základní škola, střední škola, lékař, několik restaurací, obchod, pošta, kostel a jiné)

Na dálnici D2 (Brno ? Bratislava) dojedete za 17 minut. Do okresního města Břeclav nebo do Mikulova za 15 minut. Dále je zde možné doprava autobusem nebo vlakem.

Ihned k předání.

Zaujala Vás tato nabídka? Máte zájem o prohlídku domu? Vám vyhovující termín prohlídky (datum a čas) s kontakty na Vás (e-mail + tel. číslo) zasílejte formou odpovědi na tuto inzerci.

Realitní makléř Vás následně bude telefonicky kontaktovat a domluví se s Vámi na přesném termínu prohlídky domu.

Cena: (za nemovitost)   14 495 000,- Kč
(včetně poplatků, včetně provize, včetně právního servisu)

Informace o nemovitosti

Počet podlaží objektu2
Celková podlahová plocha222 m²
Druh objektucihlová
Stav objektunovostavba
Energetická třídaG - Mimořádně nehospodárná
Plocha teras22 m²
Vybaveníterasa
Umístění objektucentrum
TelekomunikaceInternet
TopeníÚstřední - plynové
Ústřední - elektrické
Jiné
Dopravavlak
silnice
autobus
Vodadálkový vodovod
OdpadMěstská kanalizace
PlynZaveden
Rok kolaudace2 016
Parkovánígaráž
Počet míst k parkování2
Celková plocha222 m²
Zastavěná plocha150 m²
Plocha parcely880 m²
OstatníBazén
Garáž
Parkoviště
Užitná plocha222 m²
Komunikaceasfaltová
Inženýrské sítěVodovod
Kanalizace
Plyn
Charakter okolní zástavbyobytná
Poloha objektusamostatný
Plocha bazénu18
G - Mimořádně nehospodárná

Energetická náročnost:


RealBonus.cz

Používáme cookies!

Tyto stránky používají a ukládají soubory cookies. Některé jsou nezbytné pro jejich správné fungování (tzv. technické cookies). Dále tyto stránky využívají marketingové a analytické cookies pro zkvalitnění našich služeb a přizpůsobení zobrazovaného obsahu. Pro jejich využití je nutný Váš souhlas. Více informací o cookies.