| Číslo zakázky: | 231220 | ![]() Karta nemovitosti |
|---|---|---|
| Typ zakázky: | prodej |
Ve výhradním zastoupení majitele Bidli nabízí k prodeji RD, s dispozičním řešením jako 2+kk a 1+kk v přízemí, možností rozšíření o obytné podkroví, s garáží a zahradou, nacházející se v klidné ulici obce Velká Dobrá, v okr. Kladno. Jedná se o obec s vynikající dopravní dostupností Prahy. Nájezd na D6 je 1 km (15 min. letiště Václava Havla).
Rodinný dům je umístěn na pozemku o velikosti
585 m2 (zastav. plocha 284 m2, zahrada 304 m2) a nabízí klidné bydlení a soukromí.
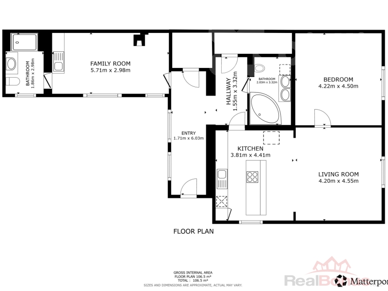
Dům sestává z prostorné členité předsíně (15,5 m2), ze které se vchází vpravo do obývacího pokoje (36 m2), s velkou moderní kuchyňskou linkou, barovým pultem, jídelním stolem a rohovou sedací soupravou. Příjemné klima i v horkých letních měsících zde zajišťuje klimatizace. Z obývacího pokoje je vstup do ložnice (19 m2).
Z předsíně je vchod také do koupelny (6,5 m2) s vířivou masážní vanou, WC, umyvadlem a prostorem na pračku.
Z předsíně se dále dostaneme do komory, nebo po schodech na půdu, která nabízí možnost rozšíření obytné plochy.
Benefitem této nemovitosti je samostatné 1+kk (17 m2), s novou kuchyňkou a zrekonstruovanou koupelnou (5,5 m2) a RD tak může sloužit i jako dvougenerační. V tomto pokoji jsou i krbová kamna.
Vytápění domu zajišťuje plynový kotel, ohřev teplé vody bojler a průtokový ohřívač, dům je napojen na kanalizaci, obecní vodovod, noční proud a k úspoře elektřiny přispívá fotovoltaika.
Jsou zde nízké náklady na bydlení (6.700,- Kč/měs.).
Na oploceném pozemku s dálkově ovládanými vraty a garáží pro 1 auto, můžou parkovat 2-3 další auta.
Západně orientovaná zahrada je velmi účelně využita. Nachází se zde dřevěný altán s grilem, jezírko, venkovní sprcha, skleník, zahradní domek, studna, s dostatkem vody na zalévání a v neposlední řadě i prostor pro slepice.
Velká Dobrá je obec se základní občanskou vybaveností, je zde ZŠ, MŠ, zdravot. zařízení, pošta, místní úřad, sportoviště, restaurace, cukrárna, Billa a Coop.
Dopravní dostupnost zajišťují autobusy, směřující do Kladna, nebo do Prahy (Zličín, Motol). Autem po D6 20 min. Zličín.
| Cena: |
(za nemovitost) 8 990 000,- Kč
(včetně provize a právních služeb) (cena k jednání) (Cena včetně provize RK, DPH a právních služeb.)
|
|---|
| Počet podlaží objektu | 2 |
|---|---|
| Druh objektu | cihlová |
| Stav objektu | dobrý |
| Energetická třída | E - Nehospodárná |
| Vlastnictví | osobní |
| Vlastní pozemek | 585 m² |
| Vybavení | zahrada podkroví |
| Umístění objektu | klidná část obce |
| Telekomunikace | Internet |
| Ostatní rozvody | Kabelová televize Kabelové rozvody |
| Vybaveno | Částečně zařízeno |
| Topení | Lokální - plynové Lokální - tuhá paliva Solární kolektory |
| Doprava | dálnice silnice autobus letiště |
| Elektřina | 230 V 380 V |
| Voda | dálkový vodovod vlastní studna |
| Odpad | Městská kanalizace |
| Plyn | Zaveden |
| Občanská vybavenost | Škola Školka Zdravotnická zařízení Pošta Supermarket Restaurace Místní úřad |
| Parkování | garáž |
| Počet míst k parkování | 4 |
| Zastavěná plocha | 281 m² |
| Plocha parcely | 585 m² |
| Ostatní | Plot Garáž |
| Užitná plocha | 170 m² |
| Počet bytů - celkem | 2 |
| Plocha zahrady | 304 m² |
| Komunikace | asfaltová |
| Poloha objektu | samostatný |
| Velikost bytů (3+1, 2+kk atd.) | 2+kk, 1+kk |




