| Číslo zakázky: | 18689 | ![]() Karta nemovitosti |
|---|---|---|
| Typ zakázky: | prodej |
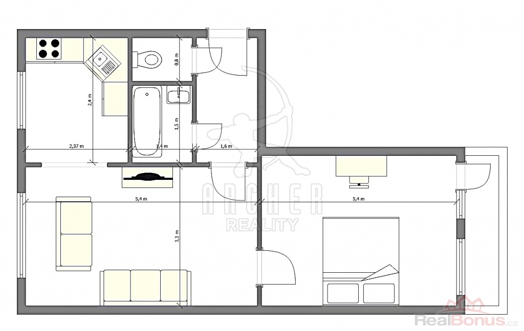
Exkluzivně nabízíme k prodeji byt 2+1 DV, 60 m2, 4 m2 lodžie, sklep 2 m2, Praha 10 - Uhříněves, ul. V bytovkách. Světlý a prostorný byt se nachází ve druhém podlaží cihlového domu ve slepé ulici, v klidné lokalitě obce Uhříněves v Praze 10. Orientace bytu je na jihozápad a jihovýchod, dispozičně 2+1,velký obývací pokoj/ 18 m2 /, prostorná ložnice / 16 m2 /, lodžie, sklep. Je po celkové rekonstrukci, plastová okna, nové podlahy a omítky, nová elektřina, odpady, rozvody, nová koupelna a toaleta, nová kuchyně na zakázku se všemi spotřebiči. Dům po kompletní rekonstrukci, nová střecha, stoupačky, nový výtah, nová fasáda včetně zateplení domu, přístup je bezbariérový.
Dobrá dopravní dostupnost, autobusem metro A Depo Hostivař 19 min., vlakové nádraží 300 m, vlakem Praha Hlavní nádraží 20 min., v okolí veškerá občanská vybavenost, příroda, obora v Uhříněvsi 100 m, škola, školka.
Družstevní financování - zajistíme 3 mil.Kč, v případě zastavení jiné nemovitosti zajistíme financování hypotékou od 4,29 %, případně nezajištěný úvěr od 5,99 %.
Doporučujeme prohlídku. Třída G - Mimořádně nehospodárná Energetický štítek budovy (PENB) nebyl dodán.
| Cena: |
(za nemovitost) 6 698 000,- Kč
(výše anuitní splátky: 1, platby družstvu: 3500, elektřina: 1000) (včetně provize)
|
|---|
| Dispozice bytu | 2+1 |
|---|---|
| Číslo podlaží v domě | 2 |
| Počet podlaží objektu | 6 |
| Celková podlahová plocha | 64 m² |
| Druh objektu | cihlová |
| Stav objektu | po rekonstrukci |
| Energetická třída | G - Mimořádně nehospodárná |
| Vlastnictví | družstevní |
| Počet podlaží pod zemí | 1 |
| Lodžie | 4 m² |
| Bezbariérový byt | ano |
| Umístění objektu | klidná část obce |
| Doprava | vlak |
| Odpad | Městská kanalizace |
| Plyn | Zaveden |
| Rok rekonstrukce | 2 022 |
| Rok kolaudace | 1 960 |
| Užitná plocha | 64 m² |




