| Číslo zakázky: | 653148 | ![]() Karta nemovitosti |
|---|---|---|
| Typ zakázky: | prodej |
Nová cena.
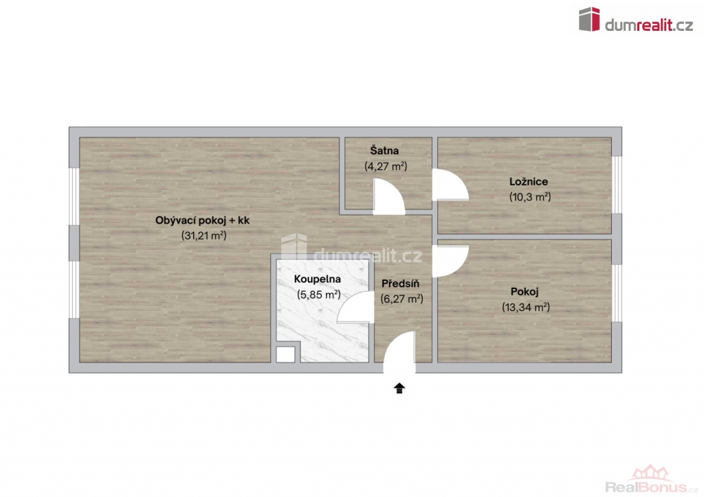
Včetně provize a právního servisu., Nabízím k možnému prodeji družstevní byt 3+1 o celkové velikosti 76,16 m včetně sklepní kóje ca 2 m. Dům prošel revitalizací, je zateplen, okna jsou plastová. Byt je umístěný ve 4. NP v domě s výtahem. Lokalita je klidná s dostatkem parkovacího místa před domem. Navíc právě probíhá výstavba parkovacího domu, který bude vzdálen cca 350 m od domu. Byt prošel originální přestavbou s osobitým vkusem na interiér. Stěny jsou opatřeny sádrokartonem se zvukovou izolací. Kuchyně byla propojena s obývacím pokojem a doplněna o barový pult. Prostorná chodba spojuje všechny pokoje včetně šatny o velikosti cca 4,2 m, která je průchozí do ložnice. Prostorná koupelna nabízí vanu i sprchový kout. Dále pak samostatný pokoj o velikosti cca 13 m spolu s obývacím pokojem a kuchyní o velikosti cca 32 m dokreslují kvalitu bytu. Obývací pokoj je navíc vybavený klimatizací. Aktuální výše záloh činí 4.732 Kč včetně fondu oprav ve výši 1.654 Kč. V blízkosti domu je autobusová i vlaková zastávka. Autem do Prahy cca 20 min. Základní škola je za domem, Gymnázium v docházkové vzdálenosti. Neratovice disponují kompletní občanskou vybaveností. Pro bližší informace volejte makléře. Ev. číslo: 652534. Energetický štítek: G
| Cena: |
(za nemovitost) 4 990 000,- Kč
(Nová cena.
Včetně provize a právního servisu.)
|
|---|
| Dispozice bytu | 3+1 |
|---|---|
| Číslo podlaží v domě | 4 |
| Počet podlaží objektu | 9 |
| Celková podlahová plocha | 76 m² |
| Druh objektu | panelová |
| Stav objektu | po rekonstrukci |
| Energetická třída | G - Mimořádně nehospodárná |
| Vlastnictví | družstevní |
| Užitná plocha | 76 m² |




