| Číslo zakázky: | 229100 | ![]() Karta nemovitosti |
|---|---|---|
| Typ zakázky: | prodej |
Nabízíme k prodeji krásnou chalupu v klidné lokalitě, která splňuje vše, co potřebuje moderní rodina. Díky prostorné zahradě a okolí plnému přírody zde najdete dokonalé zázemí pro děti, rodinný život i volnočasové aktivity.
Hlavní přednosti:
- v dosahu škola, školka, obchody i lékař
- velká zahrada - ideální pro hry dětí, zahradničení i odpočinek
- možnost vytvořit rodinnou chalupu či chovnou stanici pro psy, kočky nebo jiné zvířecí miláčky
- klidná lokalita se soukromím a přesto skvělou dostupností všeho potřebného
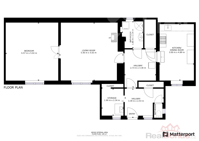
Chalupa má dispozici 2+1 a je připravená k okamžitému užívání, zároveň ale dává prostor pro další úpravy - zejména půda je natolik vysoká (3 m) a prostorná (23 x 5 m), že si z ní bez problémů vytvoříte další obytnou část. Stavba je částečně rekonstruována - nová voda, odpady, izolace, elektřina a omítky. Vytápění tuhými palivy - klasika, která má své kouzlo i praktičnost.
Na pozemku najdete vše, co k chalupě patří: velkou vzrostlou zahradu, kde se dá relaxovat i pěstovat, stodolu, bývalé chlévy, kůlnu a sklep. Každý kousek tu má své využití - ať už chcete tvořit, skladovat, hospodařit nebo jen posedět ve stínu stromů.
Lokalita: Nasavrky jsou malá obec uprostřed přírody, obklopená lesy a poli. Ideální pro ty, kdo hledají jednoduchost a klid. Přitom do Golčova Jeníkova je to jen 2 km - pěšky pohodových 20 minut, autem jste tam za 5. Ve městě je veškerá občanská vybavenost: obchod, škola, školka, lékař, pošta, restaurace i vlakové a autobusové spojení.
Navíc jen cca 25 minut autem leží Kutná Hora, památka UNESCO s historickým centrem, kavárnami, galeriemi i kulturním životem - ideální na výlety i inspirativní zastavení. A pokud milujete přírodu, za dalších 25 minut se dostanete do Železných hor - CHKO s lesy, přehradou Seč a výbornými podmínkami pro turistiku i cyklistiku.
Tato chalupa je ideální volbou pro ty, kteří hledají kombinaci rodinného pohodlí, přírody a praktického zázemí - ať už k trvalému bydlení, nebo jako rodinnou rekreační chalupu.
| Cena: |
(za nemovitost) 4 800 000,- Kč
(Včetně provize a právního servisu.)
|
|---|
| Počet podlaží objektu | 3 |
|---|---|
| Druh objektu | smíšená |
| Stav objektu | po rekonstrukci |
| Energetická třída | G - Mimořádně nehospodárná |
| Vlastnictví | osobní |
| Počet podlaží pod zemí | 1 |
| Vlastní pozemek | 1 313 m² |
| Plocha sklepu | 10 m² |
| Vybavení | sklep zahrada |
| Umístění objektu | klidná část obce |
| Vybaveno | Nezařízeno |
| Topení | Lokální - tuhá paliva |
| Doprava | autobus |
| Elektřina | 230 V 380 V |
| Voda | dálkový vodovod |
| Odpad | Septik Plánovaná výstavba kanalizace |
| Plyn | Na hranici |
| Rok rekonstrukce | 2 013 |
| Stáří objektu | 1 930 |
| Zastavěná plocha | 900 m² |
| Plocha parcely | 1 313 m² |
| Ostatní | Plot Sociální zařízení |
| Užitná plocha | 105 m² |
| Počet bytů - celkem | 1 |
| Dílna | 100 m² |
| Komunikace | asfaltová |
| Poloha objektu | samostatný |
| Další nebytový objekt | patrový |
| Velikost bytů (3+1, 2+kk atd.) | 2+1 |
