| Číslo zakázky: | 5556 | ![]() Karta nemovitosti |
|---|---|---|
| Typ zakázky: | pronájem |
Nabízíme k nájmu sklad s prodejnou a kancelářemi v ČESTLICÍCH u Prahy na Dálnici D1 Praha - Brno. Areál je umístěn v atraktivní komerční zóně Průhonice-Čestlice, přilehlé k dálnici. Budovy plně klimatizovány.
Nabízíme uvolněnou část k pronájmu od 3/2025 .
Celková plocha k nájmu: 1.393 m2
z toho :
- sklady, prodejna: 1 099 m2
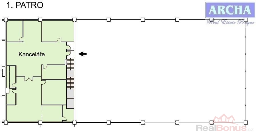
- kanceláře v patře: 294 m2
Cena nájmu sklady: 209 Kč/m2/měsíc
Cena nájmu kanceláře, prodejna: 280 Kč/m2/měsíc
Nabídka se skládá z přízemní haly + showroom + zázemí a dále v patře z administrativního celku (viz. plány). Nájem lze realizovat pouze jako celek.
Příjezd TIR.
2 x vjezdová rolovací vrata.
Využitelná výška: až 7 m
Zázemí pro sklad v přízemí, a samostatně i pro kanceláře v patře.
Administrativní část je prostorově variabilní, lze upravit na míru zákazníkovy.
Nájem možný od 03/2025.
Provizi neplatíte
ARCHA realitní kancelář
PRAHA
Telefon: 737851059, 702072257, 608135458
Email: archa-rk@seznam.cz
Dat.sch.: 4td8nr3
www.facebook.com/nemovitosti.archa
www.twitter.com/archa_life
www.instagram.com/nemovitosti_archa
www.archa-rk.cz
| Cena: |
(za m2 / měsíc) 214,- Kč
(k jednání)
|
|---|
| Číslo podlaží v domě | 1 |
|---|---|
| Počet podlaží objektu | 2 |
| Celková podlahová plocha | 1 393 m² |
| Druh objektu | smíšená |
| Stav objektu | velmi dobrý |
| Energetická třída | C - Úsporná |
| Umístění objektu | centrum |
| Vybaveno | Částečně zařízeno |
| Elektřina | 230 V |
| Připojení na internet | Jiné |
| Celková plocha | 1 393 m² |
| Účel budovy | Sklad |
| Výrobní plocha | 1 099 m² |
| Užitná plocha | 1 393 m² |
| Plocha kanceláří | 294 m² |
| Dílna | 1 099 m² |
| Inženýrské sítě | Vodovod Kanalizace Elektřina |
| Druh stavby | budova/y, hala/y |
| Poloha objektu | v bloku |
| Druh prostor | Skladovací |




