| Číslo zakázky: | 25-05-001 |  Karta nemovitosti | 
|---|---|---|
| Typ zakázky: | prodej | 
Vaše cesta do přírody vede po silnici I. třídy z Brna do Svitav! 
Tento domeček o dispozici 3+1 dostal ke svým stým narozeninám kompletní rekonstrukci. Z původního zůstaly vlastně jen základy, obvodové zdivo a hlavně genius loci vesnického domečku s klenbovým sklepem a dřevěným trámovým stropem.  
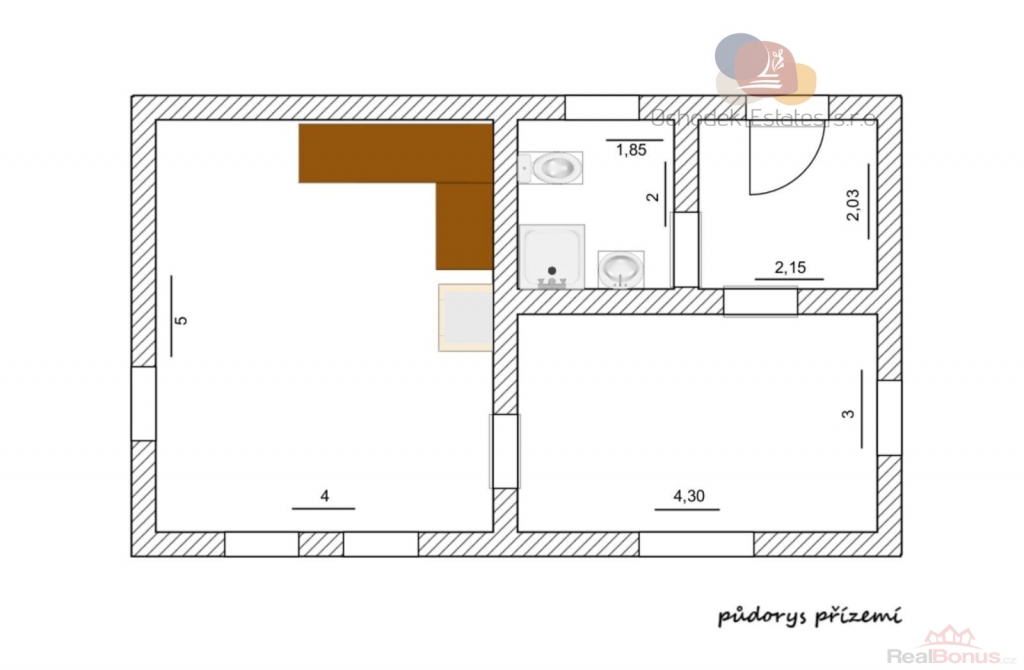
Opravilo se tu opravdu vše na co si vzpomenete. Začněme s výčtem od sklepa, kde je vše vyčištěné, navezen nový makadam pro odvětrávání. V technické místnosti je elektrický kotel, který je využíván jako záložní zdroj tepla a nový bojler. V přízemí je prostorná předsíň, koupelna s WC, kuchyně a obývák. A právě tady vás na chvíli zastavím. Tady si zatopíte v krbu (10kW s výměníkem a rozvodem do celého domu i bojleru) a budete si užívat pohodu...  
Odtud se po krásném dřevěném (jilm) schodišti dostanete do podkroví do ložnice a pokojíku. 
Samozřejmě jsou tu i nová plastová okna s trojskly, kompletně udělané rozvody vody, odpadů i elektřiny, nové stropní trámoví s vyřezáváním dle původního vzhledu, celá nová střecha s pálenou taškou a zateplením 16-20cm minerální vatou. Dům je částečně zateplený 14cm polystyrenem, má novou fasádu. 
Na pozemku ještě stále probíhají terénní úpravy. Potůček před domem je zatrubněný pro lepší příjezd i zaparkování, nad domem byla vytvořena suchá zídka pro vytvoření rovné terasy při vstupu z domu a je plánována úprava svažité zahrady a vytvoření kaskád pro lepší využití. Stejně tak i v domě se dokončují poslední práce, takže pokud se ozvete včas, můžete ještě ovlivnit povrchy. Dokončení rekonstrukce stále probíhá. Plánované náklady jsou odhadované na cenu 500.000Kč. 
Koupi tohoto domu vám doporučím pro kvalitu zpracování rekonstrukce, pro nádhernou přírodu okolo a pro velmi dobrou dostupnost do Brna i Svitav. 
Tak zavolejte pro domluvení osobní prohlídky, budu se těšit na setkání. 
David 
 
Pozn.: Uvedená kupní cena je VČETNĚ zprostředkovatelského poplatku. Energetický štítek je zatím ve fázi zpracování, proto uvádíme třídu G. Předpoklad je C-D, doporučujeme doplnění FVE.
| Cena: | (za nemovitost) 3 670 000,- Kč | 
|---|
| Počet podlaží objektu | 2 | 
|---|---|
| Celková podlahová plocha | 80 m² | 
| Druh objektu | cihlová | 
| Stav objektu | po rekonstrukci | 
| Energetická třída | G - Mimořádně nehospodárná | 
| Počet podlaží pod zemí | 1 | 
| Vlastní pozemek | 957 m² | 
| Plocha sklepu | 45 m² | 
| Umístění objektu | klidná část obce | 
| Telekomunikace | Telefon | 
| Plyn | Zaveden | 
| Rok rekonstrukce | 2 025 | 
| Stáří objektu | 1 925 | 
| Počet míst k parkování | 2 | 
| Zastavěná plocha | 56 m² | 
| Užitná plocha | 80 m² | 
| Poloha objektu | samostatný | 





