| Číslo zakázky: | 2025034 | ![]() Karta nemovitosti |
|---|---|---|
| Typ zakázky: | prodej |
REZERVACE
Poloha domu: Stylový apartmánový dům se nachází v jedinečné lokalitě Šumavy, přímo v malebném městečku Kašperské Hory, které se pyšní výškou 758 m n. m. Siluetu krajiny dotváří majestátní hrad Kašperk nejvýše položený hrad v Čechách, jenž zde stojí jako vzpomínka na éru Karla IV. Tato dominanta spolu s překrásnou přírodou vytváří pohádkové kouzlo staré Šumavy. Kašperské Hory okouzlí svým historickým náměstím s romantickými domy, kašnou a gotickým kostelem sv. Markéty. Na okraji města se nachází kostel sv. Mikuláše, obestřený legendami, kde jsou pořádány koncerty s výjimečnou atmosférou. Díky kompletní občanské vybavenosti (škola, školka, lékař, knihovna, muzea, restaurace) a skiareálu s večerním osvětlením i letními možnostmi pěší turistiky a cyklistiky je toto místo ideální pro celoroční bydlení i rekreaci.
Popis apartmánového domu:
Bytový dům, původně měšťanský dům zmiňovaný již kolem roku 1830, se nachází v klidné části Zlaté stezky. Jeho poloha kombinuje blízkost přírody a historického centra pouhé 3 minuty pěší chůze na náměstí. Dům byl citlivě renovován, aby zachoval svůj historický ráz a zároveň splňoval moderní energetické standardy (třída C úsporná). Jedním z unikátních prvků je pavlač, která umocňuje jeho historický charakter.
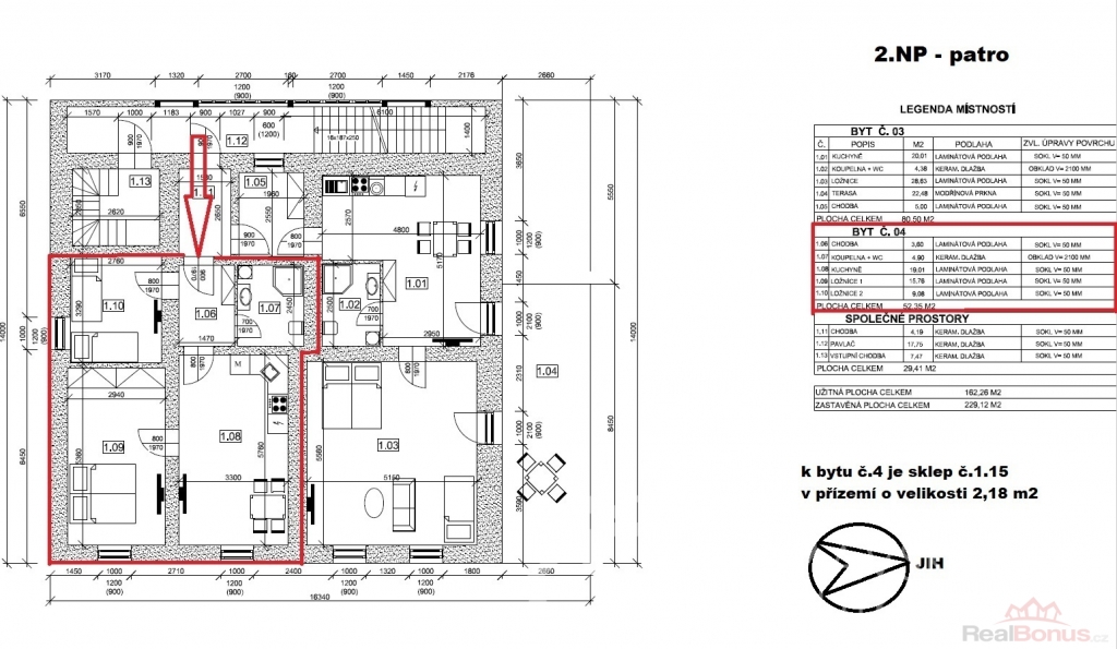
Popis nabízeného apartmánu č.4 : Apartmán o výměře 52,35 m nabízí: Vstupní chodbu, Koupelnu se sprchovým koutem, Ložnici, Obývací místnost s kuchyňským koutem, Druhou ložnici. Byt je vybaven bezpečnostními vstupními dveřmi, dřevěnými okny s izolačním trojsklem, masivními interiérovými dveřmi, sklepem v přízemí domu (zahrnutý v ceně). Technické vybavení: byt je napojen na centrální teplovod z městské výtopny na biomasu, s podlahovým vytápěním a samostatným měřením spotřeby tepla. Nabízí moderní komfort v souladu s ekologickými trendy. Byt nebyl dosud obýván, takže se prodává jako nový. Měsíční příspěvek do fondu oprav činí 1 880 Kč + elektřina dle spotřeby.
| Cena: |
(za nemovitost) 4 999 000,- Kč
(REZERVACE)
|
|---|
| Dispozice bytu | 3+kk |
|---|---|
| Číslo podlaží v domě | 1 |
| Druh objektu | cihlová |
| Stav objektu | po rekonstrukci |
| Energetická třída | C - Úsporná |
| Vlastnictví | osobní |
| Plocha sklepu | 2 m² |
| Umístění objektu | klidná část obce |
| Odpad | Městská kanalizace |
| Rok kolaudace | 2 022 |
| Počet míst k parkování | 1 |
| Užitná plocha | 52 m² |
| Komunikace | asfaltová |




