Prodej bytu 3+1, 0 m2, OV, Jesenice (okres Praha-západ), ul. Budějovická - exkluzivně

Prodej bytu 3+1, 0 m2, OV, Jesenice (okres Praha-západ), ul. Budějovická - exkluzivně

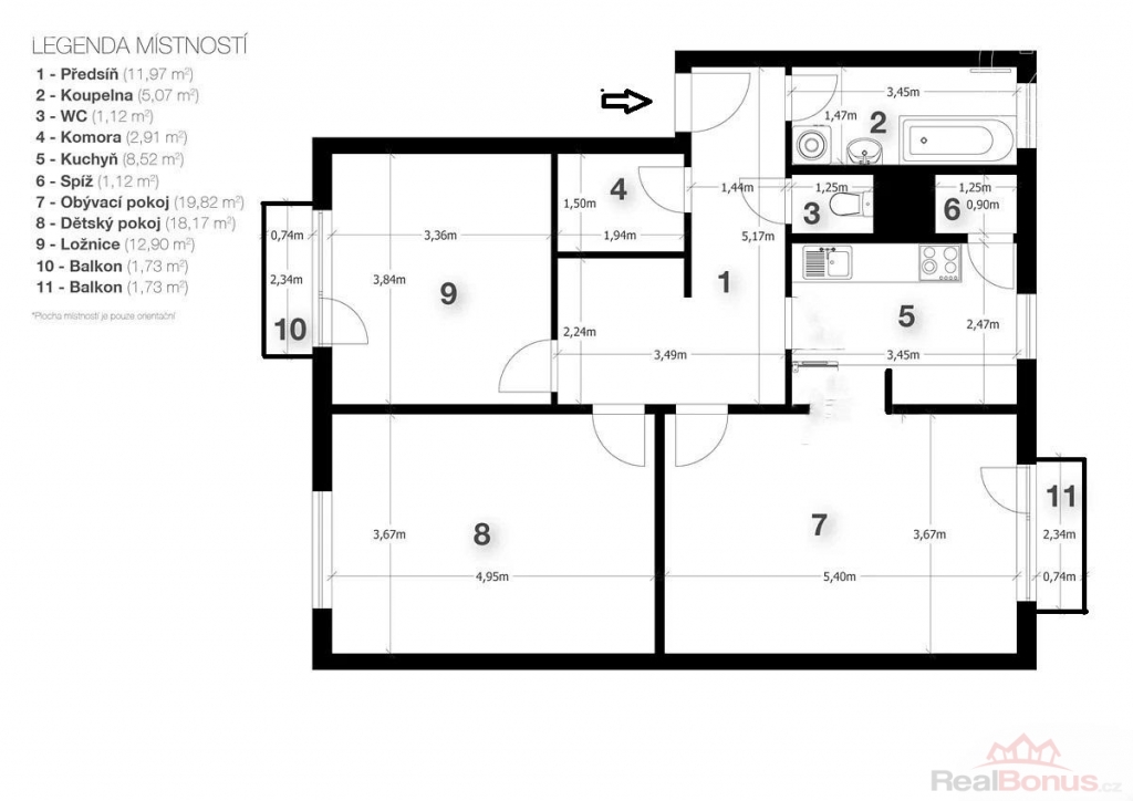
Nemovitost nabízí:

ABC BYDLENÍ, Jiří Javorský
Terronská 658/41
Praha 6 Bubeneč
160 00www.abcbydleni.cz
Javorský Jiří
Javorský Jiří
Mobil: +420 775 285 870
javorsky@abcbydleni.cz

Kontaktovat makléře

Odeslat
Číslo zakázky: 72  
Karta
nemovitosti
Typ zakázky: prodej
Prodej bytu 3+1, 82 m2, Jesenice u Prahy

Nabízíme k prodeji byt o dispozici 3+1/2x balkon, + 2x sklep v Jesenici u Prahy. Bytový dům je situován v klidné zástavbě rodinných domů s vlastnictvím pozemků kolem domu včetně komunikace a hřiště. Velkou výhodou je zajištěné parkování u domu a menší počet sousedních jednotek.
Byt se nachází ve 2 NP ze 3 a je v udržovaném stavu se skvělou vnitřní dispozicí. Okna jsou směrována na JZ a SV. Součástí bytu jsou také 2 balkony a 2 sklepy.
Dům má vlastní plynovou kotelnu,
Občanská vybavenost v Jesenici nabízí vše, co může moderní rodina potřebovat: školky, základní školy, poštu, lékařskou péči, obchody, restaurace, MHD a širokou nabídku sportovních a relaxačních zařízení.
Jesenice u Prahy je vyhledávanou lokalitou díky své dostupnosti do centra hlavního města.
Přijďte se podívat na svůj budoucí domov!

Cena: (za nemovitost)   7 750 000,- Kč

Informace o nemovitosti

Dispozice bytu3+1
Číslo podlaží v domě2
Počet podlaží objektu3
Druh objektucihlová
Stav objektudobrý
Energetická třídaD - Méně úsporná
Vlastnictvíosobní
Druh bytuv nájemním domě (činžovním)
Počet podlaží pod zemí1
Umístění objektuklidná část obce
VybavenoČástečně zařízeno
TopeníÚstřední - dálkové
Druh stavbybudova/y, hala/y
Poloha objektuřadový
D - Méně úsporná

Energetická náročnost:


RealBonus.cz

Používáme cookies!

Tyto stránky používají a ukládají soubory cookies. Některé jsou nezbytné pro jejich správné fungování (tzv. technické cookies). Dále tyto stránky využívají marketingové a analytické cookies pro zkvalitnění našich služeb a přizpůsobení zobrazovaného obsahu. Pro jejich využití je nutný Váš souhlas. Více informací o cookies.