Prodej bytu 3+kk, 111 m2, OV, Všestary (okres Praha-východ), ul. Strančická

Prodej bytu 3+kk, 111 m2, OV, Všestary (okres Praha-východ), ul. Strančická

Nemovitost nabízí:

House ViP, s.r.o.
House ViP, s.r.o.
Veletržní 924/14
170 00 Praha - Holešovicehttps://www.housevip.cz/
Bc. Artur Kurlikovskyy
Bc. Artur Kurlikovskyy
Mobil: +420 774 311 817
artur.kurlikovskyy@housevip.cz

Kontaktovat makléře

Odeslat
Číslo zakázky: 00988  
Karta
nemovitosti
Typ zakázky: prodej
Prodej bytu 3+kk 111 m2, Všestary

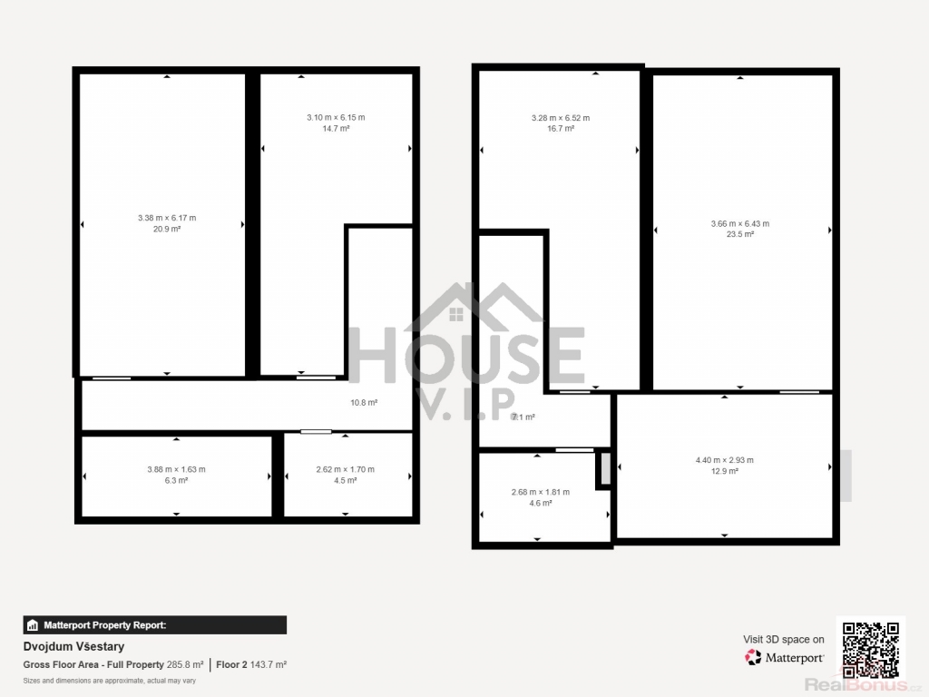
K prodeji nabízíme dvoupodlažní bytovou jednotku 3+kk s užitnou plochou 111 m2, která se nachází v novostavbě dvojdomu v centru obce Všestary u Říčan. Byt disponuje vlastní zahradou (cca 100 m2) s terasou, zahradním domkem a parkovacím stáním pro 2 vozy s přípravou pro rychlonabíjení elektromobilu.

Jednotka má samostatný vchod a je kolaudována ? připravena k okamžitému nastěhování.

Dispozice a vybavení:
- vzdušný obývací pokoj s kuchyňským koutem a vstupem na terasu.
- galerie v patře propojující obě podlaží.
- ložnice a multifunkční pokoj (pracovna/dětský pokoj).
- koupelna s moderní sanitou a walk-in sprchou.
- samostatné WC s bidetovou sprškou.
- technická místnost, vstupní hala s dřevěným schodištěm.
- zahrada s retenční nádrží.

Technologie a standard:
- energeticky úsporný dům ? PENB B.
- podlahové vytápění přes tepelné čerpadlo.
- trojskla, hliníková krytina střechy, keramické zdivo.
- příprava na fotovoltaiku, klimatizaci, možnost instalace krbové vložky.
- optický kabel a nadstandardní rozvody elektřiny a LAN.

Lokalita:
Byt se nachází v klidném prostředí v centru obce, s plnou občanskou vybaveností v pěší vzdálenosti. Vlakem jste v Praze během pár minut, cyklostezka vede přímo kolem domu.

? Na prodej je také sousední pravá bytová jednotka se stejnými parametry ? při koupi obou částí dvojdomu je možná dodatečná sleva.

Cena: (za nemovitost)   10 700 000,- Kč
(včetně provize, včetně právního servisu)

Informace o nemovitosti

Dispozice bytu3+kk
Číslo podlaží v domě1
Počet podlaží objektu2
Celková podlahová plocha111 m²
Druh objektucihlová
Stav objektunovostavba
Energetická třídaB - Velmi úsporná
Vlastnictvíosobní
Vybavenízahrada
Rok kolaudace2 025
OstatníParkoviště
Užitná plocha111 m²
Plocha zahrady100 m²
B - Velmi úsporná

Energetická náročnost:

75.00 kWh / m² rok
RealBonus.cz

Používáme cookies!

Tyto stránky používají a ukládají soubory cookies. Některé jsou nezbytné pro jejich správné fungování (tzv. technické cookies). Dále tyto stránky využívají marketingové a analytické cookies pro zkvalitnění našich služeb a přizpůsobení zobrazovaného obsahu. Pro jejich využití je nutný Váš souhlas. Více informací o cookies.