| Číslo zakázky: | 231416 | ![]() Karta nemovitosti |
|---|---|---|
| Typ zakázky: | prodej |
Nabízíme k prodeji stavební pozemek o výměře 722 m² v klidné lokalitě Teplice - Na Haldách. Pozemek je určen k výstavbě rodinného domu a díky své poloze poskytuje nejen dostatek prostoru, ale také příjemné soukromí. Z pozemku se navíc otevírá krásný výhled na dominantu města - Doubravku, což dodává bydlení jedinečnou atmosféru.
Lokalita Na Haldách je vyhledávaná díky spojení klidného prostředí a zároveň dobré dostupnosti. Do centra Teplic se dostanete během několika minut, stejně tak na dálnici D8 směrem na Prahu či Ústí nad Labem. V dosahu je kompletní občanská vybavenost - školy, školky, obchody i služby.
Prostředí je ideální pro rodinné bydlení s možností relaxace v blízké přírodě a zároveň pohodlného městského života.
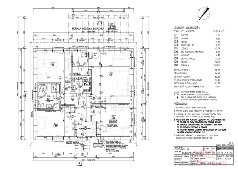
Velkou výhodou této nabídky je, že k pozemku již probíhá příprava stavebního povolení na rodinný dům typu bungalov 4+kk se zastavěnou plochou 103 m². Součástí prodeje je kompletní projektová dokumentace a také zajištění stavebního povolení. Po jeho vydání můžete bez zbytečných průtahů ihned zahájit stavbu svého nového domova.
| Cena: |
(za nemovitost) 2 350 000,- Kč
(včetně provize a právních služeb)
|
|---|
| Energetická třída | G - Mimořádně nehospodárná |
|---|---|
| Vlastnictví | osobní |
| Vlastní pozemek | 722 m² |
| Umístění objektu | klidná část obce |
| Doprava | MHD |
| Elektřina | 230 V |
| Voda | dálkový vodovod |
| Odpad | Septik Plánovaná výstavba kanalizace |
| Plyn | Není |
| Občanská vybavenost | Škola Školka Zdravotnická zařízení Pošta Supermarket Kompletní síť obchodů a služeb Restaurace Místní úřad Kulturní zařízení Koupaliště |
| Plocha parcely | 722 m² |
| Komunikace | neupravená |
| Druh pozemku | pro bydlení |
| Inženýrské sítě | Vodovod Elektřina |
| Druh stavby | rodinný dům, rekreační chalupa, rekreační pozemek |
| Přístup k pozemku | věcné břemeno |
