| Číslo zakázky: | 00101 | ![]() Karta nemovitosti |
|---|---|---|
| Typ zakázky: | prodej |
Hledáte ideální místo pro váš nový domov, které spojuje klidné bydlení s rychlou dostupností do města? Představujeme vám jedinečný rodinný dům v srdci Červeného Hrádku, který je připraven na Vaši osobní rekonstrukci a nabízí obrovský potenciál.
Hlavní informace k nemovitosti:
- Lokalita: Pod Školou 119, Plzeň, malebná obec Červený Hrádek.
- Využití: Možnost rekonstrukce, ideální pro dva samostatné bytové jednotky, vícegenerační bydlení nebo rodinný dům.
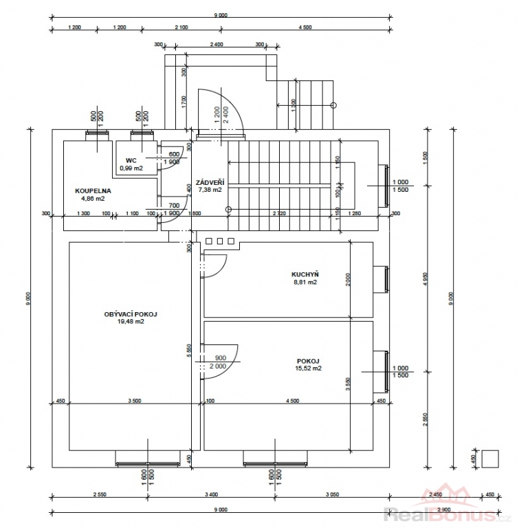
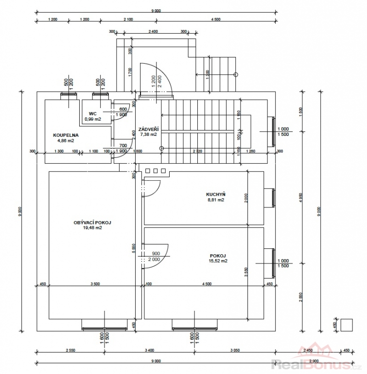
- Užitná plocha: 166 m2.
- Pozemek: Prostorný slunný pozemek o rozloze 821 m2.
- Inženýrské sítě: Voda studna + obecní vodovod, obecní kanalizace, elektřina 230/380 V.
- V roce 2019 proběhla oprava střechy.
- Dopravní dostupnost: Rychlý přístup do Plzně, skvělé spojení s městskými službami.
- Nemovitost v minulosti proběhla lehkou úpravou ale počítáme, že každý započne kompletní rekonstrukci podle svých představ. Nicméně dům je obýván.
Proč zrovna tato nemovitost?
Tato nemovitost představuje skvělou investiční příležitost s širokým potenciálem pro přizpůsobení vašim potřebám. Červený Hrádek nabízí unikátní kombinaci klidného bydlení a rychlé dostupnosti do městského života. Užívejte si krásnou přírodu, cyklostezky a turistické trasy na dosah ruky, zatímco máte vše potřebné pro každodenní život nedaleko. Připojte se k těm, kteří již objevili kouzlo této vyhledávané lokality!
Veškeré informace naleznete na webových stránkách Yetodoma v sekci katalog nemovitostí.
| Cena: |
(za nemovitost) 6 490 000,- Kč
(včetně DPH, včetně poplatků, včetně provize, včetně právního servisu)
|
|---|
| Počet podlaží objektu | 2 |
|---|---|
| Druh objektu | smíšená |
| Stav objektu | před rekonstrukcí |
| Energetická třída | G - Mimořádně nehospodárná |
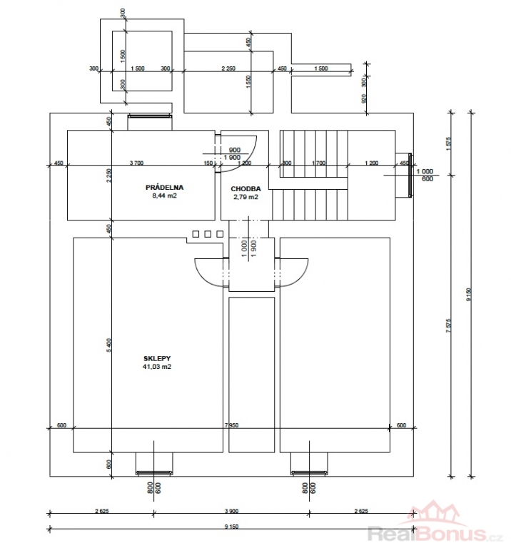
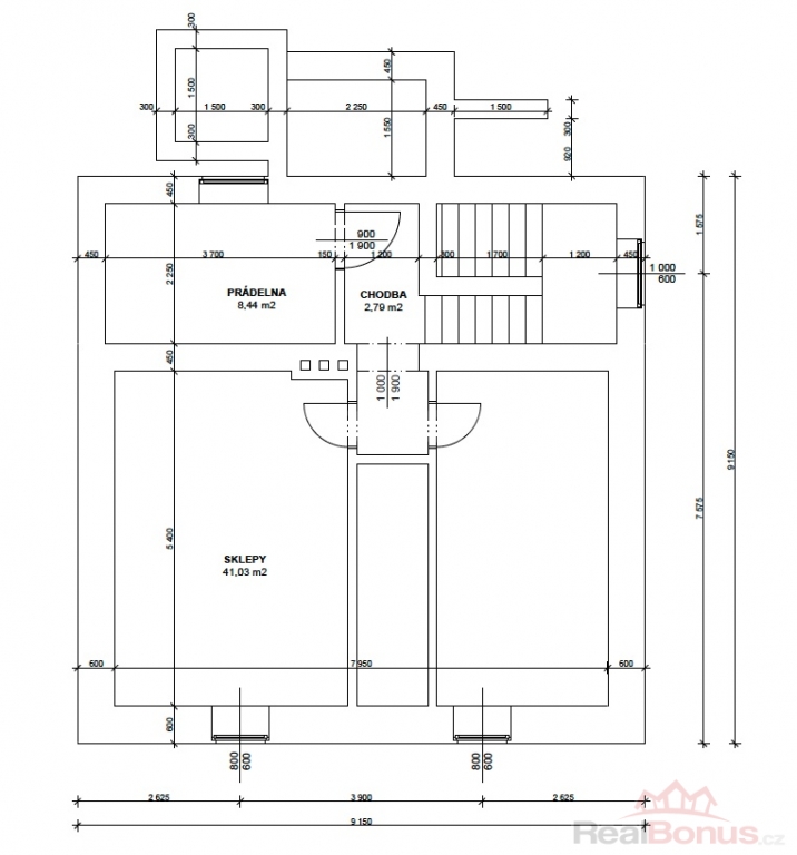
| Počet podlaží pod zemí | 1 |
| Vybavení | balkon sklep |
| Umístění objektu | centrum |
| Doprava | silnice MHD autobus |
| Voda | dálkový vodovod |
| Odpad | Městská kanalizace |
| Stáří objektu | 55 |
| Parkování | garáž |
| Zastavěná plocha | 166 m² |
| Plocha parcely | 821 m² |
| Ostatní | Garáž Parkoviště |
| Užitná plocha | 166 m² |
| Komunikace | asfaltová |
| Inženýrské sítě | Vodovod Kanalizace |
| Charakter okolní zástavby | obytná |
| Poloha objektu | samostatný |




