| Číslo zakázky: | N0025346 | ![]() Karta nemovitosti |
|---|---|---|
| Typ zakázky: | prodej |
V klidné zóně u lesa, v srdci pražských Lipenců, nabízíme mimořádně prostornou bytovou jednotku o velikosti 213 m2 s atmosférou rodinného domu. Dům tvoří pouze dvě samostatné bytové jednotky, obě nyní nabízené k prodeji.
Jedná se o skvělý poměr ceny a kvality - zrekonstruovaný byt za 65.000 Kč/m2. Cena zahrnuje také garáž a vlastní zahradu o rozloze 209 m2 ? samostatně by jejich hodnota přesáhla 2 miliony Kč. Díky tomu byt představuje výjimečnou kombinaci komfortu, soukromí a dlouhodobé investiční hodnoty.
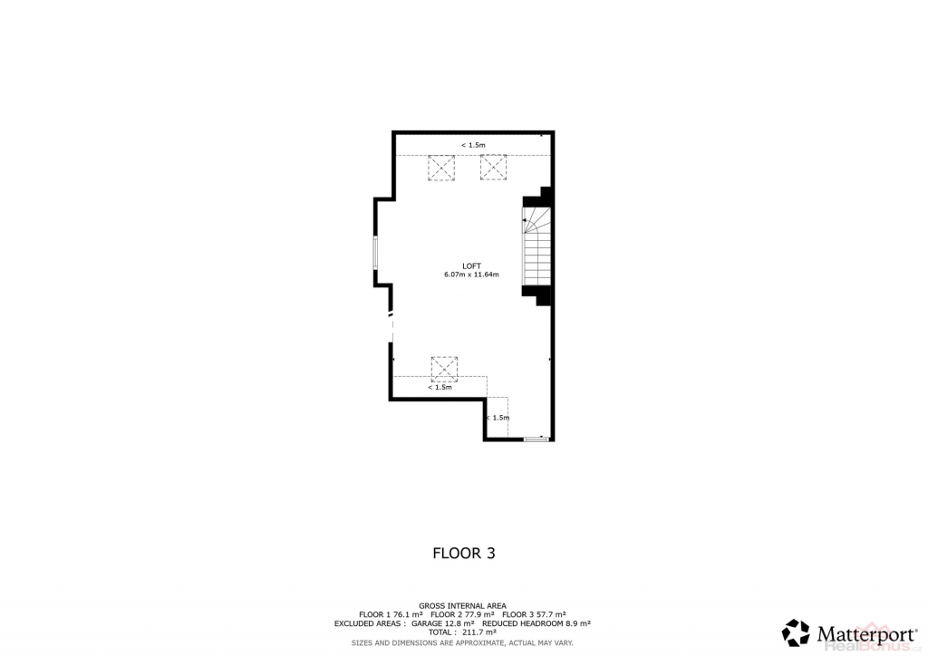
Dispozice 6+1 poskytuje dostatek prostoru pro vícečlennou rodinu i pro práci z domova. V interiéru převládá světlo, dřevo a kvalitní materiály, které podtrhují klid a promyšlenost celého prostoru. Byt je umístěný ve třech podlažích, přízemí se skládá z obývacího pokoje 30m2, jídelny 21m2, kuchyně 13m2, předsíně a toalety, v 1. patře je ložnice 22m2, 2 pokoje 15m2 a 14m2, koupelna 8m2 a chodba 10m2, 2. patro je tvořeno otevřeným prostorem 62m2, který může sloužit jako pracovna, dětský pokoj nebo ateliér. Obývací pokoj je vybavený krbem, kuchyně kuchyňskou linkou se spotřebiči, koupelna s vanou. Vytápění a ohřev vody zajišťuje elektrický kotel. Renovace exteriéru a interiéru modernizovala standard bydlení.
Nemovitost se nachází ve zcela tiché, odpočinkové části Lipenců, přímo u lesa ? ideální pro ty, kdo hledají spojení komfortu města s přírodou na dosah. Byt je součástí domu o dvou identických bytových jednotkách, kde každá z nich má samostatný vchod, zahradu, garáž a samostatné LV.
Výhodou je i výborná dostupnost, pouhých 6 minut autem od sjezdu z dálnice D4. Jedná se o místo, kde slyšíte vítr v korunách stromů, ne městský ruch. Místo, kde každý metr dává smysl pro nový začátek. Tento byt není jen místo k bydlení, ale prostor pro rovnováhu, klid a dlouhodobou hodnotu.
Nemovitost je možné financovat hypotečním úvěrem, který můžeme zprostředkovat. V případě zájmu nás neváhejte kontaktovat pro bližší informace či prohlídku.
| Cena: | (za nemovitost) 13 877 000,- Kč |
|---|
| Dispozice bytu | 6+kk |
|---|---|
| Číslo podlaží v domě | 1 |
| Počet podlaží objektu | 3 |
| Celková podlahová plocha | 213 m² |
| Druh objektu | cihlová |
| Stav objektu | po rekonstrukci |
| Energetická třída | F - Velmi nehospodárná |
| Vlastnictví | osobní |
| Vybavení | zahrada |
| Voda | dálkový vodovod |
| Rok rekonstrukce | 2 025 |
| Parkování | garáž |
| Ostatní | Garáž |
| Užitná plocha | 213 m² |
| Plocha zahrady | 209 m² |
| Inženýrské sítě | Vodovod |




