| Číslo zakázky: | 231227 | ![]() Karta nemovitosti |
|---|---|---|
| Typ zakázky: | prodej |
Na prodej nabízíme řadový rodinný dům se dvěmi bytovými jednotkami v oblíbeném městysi Měřín, přímo u Velkého Meziříčí a s perfektním napojením na dálnici D1, za pár minut jste na cestě do Brna i do Prahy.
Dům vlastní družstvo, je tedy možné převést družstevní podíl po zaplacení kupní ceny 4 930 000 Kč a dále splácet anuitu ve formě nájmu ve výši 26 546 Kč/měsíčně. V případě převodu do osobního vlastnictví je možné doplatit anuitu najednou. Anuita je cca 3 570 000 Kč. Přesně bude vyčíslena ke konkrétnímu datu, stále se snižuje splácením.
Při převodu družstevního podílu není třeba dokládat příjem.
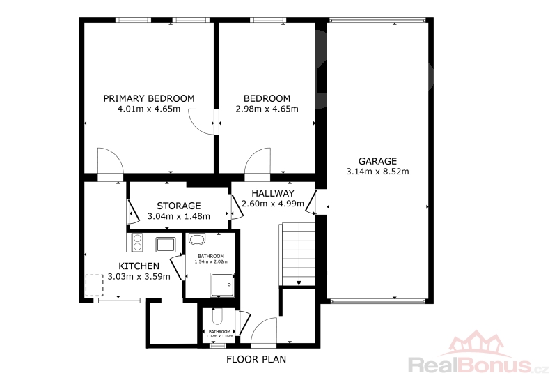
Dům se prodává včetně vybavení, které vidíte na fotografiích, je dispozičně řešen jako dvougenerační, nabízí dvě samostatné bytové jednotky (2+1 v přízemí a 4+1 v patře). Horní patro prošlo kompletní rekonstrukcí před dvěma lety-moderní kuchyně, koupelna v mramorovém stylu, světlé podlahy a elegantní detaily, které zaujmou na první pohled.
Nemovitost má dvě nadzemní podlaží, garáž a malý dvorek. Celková užitná plocha činí 143 m2, pozemek má 150 m2. Díky rozložení místností je dům vhodný nejen pro rodinné bydlení, ale i jako vícegenerační či investiční příležitost.
Ráda na vyžádání zašlu fotky půdy, protože ta má velký potenciál pro vybudování dalších prostor!
Součástí inzerátu je i virtuální prohlídka, kterou naleznete v galerii a vrchní patro si můžete projít z pohodlí domova.
Výhody domu:
- skvělá poloha v centru Měřína, pěší dostupnost obchodů a služeb
- dálnice D1 jen pár minut autem
- zrekonstruované horní patro (moderní standard)
- dvě bytové jednotky - možnost dvougeneračního bydlení
- garáž a praktický dvorek
Pro více informací mě neváhejte kontaktovat.
PENB je ve zpracování, proto je nyní uveden a třída G.
| Cena: |
(za nemovitost) 4 930 000,- Kč
(převod družstevního podílu, dál se splácí formou nájmu)
|
|---|
| Počet podlaží objektu | 2 |
|---|---|
| Druh objektu | cihlová |
| Stav objektu | velmi dobrý |
| Energetická třída | G - Mimořádně nehospodárná |
| Vlastnictví | družstevní |
| Vlastní pozemek | 150 m² |
| Vybavení | zahrada podkroví |
| Telekomunikace | Telefon Internet Vedení PC sítě |
| Ostatní rozvody | Kabelová televize Kabelové rozvody |
| Popis vybavení | vybavení viz fotky |
| Topení | Lokální - plynové |
| Doprava | dálnice silnice MHD autobus |
| Elektřina | 230 V |
| Voda | dálkový vodovod |
| Odpad | Městská kanalizace |
| Plyn | Zaveden |
| Občanská vybavenost | Škola Školka Zdravotnická zařízení Pošta Supermarket Kompletní síť obchodů a služeb Restaurace Místní úřad Kulturní zařízení |
| Rok rekonstrukce | 2 023 |
| Parkování | garáž |
| Zastavěná plocha | 116 m² |
| Plocha parcely | 150 m² |
| Ostatní | Garáž |
| Užitná plocha | 143 m² |
| Počet bytů - celkem | 2 |
| Poloha objektu | řadový |
| Velikost bytů (3+1, 2+kk atd.) | 4+1, 2+1 |
| K dispozici od | 01.01.2026 |




