| Číslo zakázky: | 653256 | ![]() Karta nemovitosti |
|---|---|---|
| Typ zakázky: | pronájem |
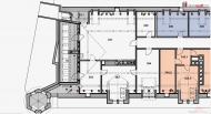
+popl. 9856, , Pronájem kancelářských prostor 141m, které se nachází v 6. patře domu U Nováků: jedná se o čtyři samostatné kanceláře, recepci, 3 menší skladové prostory, dámské a pánské toalety. Prostory lze po dohodě s majitelem upravit, vymalovat a podobně. Dům má 24h ostrahu. Veškeré občanské vybavení v okolí. Perfektní dostupnost, metro 1min od domu. Další volné kanceláře v domě Ev. číslo: 652642. Energetický štítek: C (2 kWh/m2/rok).
| Cena: |
(za měsíc) 39 107,- Kč
(+popl. 9856)
|
|---|
| Počet podlaží objektu | 7 |
|---|---|
| Druh objektu | cihlová |
| Stav objektu | dobrý |
| Energetická třída | C - Úsporná |
| Umístění objektu | centrum |
| Vybaveno | Nezařízeno |
| Užitná plocha | 141 m² |
| Druh prostor | Kanceláře |
