| Číslo zakázky: | 227507 |  Karta nemovitosti | 
|---|---|---|
| Typ zakázky: | prodej | 
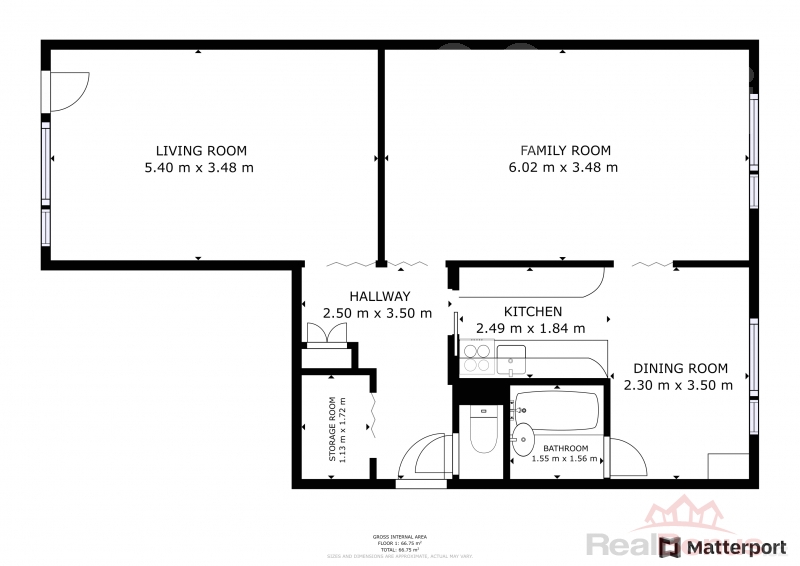
Nabízíme k prodeji světlý a dobře dispozičně řešený byt 2+1 o velikosti 62 m, který se nachází ve 7. podlaží panelového domu v obci Desné, který je v původním stavu, což nabízí možnost rekonstrukce dle vašich ideálních představ. Byt je osobním vlastnictví a nabízí příjemné bydlení v klidné lokalitě s veškerou občanskou vybaveností na dosah. Nachází se na ideálním místě jak pro milovníky zimních sportů, tak letních procházek do přírody. 
Hlavní výhody bytu:
 Skvělá lokalita  
Prostorný a světlý interiér - šikovně řešená dispozice 2+1
Balkón - ideální pro ranní kávu nebo relaxaci
6 minut autem - sjezdovka
jeden z pěti známých vodopádů 30 minutová procházka 
Dům po kompletní revitalizaci zajišťující nižší provozní náklady
Byt v původním stavu nabízí možnost vlastní rekonstrukce dle vašich představ
Byt je vhodný jak k vlastnímu bydlení, tak jako investice k pronájmu či rekreační bydlení. V případě zájmu o prohlídku mě neváhejte kontaktovat.
| Cena: | (za nemovitost)   2 600 000,- Kč (včetně provize a právních služeb) | 
|---|
| Dispozice bytu | 2+1 | 
|---|---|
| Číslo podlaží v domě | 7 | 
| Celková podlahová plocha | 67 m² | 
| Druh objektu | panelová | 
| Stav objektu | dobrý | 
| Energetická třída | G - Mimořádně nehospodárná | 
| Vlastnictví | osobní | 
| Vybavení | výtah lodžie sklep | 
| Telekomunikace | Internet | 
| Vybaveno | Částečně zařízeno | 
| Doprava | vlak silnice autobus | 
| Elektřina | 230 V | 
| Voda | dálkový vodovod | 
| Odpad | Městská kanalizace | 
| Občanská vybavenost | Škola Školka Zdravotnická zařízení Pošta Supermarket Kompletní síť obchodů a služeb Restaurace Místní úřad | 
| Parkování | u domu (veřejné) | 
| Užitná plocha | 62 m² | 
| K dispozici od | 10.02.2025 | 





