| Číslo zakázky: | RM25003 |  Karta nemovitosti | 
|---|---|---|
| Typ zakázky: | prodej | 
Investiční příležitost s potenciálem: Prostorný dům o ploše 620 m2 stojící na pozemku 702 m2 v Mlékojedech u Neratovic čeká na Vaši vizi!
Hledáte nemovitost s duší a neomezenými možnostmi? Nabízíme Vám rodinný dům v obci Mlékojedy u Neratovic, který v sobě skrývá historii a velký potenciál. Tento dům, který kdysi sloužil jako oblíbená hospoda s ubytováním, nyní čeká na nového majitele, který mu vdechne nový život.
Co tento dům nabízí?
Prostor pro Vaše sny:
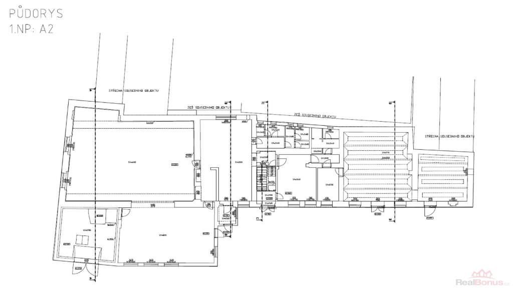
Dům je vedený jako rodinný dům a velkorysý prostor Vám dle územního plánu umožňuje vytvoření dvou bytových jednotek, ubytovny, restaurace, obchodu nebo drobné výroby.
Přízemí domu:
V přízemí se nachází dva kompletně zrekonstruované byty se samostatnými vchody (2+kk a garsonka), které nabízejí moderní a komfortní bydlení. Dále je zde velká místnost s kuchyňskou linkou a koupelna, které slouží pro byty v 1. patře.
Také se zde nachází prostor bývalé hospody s dvěma velkými sály, které lze všestranně využít.
A nakonec je zde garáž a technické místnosti s bojlery na ohřev vody a plynovým kotlem pro vytápění.
1.patro:
V 1. patře se nacházejí dva větší pokoje, které nyní slouží jako byt.
Dále se zde nacházejí 4 menší pokoje, které sloužili k ubytování.
V 1.patře jsou také 2 toalety.
Venkovní prostor:
Před domem je vydlážděný dvůr s možností úpravy na předzahrádku nebo na parkovací stání.
Lokalita s dobrou dostupností:
Mlékojedy jsou klidnou obcí s dobrou dostupností do Neratovic a okolních měst. Dvě minuty od domu najdete samoobsluhu, v obci je také mateřská škola. V blízkosti je také oblíbená pískovna Beach Park Mlékojedy, kde v létě probíhají sportovní a kulturní akce.
V sousedních Tišicích, cca 2 km od domu je velká samoobsluha, o kousek dále je obchod s ovocem a zeleninou, je zde autobusová zastávka směr Kostelec n/l nebo Mělník a také vlaková zastávka do Prahy nebo na druhou stranu do Mladé Boleslavi, Liberce. Kompletní občanská vybavenost je v Neratovicích, Staré Boleslavi nebo v Mělníce.
Investiční potenciál:
Tento dům je ideální pro investory, kteří hledají nemovitost s velkým potenciálem pro rekonstrukci a komerční využití.
Nenechte si ujít tuto jedinečnou příležitost!
Kontaktujte nás a domluvte si prohlídku. Rádi Vám představíme všechny možnosti, které tento dům nabízí.
| Cena: | (za nemovitost)   9 990 000,- Kč (Cena je uvedena včetně provize a právního servisu., včetně provize, včetně právního servisu) | 
|---|
| Počet podlaží objektu | 2 | 
|---|---|
| Druh objektu | cihlová | 
| Stav objektu | dobrý | 
| Energetická třída | G - Mimořádně nehospodárná | 
| Umístění objektu | centrum | 
| Topení | Lokální - elektrické Ústřední - plynové | 
| Doprava | silnice autobus | 
| Voda | dálkový vodovod | 
| Odpad | Městská kanalizace | 
| Plyn | Zaveden | 
| Zastavěná plocha | 620 m² | 
| Plocha parcely | 702 m² | 
| Užitná plocha | 620 m² | 
| Komunikace | asfaltová | 
| Inženýrské sítě | Vodovod Kanalizace Plyn | 
| Charakter okolní zástavby | venkovská | 
| Poloha objektu | samostatný | 





