 
		
					
		 
			
			
		| Číslo zakázky: | 06133-9 |  Karta nemovitosti | 
|---|---|---|
| Typ zakázky: | pronájem | 
V Rezidenci Gajdošova v Brně nabízíme k pronájmu obchodní a kancelářské prostory o velikosti 145 m2. Tyto moderní prostory se nacházejí v přízemí polyfunkčního domu přímo u frekventované ulice Gajdošova, kudy denně projede přibližně 50 000 aut. Výloha zde má větší reklamní hodnotu než billboard u dálnice, což znamená, že váš byznys bude nepřehlédnutelný.
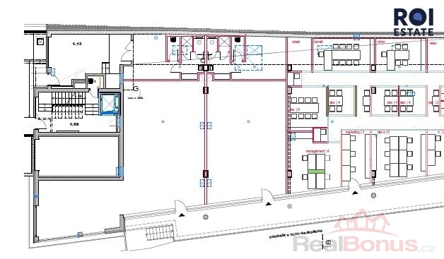
Prostor je navržen v industriálním stylu s betonovými podlahami a přiznanými stropními rozvody. Vstup je situován přímo z ulice Gajdošova, což zajišťuje maximální viditelnost a snadný přístup pro zákazníky. V zadní části je k dispozici sociální zařízení. Elektroinstalace a zásuvky jsou připraveny, takže prostor lze ihned přizpůsobit konkrétním potřebám. Díky své variabilitě se hodí pro obchod, showroom, výdejní místo, lékárnu, ateliér nebo moderní kanceláře, lékařské i zubní ordinace, jógová i jiná studia. 
V tuto chvíli jsou zde 2 toalety a umyvadlo, odpady na napojení případných sprch jsou nachystány.
Lokalita nabízí vynikající dopravní dostupnost a přirozený pohyb zákazníků. Objekt se nachází na křižovatce ulic Gajdošova a Táborská v rozvíjející se části Brna. V blízkém okolí jsou zastávky městské hromadné dopravy, například tramvajové linky 8 a 9 nebo autobusové spoje 44, 55, 58, 74, 75, 78 a 84. To znamená snadnou dostupnost jak pro zákazníky, tak pro zaměstnance.
Díky výhodnému umístění lze využít nejen prostor samotný, ale také venkovní plochu k reklamním účelům, například formou světelné reklamy. Velká výloha umožňuje efektivní propagaci a osloví tisíce lidí denně.
Prostor je k dispozici ihned. Pokud hledáte místo, kde bude váš byznys opravdu vidět, domluvte si prohlídku a přijďte se přesvědčit na vlastní oči.
V prezentaci jsou použity AI vizualizace, prostory odpovídají  popisu a fotografiím bez vybavení (svítidla ano).
| Cena: | (za m2 / měsíc)   443,- Kč (+ 10 996 Kč zálohy na energie a služby + garážové parkovací stání 1 000 Kč + vratná kauce + provize RK) | 
|---|
| Druh objektu | cihlová | 
|---|---|
| Stav objektu | novostavba | 
| Energetická třída | B - Velmi úsporná | 
| Umístění objektu | centrum | 
| Doprava | silnice MHD | 
| Voda | dálkový vodovod | 
| Odpad | Městská kanalizace | 
| Stáří objektu | 3 | 
| Počet míst k parkování | 1 | 
| Účel budovy | Jiný | 
| Ostatní | Parkoviště | 
| Užitná plocha | 145 m² | 
| Komunikace | asfaltová | 
| Inženýrské sítě | Vodovod Kanalizace | 
| Charakter okolní zástavby | obchodní a obytná | 
| Poloha objektu | samostatný | 
| K dispozici od | 01.10.2025 | 





