| Číslo zakázky: | 231631 | ![]() Karta nemovitosti |
|---|---|---|
| Typ zakázky: | prodej |
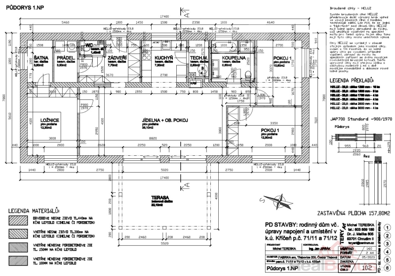
Hledáte klidné místo pro život, které je zároveň skvěle dostupné? Nabízíme Vám rodinný dům (145 m2, dispozice 4+1) s prostornou zahradou (1 042 m2) v obci Křičeň, vzdálené jen pár minut od Pardubic, Lázní Bohdaneč či sjezdu na dálnici D11 směr Praha/ Hradec Králové.
Proč si tento dům zamilujete?
- moderní nízkoenergetický bungalov s výbornou izolací
- prostorný obývací pokoj s krbem a vstupem do zahrady
- kuchyňský kout se spíží
- ložnice s vlastní šatnou, dva dětské pokoje
- komfortní koupelna s vanou i sprchovým koutem
- parkovací stání přímo u domu
Dům je těsně před dokončením (koupelna, kuchyně, podlahy, dveře), takže interiér můžete přizpůsobit přesně podle vašich snů! Pokud potřebujete, s dokončením vám rádi pomůžeme.
Jedná se o klidnou lokalitu s obchodem, fotbalovým hřištěm a hospůdkou, ideální pro život rodiny.
Pro více informací a sjednání prohlídky mne neváhejte kontaktovat. Výhodné financování Vám rádi zdarma zajistíme.
| Cena: |
(za nemovitost) 7 599 000,- Kč
(včetně provize a právních služeb)
|
|---|
| Druh objektu | cihlová |
|---|---|
| Stav objektu | novostavba |
| Energetická třída | B - Velmi úsporná |
| Vlastnictví | osobní |
| Vlastní pozemek | 1 187 m² |
| Vybavení | zahrada |
| Umístění objektu | klidná část obce |
| Vybaveno | Nezařízeno |
| Popis vybavení | Dům je v kolaudačním minimu. |
| Topení | Ústřední - elektrické Klimatizace |
| Doprava | silnice autobus |
| Elektřina | 230 V 380 V |
| Voda | dálkový vodovod |
| Odpad | Městská kanalizace |
| Plyn | Není |
| Občanská vybavenost | Místní úřad |
| Stáří objektu | 2 024 |
| Rok kolaudace | 2 024 |
| Zastavěná plocha | 145 m² |
| Plocha parcely | 1 187 m² |
| Ostatní | Plot Bezbariérový přístup |
| Užitná plocha | 125 m² |
| Komunikace | dlážděná |
| Poloha objektu | samostatný |
| Další nebytový objekt | přízemní |
| K dispozici od | 01.10.2025 |




