| Číslo zakázky: | ZR1145 | ![]() Karta nemovitosti |
|---|---|---|
| Typ zakázky: | prodej |
Exkluzivně nabízíme prodej patrového rodinného domu dispozice 4+kk v žádané lokalitě Čejetice v obci Mladá Boleslav, ulice Nová. Tato příjemná městská část nabízí výjimečnou kombinaci komfortního bydlení v obklopení přírodou a vzdálenosti pouhých pár minut chůze od historického centra města.
Dům a garáž pro 2 auta jsou umístěny na horní hraně pozemku, kde se svažitý terén vyrovnává. Za domem situovaná klidná a slunečná zahrada díky tomu nabízí jak výhledy do okolí, tak dostatek prostoru pro posezení v soukromí, grilování či bazén. Zahrada má 843 m2.
Okolní zástavba je obytná, místo disponuje občanskou vybaveností. Mateřská škola Štěpánka je vzdálena sotva 3 minuty chůze, jazyková škola (2. Základní škola) pak 15 minut chůze od domu. V blízkosti domu se nachází také autobusová zastávka, obchod a tenisové a fotbalové hřiště.
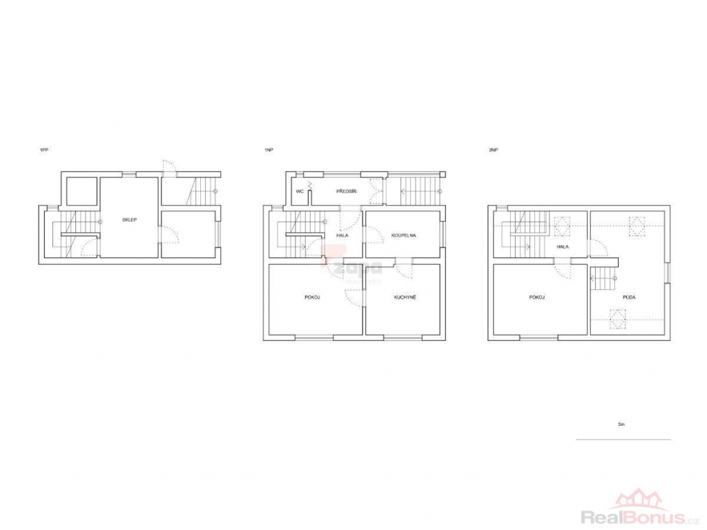
Pokoje domu jsou v současném stavu orientovány na jihovýchod. Dům je podsklepený. Užitná plocha nemovitosti je 154 m2, dále k ní přiléhají kůlny o výměře 20 m2. Plocha samostatně stojící garáže je 45 m2. Do domu jsou zavedeny veškeré ing. sítě - elektřina, plyn, vodovod a kanalizace. Vytápění zajišťuje plynový kotel. Dům cca z roku 1943 je určen k celkové rekonstrukci.
Celková plocha pozemků je 928 m2. Spodní část zahrady nabízí buď přidanou vrstvu soukromí, nebo by po dohodě a za podmínek stanovených městem, bylo možné pozemek použít jako samostatnou stavební parcelu (bydlení, maloobchod, nerušící domácí výroba a služby).
Uvedená cena je včetně provize a advokátní úschovy. Koupi lze financovat prostřednictvím hypotečního úvěru, který Vám pomůžeme vyřídit.
| Cena: |
(za nemovitost) 6 900 000,- Kč
(včetně provize)
|
|---|
| Číslo podlaží v domě | 1 |
|---|---|
| Počet podlaží objektu | 2 |
| Celková podlahová plocha | 154 m² |
| Druh objektu | cihlová |
| Stav objektu | před rekonstrukcí |
| Energetická třída | G - Mimořádně nehospodárná |
| Počet podlaží pod zemí | 1 |
| Vlastní pozemek | 928 m² |
| Vybavení | sklep |
| Umístění objektu | klidná část obce |
| Vybaveno | Částečně zařízeno |
| Topení | Ústřední - plynové |
| Elektřina | 230 V |
| Plyn | Zaveden |
| Zastavěná plocha | 85 m² |
| Plocha parcely | 928 m² |
| Jiné plochy | 20 m² |
| Užitná plocha | 154 m² |
| Plocha zahrady | 843 m² |
| Inženýrské sítě | Vodovod Kanalizace Plyn Elektřina |
| Druh stavby | rodinný dům, rekreační chalupa, rekreační pozemek |
| Poloha objektu | samostatný |




