| Číslo zakázky: | 32-430 |  Karta nemovitosti | 
|---|---|---|
| Typ zakázky: | pronájem | 
K dlouhodobému pronájmu nabízíme prostorný byt o dispozici 3+kk/68,5 m2 v 2.NP malého rekonstruovaného cihlového domu se SAMOSTATNOU ZAHRÁDKOU v klidné a zelené části Berouna - ul. Zahořanská - VOLNÝ IHNED
 
Bytový dům je po rekonstrukci - zateplení a nová fasáda, nová střecha. Samotný byt prošel v minulosti také rekonstrukcí - koupelna, el. rozvody, okna jsou dřevěná s dvojskly, jako podlahové krytiny jsou zde plovoucí podlahy a parkety, příp. dlažba a vytápění zajišťuje vlastní plynový kotel. Současné vybavení bytu dle fotek.  Dům má celkem jen 4 bytové jednotky, výhodou bytu je vlastní vstup z venkovní prostoru.
 
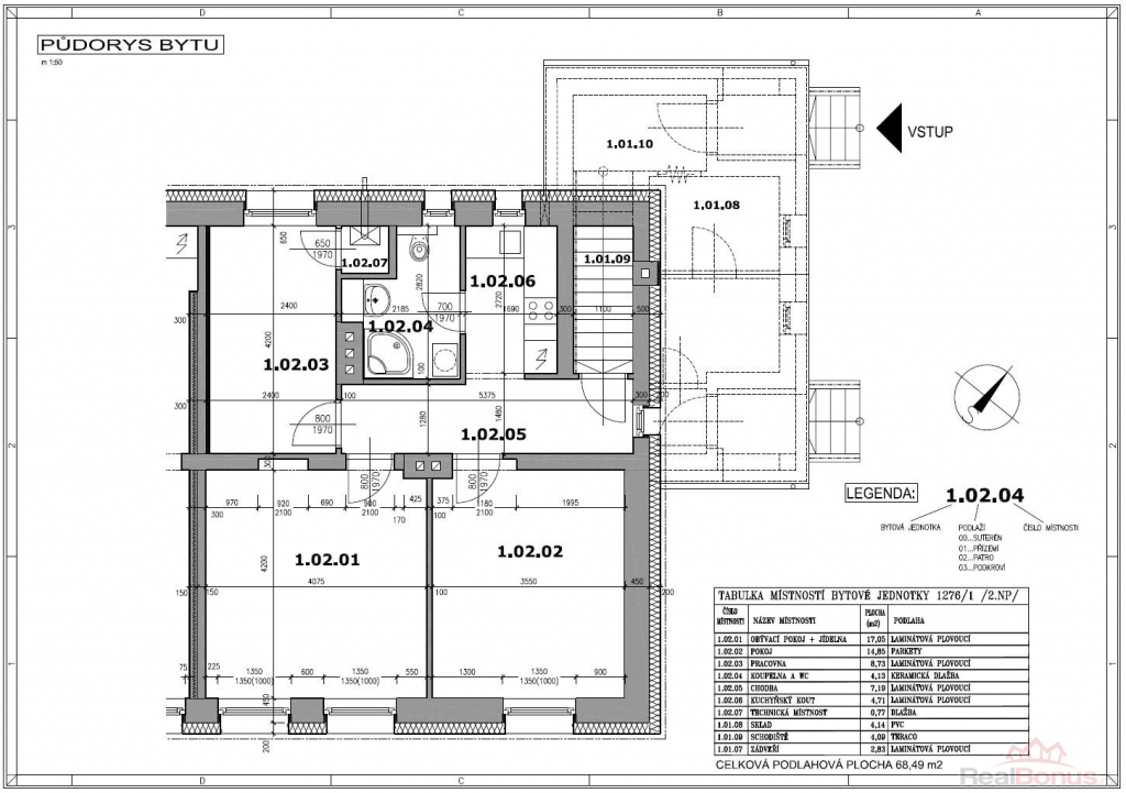
Dispozice bytu: 3+kk
- velká vstupní chodba s komorou
- schody do patra
- tři samostatné pokoje, jeden je vybaven krbovými kamny
- oddělená kuchyně s kuchyňskou linkou - je zde indukční deska, po dohodě bude dodána nová myčka a el. trouba, přip. i starší lednice
- koupelna se sprchovým koutem a WC (přípojka na pračku, pračka zde není)
 
VELKOU VÝHODOU je přímo u domu vlastní zahrádka o výměře 298 m2 - JEN PRO TENTO BYT
- včetně zakryté pergoly 
- 2x kůlny jako skladovací prostor nebo i pro chov domácích zvířat
- 2x plechové garáže o vel. 15 m2 a 16 m2 - jako skladovací prostor i pro auto
- na společném dvoře lze zaparkovat až 2 auta
 
Nájemné: 18.500 Kč
Zálohy na energie a služby: cca 7.000,- dle počtu osob (z toho el. 3.500,-, plyn: 2.000 Kč, voda: 1.500,-)
Vratná kauce: 32.000 Kč
Provize RK 1x nájem plus DPH
 
Tato nemovitost je ideální pro rodinu s menším zvířátkem. Prosíme jen pracující zájemce bez exekucí. Uvítáme šikovného kutila, který by si v bytě byl schopen sám opravit menší věci a zahradníka/zahradnici, kteří využijí zahrádku a další úložné možnosti. Parkování je možné na společném dvoře. Uvítáme dlouhodobý pronájem.
 
Jedná se o velmi klidnou čtvrť Berouna, kde je dostatek zeleně a v dosahu nezbytná obč. vybavenost.  Zvu Vás srdečně na prohlídku.
| Cena: | (za měsíc)   18 500,- Kč (plus poplatky, kauce a provize) | 
|---|
| Dispozice bytu | 3+kk | 
|---|---|
| Číslo podlaží v domě | 2 | 
| Počet podlaží objektu | 2 | 
| Celková podlahová plocha | 69 m² | 
| Druh objektu | cihlová | 
| Stav objektu | po rekonstrukci | 
| Energetická třída | G - Mimořádně nehospodárná | 
| Vlastnictví | osobní | 
| Druh bytu | v nájemním domě (činžovním) | 
| Počet podlaží pod zemí | 1 | 
| Umístění objektu | klidná část obce | 
| Vybaveno | Možno zařídit | 
| Topení | Lokální - plynové | 
| Elektřina | 230 V | 
| Plyn | Zaveden | 
| Připojení na internet | Jiné | 
| Užitná plocha | 69 m² | 
| Plocha zahrady | 298 m² | 
| Inženýrské sítě | Vodovod Kanalizace Plyn Elektřina | 
| Druh stavby | budova/y, hala/y | 
| Poloha objektu | samostatný | 





