| Číslo zakázky: | 2025-131 | ![]() Karta nemovitosti |
|---|---|---|
| Typ zakázky: | prodej |
Nabízíme k prodeji řadový rodinný dům se dvěma nezávislými bytovými jednotkami (celková užitná plocha 179 m) v klidné obci Radvanice u Přerova (cca 8 km do Přerova, výborné napojení na D1). Tento dům je ideální volbou pro investory nebo pro vícegenerační rodinu, která požaduje absolutní soukromí.
* Garantovaný příjem: Větší byt 4+1 (94 m) je v současnosti pronajímán s platnou nájemní smlouvou do 03/2026 s možností dalšího prodloužení. Nový majitel přebírá okamžitý tok hotovosti.
* Volná jednotka: Menší byt 3+kk (78 m) s nezávislým vchodem je připraven k okamžitému nastěhování nebo k dalšímu pronájmu (např. krátkodobému).
Dům prošel rozsáhlou a nákladnou rekonstrukcí, která zaručuje minimální provozní náklady a dlouhou životnost. Dům je napojen na obecní vodovod, plyn , el. 220/380, odpady jsou svedeny do septiku. Vytápění je řešeno ústředním rozvodem, napojeným pro každý byt na samostatný plynový kotel . Kotle zajišťují zároveň ohřev TUV. Každý byt má svůj podružný měřič elektřiny, plynu a vody.
Technická specifikace :
* Zateplení: Zateplená půda a podlahy foukanou vatou (vysoká tepelná izolace).
* Okna: Nová plastová okna s trojskly.
* Rozvody: Kompletní výměna veškerých vnitřních rozvodů (elektřiny - měď, voda, plyn, odpady - plast).
* Topení: Nové ústřední vytápění napojené na plynový kotel v obou bytech.
* Stav: Celopodsklepeno. Udržovaná zahrada (439 m). Parkování před domem.
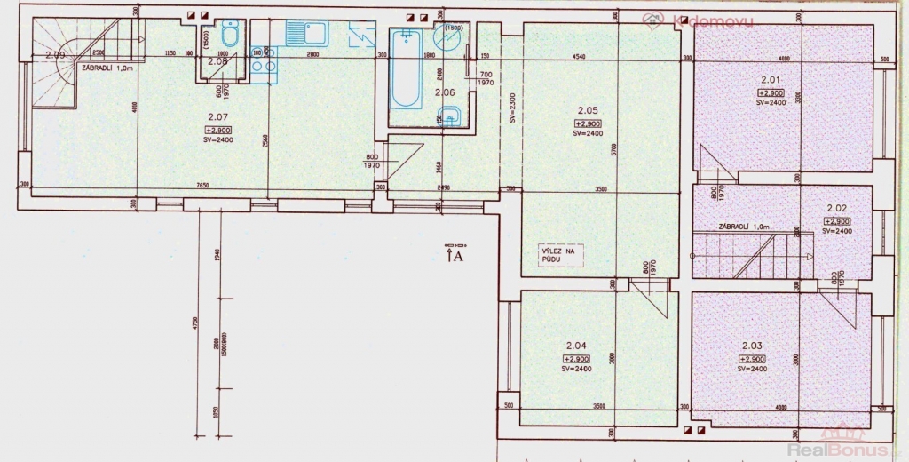
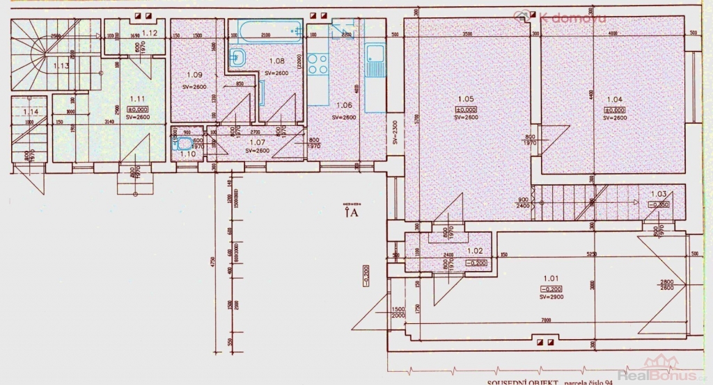
Shrnutí dispozice:
1. Jednotka 1 (94 m): Byt 4+1, aktuálně pronajatý
2. Jednotka 2 (78 m): Byt 3+kk, k okamžitému nastěhování/pronájmu.
3. Společné: Průjezd, sklepní prostory a zahrada.
Celkový potenciální příjem z pronájmu obou bytů je 23 25 000 měsíčně bez záloh za služby a energie. Celkový potenciální roční výnos (Gross Rental Yield) 4,5%.
| Cena: |
(za nemovitost) 6 400 000,- Kč
(cena k jednání)
|
|---|
| Počet podlaží objektu | 2 |
|---|---|
| Celková podlahová plocha | 181 m² |
| Druh objektu | cihlová |
| Stav objektu | velmi dobrý |
| Energetická třída | G - Mimořádně nehospodárná |
| Počet podlaží pod zemí | 1 |
| Umístění objektu | klidná část obce |
| Zastavěná plocha | 249 m² |
| Užitná plocha | 179 m² |
| Plocha zahrady | 439 m² |
