| Číslo zakázky: | N/RSB/21360/25 | ![]() Karta nemovitosti |
|---|---|---|
| Typ zakázky: | prodej |
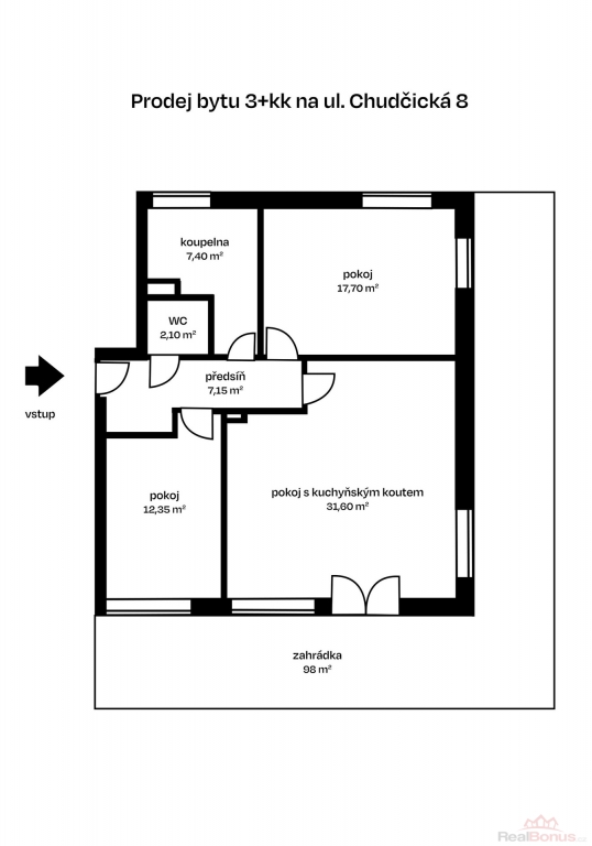
Nabízíme k prodeji moderní přízemní byt 3+kk o celkové výměře 177 m2 s bezbariérovým přístupem (včetně venkovního prostoru) v žádané lokalitě Brno?Kamechy, na ulici Chudčická. Byt má příjemnou dispozici, a to díky přímému vstupu z prostorného obývacího pokoje do oploceného venkovního prostoru o velikosti 98 m2. Tento soukromý prostor vybízí k realizaci vašich snů o okrasné zahrádce, ve které můžete relaxovat nebo aktivně trávit čas s rodinou. Výhodou je vybudované částečné zastřešení.
Samotný byt má 78,3 m2, přičemž do každé místnosti je samostatný vstup z předsíně, což zajišťuje soukromí všem obyvatelům bytu. Toaleta je oddělena od koupelny a její součástí je bidet a také umyvadlo se skříňkou. Byt je vytápěn dálkovým zdrojem tepla a celý dům je zařazen do energetické třídy C.
K bytu náleží také sklep o výměře 1,25 m2 ve společných částech domu. Parkování je možné v okolí domu nebo na přilehlých parkovištích zřízených pro tuto lokalitu.
Lokalita Kamechy patří mezi vyhledávané a nejzelenější části města Brna. Nachází se mezi Žebětínem a Bystrcí, v těsné blízkosti brněnské přehrady, která láká k procházkám, sportu i odpočinku. Okolí domu nabízí několik dětských hřišť, přímo u sídliště najdete mateřskou školu, základní škola s velkým sportovním areálem je odtud pouhých 5 minut autobusem.
Tento byt je skvělou volbou pro rodiny s dětmi i páry, kteří si chtějí po práci užívat sportovních aktivit nebo procházek.
| Cena: |
(za nemovitost) 10 500 000,- Kč
(neplatíte provizi, včetně právního servisu)
|
|---|
| Dispozice bytu | 3+kk |
|---|---|
| Číslo podlaží v domě | 1 |
| Počet podlaží objektu | 4 |
| Celková podlahová plocha | 177 m² |
| Druh objektu | cihlová |
| Stav objektu | velmi dobrý |
| Energetická třída | C - Úsporná |
| Vlastnictví | osobní |
| Plocha teras | 43 m² |
| Plocha sklepu | 1 m² |
| Bezbariérový byt | ano |
| Vybavení | terasa sklep zahrada |
| Umístění objektu | centrum |
| Rok kolaudace | 2 008 |
| Celková plocha | 177 m² |
| Ostatní | Bezbariérový přístup |
| Užitná plocha | 79 m² |
| Plocha zahrady | 98 m² |
| Charakter okolní zástavby | obytná |
| K dispozici od | 01.11.2025 |




