| Číslo zakázky: | 1200 | ![]() Karta nemovitosti |
|---|---|---|
| Typ zakázky: | prodej |
Hledáte místo pro stavbu svého vysněného domu s rozlehlou zahradou? Chcete to mít kousek do města i do Jizerek? Preferujete klid, ale trváte na dobré vybavenosti a dopravní obslužnosti? Pak možná tento pozemek čeká zrovna na vás.
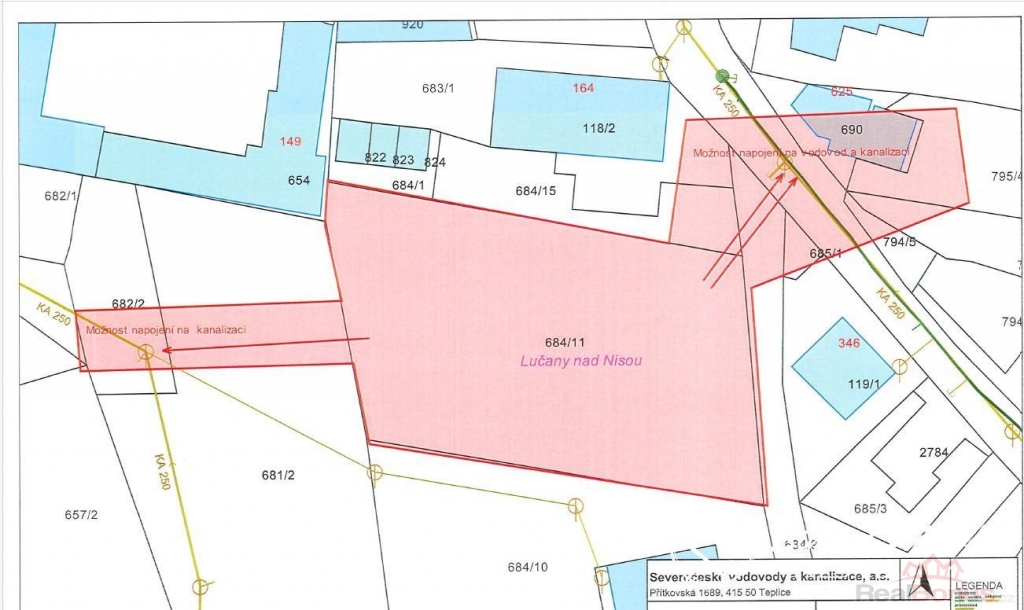
Nabízíme ke koupi stavební pozemek o výměře 2.111 m2 v Lučanech nad Nisou. Jedná se o pozemek nepravidelného obdélníku, ve vrchní části téměř rovinatého, ve spodní části středně svažitého terénu. Přístup k pozemku je přímo z veřejné komunikace.
Veškeré IS se nacházejí do 15 m od hranice pozemku - elektřina, plyn, veřejný vodovod a kanalizace.
Dle územního plánu je pozemek zařazen do ploch zastavitelných: plochy obytné - bydlení v rodinných domech, s možností výstavby 1 rodinného domu, max. 2 NP a obytné podkroví, ve svahu s možností suterénu. Koeficient zastavění max. 20%, z toho hlavní objekt max. 220 m2.
V místě se nachází MŠ, ZŠ, obchody, pošta, úřad, restaurace, benzinová stanice, apod. Dobrá dostupnost větších měst: Jablonec nad Nisou 3 km, Liberec 12 km, Tanvald 7 km. Autobusová zastávka cca 120 m od pozemku, vlak cca 200 m.
Jizerské hory jsou velmi oblíbené pro cyklistiku, pěší turistiku, běžecké i sjezdové lyžování a svou sklářskou historii. Dominují množstvím rozhledem, přehrad, skalních vyhlídek, přírodních rezervací a dalších turistických cílů.
V ceně je zahrnutý veškerý realitní a právní servis, včetně správních poplatků. Financování úvěrem zajistíme.
| Cena: | (za nemovitost) 2 790 000,- Kč |
|---|
| Číslo podlaží v domě | 1 |
|---|---|
| Vlastní pozemek | 2 111 m² |
| Elektřina | 230 V |
| Plyn | Zaveden |
| Plocha parcely | 2 111 m² |
| Druh pozemku | pro bydlení |
| Inženýrské sítě | Vodovod Kanalizace Plyn Elektřina |




