| Číslo zakázky: | 5755 | ![]() Karta nemovitosti |
|---|---|---|
| Typ zakázky: | prodej |
Prodej bytu o dispozici 2+kk je součástí rezidenčního projektu na Praze 6 Břevnov, který vzniká kompletní rekonstrukcí bytového domu v jedné z nejklidnějších částí Prahy. Lokalita uprostřed vilové čtvrti nabízí kombinaci zeleně, soukromí a výborné dostupnosti do centra.
Součástí domu je soukromá sauna a posilovna.
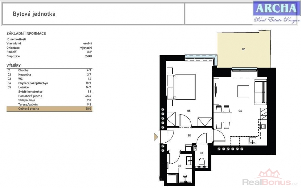
Půdorys bytu na 1. podlaží o podlahové ploše 45,4 m2 a celkové ploše 58 m2 zahrnuje obývací pokoj s přípravou na kuchyni, ložnici, vstupní chodbu, praktickou komoru, koupelnu se sprchovým koutem a samostatnou toaletou. K jednotce náleží také sklepní kóje. Byt bude dokončen v provedení fit out včetně hotové koupelny, podlah, dveří a kompletních rozvodů. Veškeré vybavení odpovídá současným standardům moderního bydlení.
Vlastnictví osobní
Dispozice 2+kk
Celková plocha 58 m2
Podlahová plocha 45,4 m2
Podlaží: 1
Terasa 9,8 m2
Sklepní kóje 2,8 m2
Plastová okna, trojsklo
Samostatné měření vodoměrem, elektroměrem.
Vchodové dveře bezpečnostní, hladké.
Podlaha dřevěná, třívrstvá, lamelová
Ke koupi ihned.
Bytový dům prochází celkovou rekonstrukcí, jejíž součástí je nový výtah, vstupní portály s bezpečnostními dveřmi a kvalitně provedené společné prostory s keramickou dlažbou a dřevěnými prvky.
Obyvatelům bude k dispozici relaxační zóna se saunou a fitness, kolárna, prádelna a upravený vnitroblok s klidovou částí a posezením.
Rezidence se nachází v tiché ulici, obklopené zelení a rezidenční zástavbou.
V docházkové vzdálenosti je veškerá občanská vybavenost včetně obchodů, kaváren, škol i zastávek MHD.
Lokalita nabízí pohodové zázemí s rychlým spojením do centra i na letiště.
Občas jsou ale dny, kdy každý ocení více soukromí. Pro takové chvíle je ideálním místem odpočinku nový vnitroblok s klidovou zónou a posezením.
Společenská část s grilem zase láká k sousedským setkáním a pohodovým večerům na čerstvém vzduchu.
Největším překvapením rezidence je privátní RELAXAČNÍ ZÓNA se SAUNOU a FITNESS, která je dostupná pouze pro obyvatele domu.
Provizi neplatíte.
ARCHA realitní kancelář
PRAHA
Telefon: 737851059, 702072257, 608135458
Dat. schránka: vdc4dg
E-mail: archa-rk@seznam.cz
www.instagram.com/nemovitosti_archa
www.facebook.com/nemovitosti.archa
www.twitter.com/archa_life
www.archa-rk.cz
| Cena: | (za nemovitost) 9 538 000,- Kč |
|---|
| Dispozice bytu | 2+kk |
|---|---|
| Číslo podlaží v domě | 1 |
| Počet podlaží objektu | 6 |
| Druh objektu | cihlová |
| Stav objektu | dobrý |
| Vlastnictví | osobní |
| Druh bytu | v nájemním domě (činžovním) |
| Počet podlaží pod zemí | 1 |
| Vybavení | terasa sklep |
| Umístění objektu | klidná část obce |
| Vybaveno | Částečně zařízeno |
| Topení | Lokální - elektrické |
| Elektřina | 230 V |
| Plyn | Zaveden |
| Připojení na internet | Jiné |
| Inženýrské sítě | Vodovod Kanalizace Plyn Elektřina |
| Druh stavby | budova/y, hala/y |
| Poloha objektu | rohový |




