| Číslo zakázky: | 206 | ![]() Karta nemovitosti |
|---|---|---|
| Typ zakázky: | pronájem |
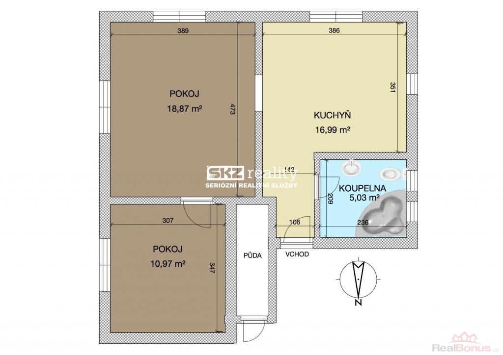
SKZ REALITY nabízí v k pronájmu byt 2+1 v Rumburku v centru města v ulici 2. polské armády. K bytu je možné využít zahradu, sklep a půdu. V bytě je chodba, kuchyň s jídelním stolem, 2 pokoje, koupena s WC. Vytápění je zajištěno plynovým kotlem. Elektřina a plyn se přepisuje na nájemníka. Služby jako je vodné a stočné, elektřina na chodbě je hrazena pronajímateli. Celkové náklady na byt jsou cca 14 000Kč. Počet osob je omezen na max. 4. Zájemce musí prokázat schopnost hradit pravidelně nájemné (pracovní smlouva...) V případě zájmu nás kontaktujte pouze prostřednictvím formuláře u zakázky nebo na email (ne telefonicky). Ozveme se vám s termínem možné prohlídky případně pošleme podrobnosti. U více zájemců k bytu bude provedeno výběrové řízení, o kterém rozhoduje majitel. Cena za měsíc je uvedena včetně všech služeb. Nabídka nezakládá zájemci právo na nájem k inzerovanému bytu.
| Cena: |
(za měsíc) 10 500,- Kč
(+ energie cca 3500Kč)
|
|---|
| Dispozice bytu | 2+1 |
|---|---|
| Číslo podlaží v domě | 3 |
| Počet podlaží objektu | 3 |
| Celková podlahová plocha | 52 m² |
| Druh objektu | cihlová |
| Stav objektu | dobrý |
| Energetická třída | G - Mimořádně nehospodárná |
| Vlastnictví | osobní |
| Druh bytu | v nájemním domě (činžovním) |
| Počet podlaží pod zemí | 1 |
| Umístění objektu | centrum |
| Vybaveno | Částečně zařízeno |
| Topení | Ústřední - plynové |
| Užitná plocha | 52 m² |
| Plocha zahrady | 200 m² |
| Druh stavby | budova/y, hala/y |
| Poloha objektu | samostatný |




