| Číslo zakázky: | 00091 | ![]() Karta nemovitosti |
|---|---|---|
| Typ zakázky: | prodej |
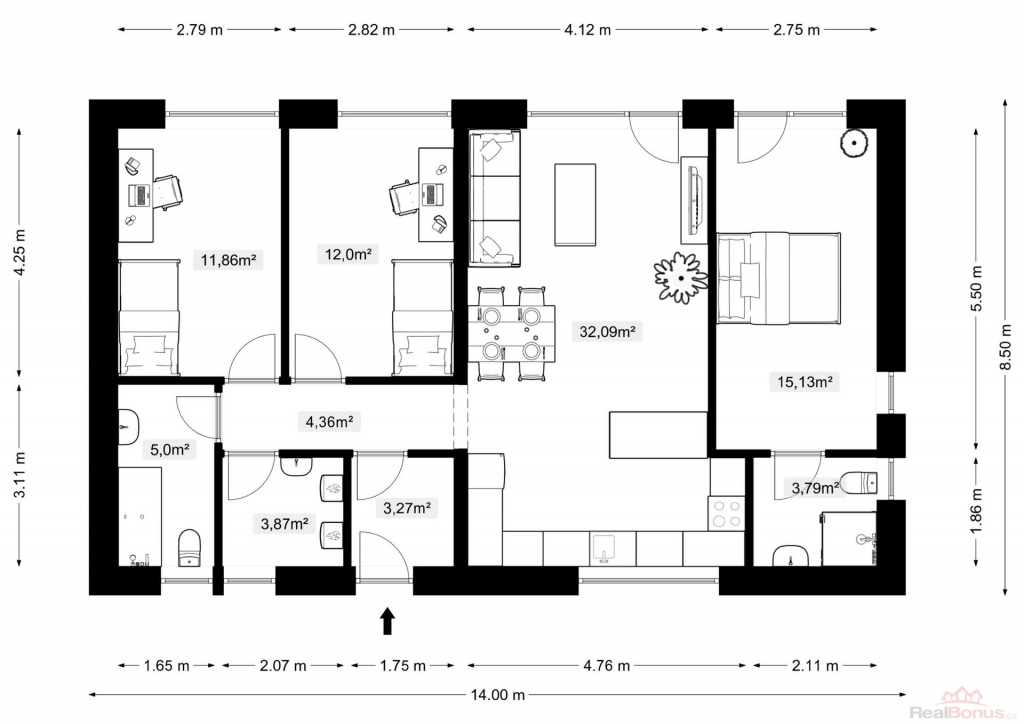
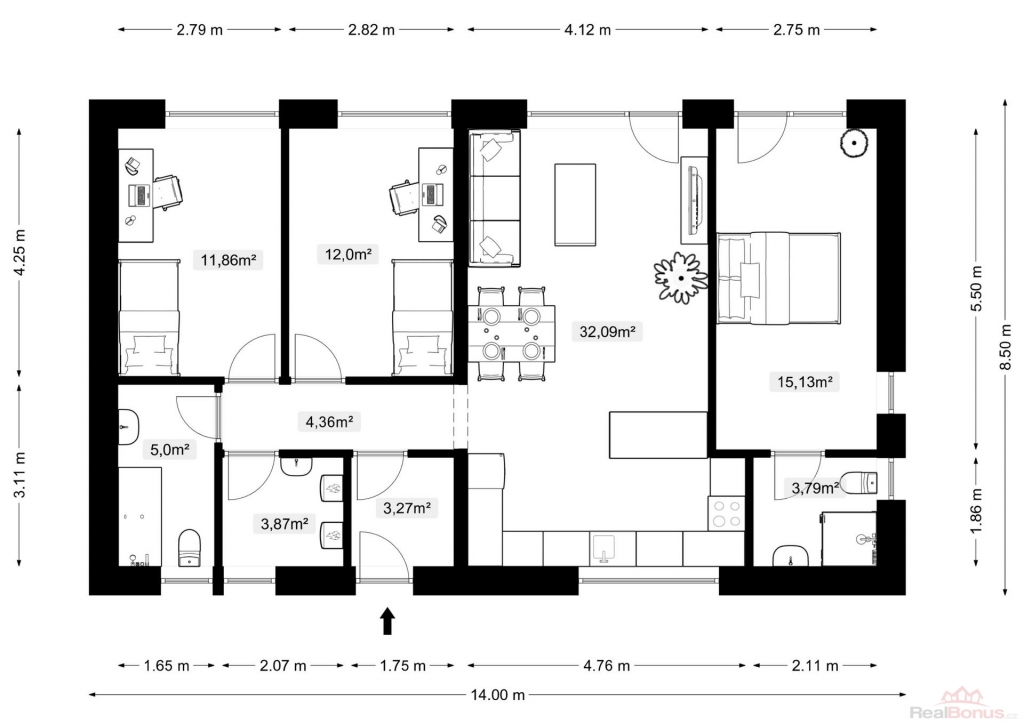
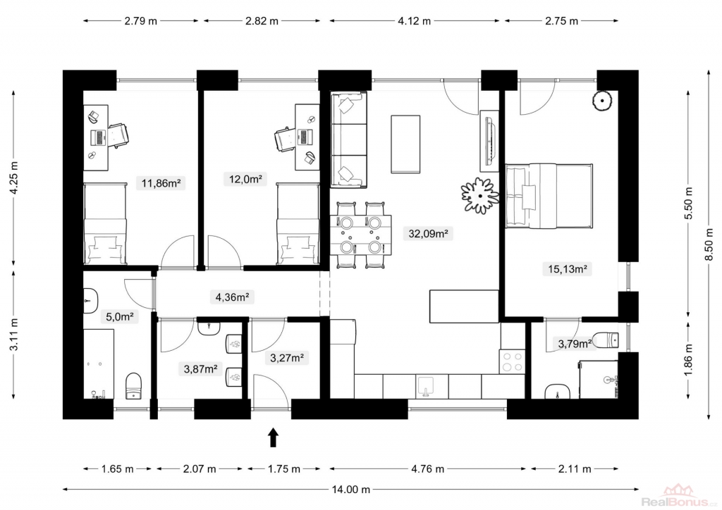
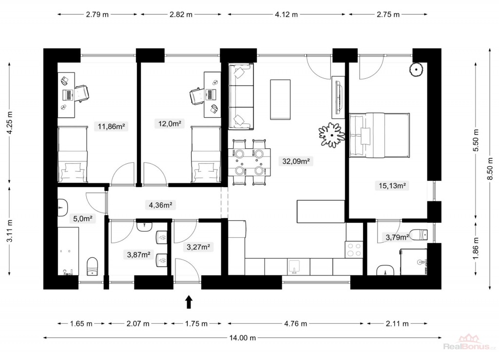
Nabízíme k prodeji moderní jednopodlažní rodinný dům o dispozici 4+KK s užitnou plochou 91 m2, situovaný na pozemku o rozloze 785 m2 v projektu Kde budeš bydlet - Malé Nošovice. Součástí domu je prostorná terasa a parkovací stání pro dvě auta, což zajišťuje pohodlí i pro větší rodinu.
Typy domu SMART a FULL nabízí prostorný obývací pokoj s kuchyňským koutem a přímým vstupem na terasu, komfortní ložnici ze které je přímý vstup do první koupelny se sprchovacím koutem a WC , dva další pokoje vhodné pro děti, pracovnu či pokoj pro hosty, druhou koupelnu s dostatkem místa pro vanu a WC a praktickou technickou místnost. Díky efektivnímu dispozičnímu řešení působí dům vzdušně a poskytuje dostatek prostoru pro pohodlné rodinné bydlení.
Dům se nachází v lokalitě Malé Nošovice s výhledem na Beskydy a Lysou Horu. Tato část obce je ideálním místem pro každého, kdo hledá klidné a bezpečné bydlení v přírodě, ale zároveň nechce být daleko od města. Obec Nošovice nabízí plnohodnotnou občanskou vybavenost ? najdete zde mateřskou i základní školu, praktického lékaře, obecní úřad, sportoviště, hřiště i multifunkční komunitní centrum. V okolí se navíc nachází cyklostezky, přírodní park u řeky Morávky a další místa pro aktivní odpočinek.
Díky své poloze mají Malé Nošovice také výbornou dopravní dostupnost ? do Frýdku-Místku se dostanete za 10 minut, do Ostravy zhruba za půl hodiny. Vše potřebné máte doslova na dosah..
Tento dům je ideální volbou pro ty, kteří hledají moderní, komfortní a klidné bydlení v harmonii s přírodou, s výbornou dostupností do města.
V rámci tohoto projektu Vám zajistíme zvýhodněné financování koupě domu,
Rovněž Vám můžeme zajistit případný prodej Vaší stávající nemovitosti tak, abyste bezproblémově navázali své bydlení do nového domu.
Vzorový dům je pro Vás připravený a můžete si jej prohlédnout v dohodnutém termínu.
| Cena: |
(za nemovitost) 7 890 000,- Kč
(včetně DPH)
|
|---|
| Počet podlaží objektu | 1 |
|---|---|
| Druh objektu | cihlová |
| Stav objektu | novostavba |
| Energetická třída | B - Velmi úsporná |
| Bezbariérový byt | ano |
| Umístění objektu | centrum |
| Ostatní rozvody | Kabelové rozvody |
| Topení | Ústřední - elektrické Jiné |
| Doprava | silnice autobus |
| Voda | dálkový vodovod |
| Odpad | Městská kanalizace |
| Počet míst k parkování | 2 |
| Zastavěná plocha | 119 m² |
| Plocha parcely | 785 m² |
| Ostatní | Bezbariérový přístup Parkoviště |
| Užitná plocha | 91 m² |
| Inženýrské sítě | Vodovod Kanalizace |
| Charakter okolní zástavby | obytná |
| Poloha objektu | samostatný |




