| Číslo zakázky: | 209 | ![]() Karta nemovitosti |
|---|---|---|
| Typ zakázky: | prodej |
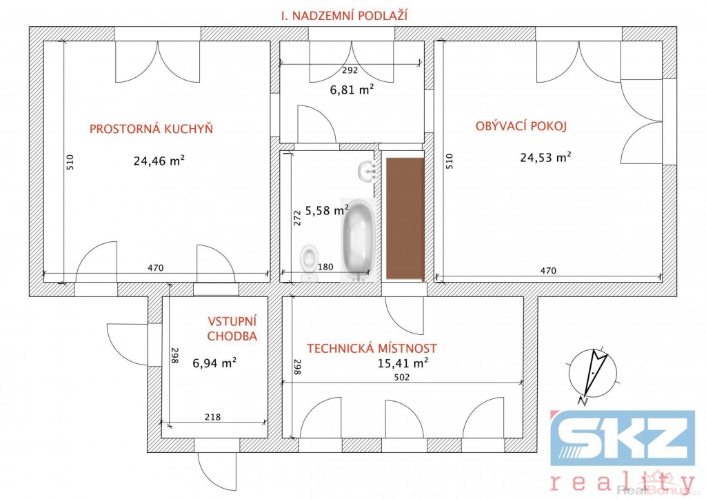
Rekonstruovaný rodinný dům 6 + kk se zahradou a vlastní studnou v Jiříkově. V přízemí domu se nachází chodba, velká technická místnost se vstupem do sklepa, kuchyňský kout, jídelna, světlý a prostorný obývací pokoj. V podkroví jsou 3 místnosti, kde jednu lze pohodlně rozdělit na dva neprůchozí pokoje. V podkrovních pokojích jsou připraveny úložné prostory. Rekonstrukce spočívala: chemická injektáži proti zemní vlhkosti, nové štuky s lepidlem a perlinkou v celém domě, nové rozvody elektřiny s novým rozvaděčem, nové rozvody vody a odpadu, nová plastová okna, nové podlahy v podkroví (OSB desky), nové podhledy stropů v podkroví včetně zateplení, nové šikmé podkrovní stěny se zateplením a novými plastovými střešními okny, nová koupelna s vanou a WC. Vytápění je lokální, k dispozici jsou dva 2 komíny. Na hranici pozemku je pilíř pro připojení plynu. Na pozemku se nachází vlastní studna a splaškové vody vedou do kanalizace, která se nehradí. Na pozemku se nachází konstrukce skleníku a kolna. Pozemek je oplocen. Dům je orientován na jižní stranu. Jedná se o klidné a tiché místo k bydlení.Doporučuji prohlídku nemovitosti.
| Cena: |
(za nemovitost) 2 580 000,- Kč
(včetně právního servisu, provize bez poplatků)
|
|---|
| Číslo podlaží v domě | 1 |
|---|---|
| Počet podlaží objektu | 2 |
| Celková podlahová plocha | 220 m² |
| Druh objektu | cihlová |
| Stav objektu | velmi dobrý |
| Energetická třída | G - Mimořádně nehospodárná |
| Počet podlaží pod zemí | 1 |
| Vlastní pozemek | 290 m² |
| Vybavení | sklep |
| Umístění objektu | klidná část obce |
| Vybaveno | Částečně zařízeno |
| Topení | Lokální - tuhá paliva |
| Elektřina | 230 V |
| Celková plocha | 441 m² |
| Zastavěná plocha | 151 m² |
| Plocha parcely | 290 m² |
| Užitná plocha | 220 m² |
| Plocha zahrady | 290 m² |
| Inženýrské sítě | Vodovod Kanalizace Elektřina |
| Druh stavby | rodinný dům, rekreační chalupa, rekreační pozemek |
| Poloha objektu | samostatný |




