| Číslo zakázky: | 653448 | ![]() Karta nemovitosti  | 
			
|---|---|---|
| Typ zakázky: | prodej | 
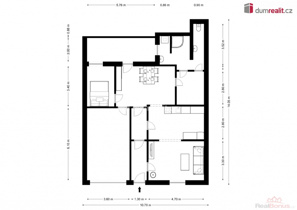
(včetně provize RK), Dumrealit.cz Vám zprostředkuje koupi přízemního řadového domu se vstupní chodbou, obývacím pokojem, kuchyní, ložnicí, verandou, koupelnou se sprchovým koutem a WC. Součástí domu je i prostorná garáž přístupná z hlavní cesty nebo přímo z verandy domu. Za domem se nachází další stavba, ze které je možné vybudovat obytný prostor a mít tak příležitost nemovitost užívat jako dvougenerační s maximálním zachováním soukromí uživatelů obou staveb. Na dvoře se nachází přístavky, které lze využít jako letní kuchyň, dílnu, nebo skladovací prostor. Na domě fázově probíhala rekonstrukce, která se týkala úpravy prvního domku - kuchyň, koupelna, ložnice, elektřina, podlahy, plastová okna. Všechny IS: elektřina 220/400V, obecní voda, kanalizace, plyn. Zahrada 600 m přístupná ze dvou stran. Dům se nachází v klidné obci, ve vinařském kraji, a je tak vhodným místem nejen pro rodinné bydlení, ale jako chalupa pro cykloturistiku nebo opakovanou nejen víkendovou rekreaci. Ev. číslo: 652834. Energetický štítek: G
| Cena: | 
					(za nemovitost)   3 500 000,- Kč
 ((včetně provize RK)) (včetně provize) 
				 | 
			
|---|
| Počet podlaží objektu | 1 | 
|---|---|
| Celková podlahová plocha | 65 m² | 
| Druh objektu | cihlová | 
| Stav objektu | dobrý | 
| Energetická třída | G - Mimořádně nehospodárná | 
| Vlastní pozemek | 1 000 m² | 
| Zastavěná plocha | 100 m² | 
| Užitná plocha | 65 m² | 
| Poloha objektu | řadový | 




