| Číslo zakázky: | 2893 | ![]() Karta nemovitosti |
|---|---|---|
| Typ zakázky: | pronájem |
Pronájem přízemní skladové a výrobní plochy LÁŽOVICE (exit D5-Zdice)
-------------------------------------------------------------------------------------
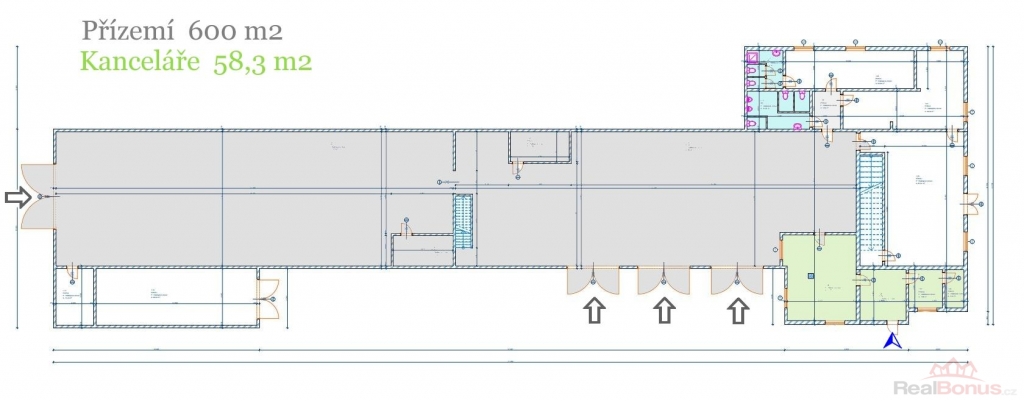
Výrobní a skladové prostory celkem : až 1100 m2
-přízemí v patrové budově 600 m2. 69,-Kč/m2/měsíc
-přízemí kanceláře 58 m2, 89,-Kč/m2/měsíc
-1. patro ( po uvolnění - dohodou ) 1000 m2. 40,-Kč/m2/měsíc ( není podmínkou )
Samostatná hala: 500 m2 69,-Kč/m2/měsíc
Skladové venkovní zpevněné prostory: 500 až 1500 m2 25,-Kč/m2/měsíc
------------------------------------------------------------------------------------
Nabízíme k nájmu jako celek, či SAMOSTATNĚ jednotlivě skladové/výrobní prostory, které se nacházejí v uzavřeném, oploceném areálu v Lážovicích na Berounsku. Vzdálenost do 13 Km na EXIT dálnice D5 (Zdice / Králův dvůr ). Příjezd bezproblémový pro osobní i nákladní dopravu, vč. TIR. Parkování možné v rámci areálu na vyhrazených parkovacích místech. Venkovní zpevněné plochy do nájmu.
--------------------------------------------------------------------------------------
- HLAVNÍ SKLADOVÁ/VÝROBNÍ HALA S KANCELÁŘEMI Vytápěná, patrová budova. Přízemí: Kanceláře, kuchyňka a jídelna pro cca 15 - 20 lidí, dále dílenské šatny, 3x WC, sprcha. Hlavní výrobní a montážní prostory 600 m2, Využitelná výška 3,5m. Vstup do hal zajišťují 3x nákladní, vjezdová vrata o rozměrech cca 3,5x4 m. Podlahy jsou zde betonové, nové. Osvětlení el. halogenové, pomocí oken. Vytápění zajištěno z vlastní kotelny - foto. V kancelářích tel. linka pro připojení na internet. Bezpečnostní elektronická ostraha nacházející se v areálu. PATRO : Kancelář - mistra, velká hala, pomocný jeřáb vedoucí až mimo halu pro usnadnění nakládky a vykládky zboží. Podlahy betonové, vysoká nosnost. Manipulační podlahový otvor pro přepravu zboží z přízemí do patra Destou.
-------------------------------------------------------------------------------------
- STUDENÝ SKLAD 500 m2 s 1x vytápěnou kanceláří. Předmětem nájmu je přízemní, nezateplená a nevytápěná hala vhodná pro SKLAD. Zděné obvodové zdi, dřevěné krovy. Využitelná výška 4m. Vstup do hal zajišťují 2x nákladní, vjezdová vrata o rozměrech cca 3x4m. Podlahy jsou zde betonové, bez omezení nosnosti. Osvětlení el. zářivkové. 1x kancelář, vytápění zajištěno 220V. Tato hala má boční skladovací přístavbu 350 m2 (!) - viz foto, zelené izolace. Bezpečnostní čidla, osvětlené vjezdy do hal. V areálu k
-------------------------------------------------------------------------------------
V areálu k dispozici velké množství betonových venkovních ploch a to jak na skladování, tak na manipulaci a parkování techniky. Vše částečně osvětleno. Posuvná, dálkově ovladatelná, vjezdová vrata i pro TIR.
ČERNÝ Pavel
---------------- 2025 -----------------------
ARCHA - průmyslová kancelář ( Praha, Beroun )
-Prodej a pronájem skladů/dílen/kanceláří
-Prodej pozemků pro průmysl
-Výstavba skladů/dílen/areálů pro logistiku
| Cena: |
(za m2 / měsíc) 69,- Kč
(+ vlastní spotřeba 220/380V, služby areálu)
|
|---|
| Číslo podlaží v domě | 1 |
|---|---|
| Počet podlaží objektu | 2 |
| Druh objektu | skeletová |
| Stav objektu | dobrý |
| Počet podlaží pod zemí | 1 |
| Umístění objektu | okrajová zástavba |
| Vybaveno | Částečně zařízeno |
| Topení | Lokální - plynové |
| Celková plocha | 1 920 m² |
| Účel budovy | Výroba |
| Výrobní plocha | 1 100 m² |
| Jiné plochy | 4 000 m² |
| Dílna | 1 100 m² |
| Druh stavby | budova/y, hala/y |
| Poloha objektu | samostatný |
| Druh prostor | Výrobní |




